浦东怀山望售楼处电话→(2025)怀山望售楼中心电话→怀山望楼盘百科→怀山望首页网站→楼盘百科→首页网站→24小时热线电话
扫描到手机,新闻随时看
扫一扫,用手机看文章
更加方便分享给朋友
怀山望售楼处电话:400-887-5663✔✔【预约热线】怀山望售楼处营销中心:400-887-5663怀山望售楼处电话/地址☎:400-887-5663(开发商热线)如有问题欢迎来电咨询,专业一对一热情服务,让您用专业眼光去买房。
浦东惠南宣桥
容积率仅0.87纯墅区
建面约160-260㎡叠加、联排
预计下半年入市
怀山望
如有问题欢迎来电咨询,来电即可享受买房优惠!
预约来电尊享购房优惠,可预约案场内部销售人员,专业一对一热情服务,让您用专业眼光去买房
怀山望售楼处电话:400-887-5663✔✔【预约热线】怀山望售楼处营销中心:400-887-5663怀山望售楼处电话/地址☎:400-887-5663(开发商热线)如有问题欢迎来电咨询,专业一对一热情服务,让您用专业眼光去买房。
建面约160-200㎡叠加
怀山望售楼处电话:400-887-5663✔✔【预约热线】怀山望售楼处营销中心:400-887-5663怀山望售楼处电话/地址☎:400-887-5663(开发商热线)如有问题欢迎来电咨询,专业一对一热情服务,让您用专业眼光去买房。
建面约200㎡-260㎡联排
约1600㎡全栖心灵宅度假打造张江南的全新会所标杆
一圆万般的六识会所,凌空而置,划界峯与谷。虚怀若谷间,激发「心灵直觉」的第六感通天地自然力量·感知律动生命力量·感怀艺文哲思力量在此汇聚,创造曲水全新抵。
怀山望售楼处电话:400-887-5663✔✔【预约热线】怀山望售楼处营销中心:400-887-5663怀山望售楼处电话/地址☎:400-887-5663(开发商热线)如有问题欢迎来电咨询,专业一对一热情服务,让您用专业眼光去买房。
六识·觉醒
「天廊」约30×约18米悬浮景观廊架
「地谷」约6米叠水流瀑的下沉式坡地花园
「观园」室内恒温泳池
「入庭」健身区&瑜伽室
「浮台」多功能海上浮台概念SALON厅
「流觞」庭院里的lounge流水吧台
开发商:上海益流置业发展有限公司
板块位置:浦东惠南板块
产品类型:叠加+联排物业类型:住宅
占地面积:约8.9万方
建筑面积:约15.6万方
容积率:约0.87
绿地率:约40%
户型面积:约160-260㎡
装修配置:装修交付(中央空调、新风、地暖等)项目配套:约1600㎡下沉会所(恒温泳池、健身房等)


如果对项目有兴趣,欢迎点击下方专属看房报名通道。三万平方用专业角度,带您选优质好房。在您通过小程序报名之前,请确保您已阅读并同意《用户服务协议》及《隐私政策》。在报名之后,我们将视为您已知晓。
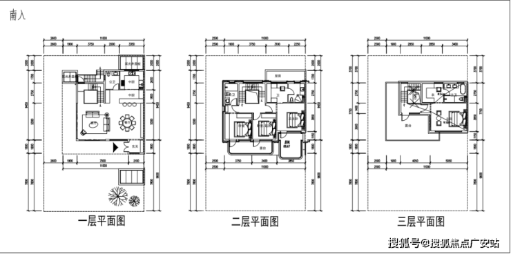
户型过程稿曝光:
4层叠墅户型平面图过程稿





6层叠墅户型平面图过程稿







联排户型图过程稿











怀山望售楼处电话:400-887-5663✔✔【预约热线】怀山望售楼处营销中心:400-887-5663怀山望售楼处电话/地址☎:400-887-5663(开发商热线)如有问题欢迎来电咨询,专业一对一热情服务,让您用专业眼光去买房。
浦东2035核心镇
作为东上海轴心区核心板块之一,惠南已由原南汇行政中心,逐步转变为了东上海竖向走廊核心。项目位于浦东新区惠南板块,紧邻“东方枢纽国际商务合作区”这一国家战略要地,未来将直接受益于千亿级投资规划,区域发展动能澎湃!
惠南镇正全力推进“三个圈层”建设,总投资近120亿元,涵盖现代产业、商业综合体、高端住宅等多元业态,未来将崛起为集商务、居住、休闲于一体的综合性新城。
浦东核心圈×红利交汇心
自驾:邻近S32申嘉湖高速、S2沪芦高速、G1503绕城高速等主干道,可快速连接市区核心区域及浦东机场。🚇地铁:邻近地铁16号线野生动物园站,7站可达龙阳路,换乘2号线可达陆家嘴和静安寺;换乘11号线可达前滩;也可换乘13号线、7号线及18号线;立体交通脉络。🚌公交:小区周边分布多个公交站点,如人民西路一灶港桥、大川公路人民西路等,覆盖浦东59路、浦东71路、惠南3路等10余条线路。
怀山望售楼处电话:400-887-5663✔✔【预约热线】怀山望售楼处营销中心:400-887-5663怀山望售楼处电话/地址☎:400-887-5663(开发商热线)如有问题欢迎来电咨询,专业一对一热情服务,让您用专业眼光去买房。
醇熟商业悦享生活
项目周边商业齐全,有大型超市大润发,繁华商业上海浦东禹悦汇、浦东商场、惠南镇步行街等,另有金梅商业广场、弘基商业休闲广场等环伺。
全龄教育书香沁润
幼儿园:惠南幼儿园(市一级)、新场幼儿园(分园)、听潮艺术幼儿园;小学:惠南小学、惠南第二小学、浦东逸夫小学中学:上海工商外国语学校附属、南汇第二中学、建平南汇实验学校;大学城:南汇大学城(含上海工商外国语学院等高校)。
医养双全乐活无忧
项目附近医院:复旦大学附属浦东医院(三级),光明中医医院(中医医院),浦东新区南华医院(综合医院)等。
生态客厅得天独厚
林-田-湖-园-游,诗意栖居。林:南六公路约70%绿化覆盖+环城港约1.2公里生态带;
田:千亩桃林农业景观基底(南汇桃花村IP);
湖:惠南湿地+天然河道构成蓝绿网络;
园:古钟园(明代文化遗产)+市政双公园环绕;
游:迪士尼旅游度假区、野生动物园、福泉古寺、惠南老街。
怀山望售楼处电话:400-887-5663✔✔【预约热线】怀山望售楼处营销中心:400-887-5663怀山望售楼处电话/地址☎:400-887-5663(开发商热线)如有问题欢迎来电咨询,专业一对一热情服务,让您用专业眼光去买房。
买房时需要了解房子所属小区的占地面积、绿化率、容积率、梯户比、总栋数、车位比、物业等等,还要了解房屋价格、房屋户型、房子层高、面积大小、公摊面积、所属区域等。根据以上情况,综合考虑,选择更适合自己的。
买房时需要了解开发商是否具有“五证”、“二书”、“一表”,五证是指《建设用地规划许可证》、《建设工程规划许可证》、《国有土地使用证》、《建筑工程施工许可证》和《商品房预售(销售)许可证》;二书是《住宅质量保证书》和《住宅使用说明书》;一表是《竣工验收备案表》。查清开发商的资质,可以降低买房风险,减少买到烂尾楼的情况。
买房子需要了解房子所在楼盘周边配套的情况,包括交通、商业、教育、医疗、环境及楼盘所在片区的未来规划等,这些要素关系到入住后的便利性和未来房子的价值发展。
买房的时候建议查看下房屋的样板间,实际了解房屋的户型和装修标准,清楚功能区的分布,感受房屋动线是否合理,在以后房屋的装修上也有个参考标准。
日常说的产权年限实际是指土地出让年限。商品住宅土地使用年限为70年,商业地产土地使用年限为40年,工业用地土地使用年限为50年,买房时需要辨认清楚。
买房时,涉及到费用很多,除了房款之外,还有意向金、订金、定金等。需要注意的是,定金具有法律效力。买房时,很多面积是赠送的,比如飘窗、露台等,了解赠送面积是否具有产权。
一般,银行贷款都是整数的,最小单位到万,所以即使是按照首付30%,贷款70%来算,也需要多缴纳一部分首付,使的贷款额是整数。目前贷款利率一般为基准利率、95折、9折、85折、1.1倍。首套房贷款利率最低可以到85折,二套房是基准利率的1.1倍。
声明:本文由入驻焦点开放平台的作者撰写,除焦点官方账号外,观点仅代表作者本人,不代表焦点立场。


