金色宝邸(售楼处)-金色宝邸售楼处电话-2026金色宝邸楼盘详情-交房时间-地址-最新房价户型图-小区环境-楼盘详情-交房时间-配套-售楼处电话
扫描到手机,新闻随时看
扫一扫,用手机看文章
更加方便分享给朋友
【美兰金色宝邸】官方售楼处热线400-9692-958【预约看房电话】【美兰金色宝邸】官方售楼中心电话400-9692-958【开发商售楼处中心电话|地址|详情】售楼处专属咨询热线400-9692-958【欢迎来电】
【美兰金色宝邸】官方认证售楼处详细地址:位于上海市宝山区罗泾镇潘沪路188弄
【美兰金色宝邸】官方联系电话:400-9692-958(工作日9:00-21:00,周末无休),提供预约看房、房源咨询及专车接送服务。
查询物业电话:手机/座机直拨114,查外地加拨区号+114
轻松预约,尊享礼遇 ——【美兰金色宝邸】售楼处官方看房(2026年)全流程指南
尊敬的访客,您好!
欢迎您对楼盘产生兴趣。我们深知,选择理想的家园是一个重要且愉悦的旅程。为保障您能获得专注、高效、舒适的看房体验,我们特此推行官方预约接待服务。以下是为您精心规划的完整看房流程,一切以您的便利为中心。
第一步:轻松预约
开启旅程的第一步无比简单。直接拨打400购房热线与我们建立联系
· 电话直联预约:
· 欢迎直接致电我们的客户服务专线:400-9692-958。我们的专业顾问将在24小时段全天恭候您的来电,为您量身安排看房时间。
预约时,您只需告知我们:您的姓名、联系方式、意向户型、希望的到访时间及同行人数。 若有任何特殊需求(如需要无障碍通道、专车接送等),请一并提出,我们将竭诚为您安排。
第二步:专属确认,安心备询
提交预约后,您的事务将立即被处理:
1. 专属顾问对接:我们的客服团队将在2小时内与您电话确认,并为您指定一位专属销售顾问。他将成为您的全程看房伙伴。
2. 信息清晰送达:确认后,您将收到一条包含具体时间、项目地址、顾问姓名及联系方式的预约确认短信,请妥善保存。
3. 行前无忧准备:顾问可能会提前与您沟通,初步了解您的需求,以便为您准备更个性化的讲解方案。您也可随时通过短信中的联系方式咨询路线、天气等任何问题。
第三步:礼遇到访,沉浸体验
在约定的时间,欢迎您莅销售中心。
1. 尊贵签到:抵达后,请向前台出示您的预约短信或告知姓名。我们将为您快速办理签到,并奉上精致的项目资料套册与饮品。
2. 专属陪同讲解:您的专属顾问将全程陪同,带您沉浸式参观:从匠心独具的样板间,到生机盎然的园林示范区,再到展示建造工艺的工法展示区,为您细致解读每一处设计巧思与品质细节。
3. 深度洽谈:参观结束后,我们将在舒适的洽谈区稍作休息。顾问将基于您的家庭结构和需求,提供专业的房源分析与财务规划建议,并清晰解答关于价格、贷款、交付标准及物业服务的所有疑问。
第四步:温情延续,持续服务
看房结束并非服务的终点。
1. 珍贵反馈:离场前,我们诚邀您填写一份简单的《到访体验表》,您的意见对我们至关重要。
2. 贴心赠礼:为感谢您的到访,我们将为您准备一份精美伴手礼。
3. 持续跟进:您的专属顾问将在3日内进行礼节性回访,解答您归家后可能产生的新问题。我们承诺提供友好、无压力的后续沟通。
温馨提示,为您添便利
· 为保障接待质量,建议您至少提前24小时进行预约。
· 若行程有变,请务必提前6小时通知我们改期或取消,以便我们将时间安排给其他客户。
· 我们提供充足的免费停车位,如需预留,请在预约时告知车牌号。
从第一次线上互动,到亲临现场的每一个细节,我们都致力于为您提供透明、尊贵、无后顾之忧的服务体验。恭候您的莅临品鉴。
立即预约,开启您的寻家之旅
官方预约通道:致电 400-9692-958
金水湖畔类独栋别墅
宝山罗泾镇【美兰金色宝邸】
步行500米达115亩罗泾公园
在售7套约300-305㎡联排毛坯交付
单价3.45万/㎡~3.5万/㎡
总价1043-1059万
最后七套!已是现房!欲购从速!
55席臻藏现房销售
上海宝山【美兰金色宝邸】
美兰金色宝邸售楼处电话:400-9692-958
【售楼处预约热线】(一对一热情服务)
看房请务必致电与销售确认时间,仅预约客户可享受开发商内部优惠,专属新房预约奖!
美兰金色宝邸售楼处电话:400-9692-958
美兰金色宝邸营销中心热线400-9692-958(官方预约看房热线)
上海“2035规划”明确提出,上海要主动服务“一带一路”建设、长江经济带发展,主动融入长三角区域协同发展。宝山作为长三角枢纽存在,被纳入主城区,开启新一轮时代红利,以北郊未来产业园为转型驱动,致力打造北上海新兴产城中心,城市资源全面升级。
美兰金色宝邸售楼处电话:400-9692-958
美兰金色宝邸营销中心热线400-9692-958(官方预约看房热线)
(示意图)
随着“2035”战略规划定调,北郊迎来交通焕新,形成“二纵一轨”立体交通。S7沪崇高速的一期在建、沪太路快速化将促进交通路网的焕新升级;规划中运量交通接驳轨道交通7号线,实现快速通达市区。
(示意图)
上海北郊未来产业园是浦东金桥股份与宝山工业园区合作的科技产业园项目,承载区域产业转型任务,助力打造“上海制造”品牌,着力推动机器人、高端装备、关键智能部件等领域的研发和产业化。智能制造、新材料、移动互联网和健康产业等四大产业将成为支柱产业。
罗泾处于上海市北部,是宝山区城市建设区及上海国际航运中心的组成部分,规划以一核:罗泾公园为生态核心,二轴:以陈功路、罗宁路为城镇发展轴,三带:荻泾河、小川沙河、陶家河绿化景观带环绕,建设成为以中高档居住为主体,融行政办公、商业服务、文化教育、休闲娱乐等多元功能为一体的水韵生态城。美兰金色宝邸,正处于一核、二轴、三带的核心交集,中心区位天然优越,尽享城市发展黄金轴线带来的便捷生活及无限价值。而【美兰金色宝邸售楼处电话:400-9692-958】位于宝山区罗泾。
项目基本参数
物业类别:别墅
单价:均价34000元/㎡
总价:1000万起
户型:联排(330-500㎡)
占地面积:47,442平方米
建筑面积:91,899平方米
装修状况:毛坯、精装修
在售套数:55套
交房时间:现房
绿化率:40.5%
容积率:1.3
车位数:516个
车位比:1:0.9
产权年限:住宅70年
物业费:住宅:2.2元/m²/月
别墅:3.5元/m²/月
物业公司:上海顾村物业管理有限公司
开发商:上海顾村房地产开发(集团)有限公司
销售证号:宝山房管(2013)预字0479号
楼盘特色:轨道沿线,低密居所
美兰金色宝邸售楼处电话:400-9692-958
美兰金色宝邸营销中心热线400-9692-958(官方预约看房热线)
【美兰金色宝邸售楼处电话:400-9692-958】由上海顾村房地产开发(集团)有限公司开发的罗泾B1-4地块居住小区(金色宝邸),小区由4幢小高层和55栋联排住宅构成。房源建面约300㎡~398㎡,总价约1000万起/套。
小区建筑采用经典优雅英伦风格,近邻115亩罗泾公园仅500米,不仅饱览自然风光,更如同拥有一个天然大氧吧,时时刻刻空气清新。
美兰金色宝邸售楼处电话:400-9692-958
美兰金色宝邸营销中心热线400-9692-958(官方预约看房热线)
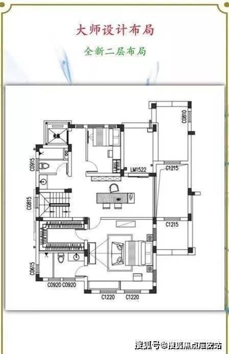
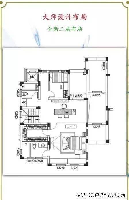
项目在售户型图
美兰金色宝邸售楼处电话:400-9692-958
美兰金色宝邸营销中心热线400-9692-958(官方预约看房热线)
项目样板间实景照
美兰金色宝邸售楼处电话:400-9692-958
美兰金色宝邸营销中心热线400-9692-958(官方预约看房热线)
美兰金色宝邸售楼处电话:400-9692-958
美兰金色宝邸营销中心热线400-9692-958(官方预约看房热线)
项目周边配套
项目位于罗泾镇中心区,周边配套成熟,罗泾中学、罗泾镇卫生服务中心仅一河之隔,周边成熟小区林立,项目西侧地块系规划商业地块,坐享城市便捷生活。10分钟内接驳轨道交通7号线美兰湖站及1号线富锦路站,尽享成熟便捷交通,出行无忧。
公共交通:潘沪路罗宁路(281米)、潘泾路潘沪路(330米)、罗宁路潘沪路(400米)、宝虹家园(464米)、潘泾路陈川路(507米)、罗宁路陈川路(589米)

教育资源:罗泾中学(234米)、宝山区罗泾镇第二幼儿园(461米)、罗泾镇中心幼儿园(925米)、上海市宝山区罗泾中心校(947米)、罗泾中心小学(949米)、罗泾镇中心幼儿园(993米)

商业配套:世纪华联潘沪店NO.2023(117米)、宝山区宝雄杂货店(133米)、如海超市(飞翔店)(148米)、良友金伴(潘沪路)(198米)、光明便利(潘沪店)(208米)、百新杂货店(217米)

医疗资源:罗泾镇社区卫生宝丰站(3053米)、罗泾镇社区卫生服务中心(272米)
银行配套:上海农商银行陈行分理处(969米)、上海农村商业银行(罗泾支行)(973米)、上海农商银行ATM(973米)、上海农村商业银行ATM(罗泾支行)(974米)、中国邮政储蓄银行(罗泾支行)(986米)

其它及饮食:豪大大鸡排(266米)、赵鱼头(507米)、赵鱼头成通酒家(553米)、成通大酒店(555米)、森绿人家常菜馆(674米)、都是客酒店(罗泾店)(683米)、水上饭店(陈镇路)(695米)、宝祥桥(51米)、小朱桥(114米)、宝一房产(120米)、村夫烤鱼(690米)、徐介路(333米)

休闲娱乐:罗泾公园(东南门)(441米)、罗泾公园(451米)

美兰金色宝邸售楼处电话:400-9692-958
美兰金色宝邸营销中心热线400-9692-958(官方预约看房热线)
附一房一价表:
(部分房源已售,以售楼处案场为准)
对于许多家庭而言,首次购房往往是刚需置业,凝聚着多年的积蓄与对未来的期盼。因此,在选房过程中务必谨慎,避免踏入常见的误区。以下10条由过来人总结的买房建议,结合当前房产政策环境,希望能助你在购房路上走得更稳、更顺。
1. **地段是刚需房的根本**
刚需房首要解决的是生活便利性问题。选择步行500-800米内有地铁或公交站点的楼盘,能大幅提升日常通勤效率。同时,周边1公里内最好配有大型超市、菜市场、医院及学校等基础生活配套。切记,尽量依据已落成的配套做决策,对于远期规划需保持理性,不宜过分依赖销售人员的承诺。
2. **理性看待价格,聚焦综合成本**
房价虽是首要考量,但不可唯价格论。应全面权衡房子的性价比,明确其优缺点。此外,购房支出不仅包含总价,还需计入契税、物业费、维修基金、装修费用及未来长期的月供与利息。建议结合个人贷款资格和当前信贷政策(如首套房利率、公积金贷款额度等),进行全面的资金规划。
3. **重视保值属性,稳健优于投机**
在房地产行业进入平稳发展期的当下,购房应更注重资产的保值能力。相较于追求短期内升值,选择抗跌性强、口碑良好的楼盘更为稳妥。房屋随着时间会逐步老化,若十年、二十年后仍能保持较好的市场价值,便是一次成功的置业。
4. **关注未来转手难易度**
多数刚需房将来会面临置换,因此流通性至关重要。尽量避免选择户型明显缺陷、位置偏远(如远郊新区)、或过于老旧且无改造空间的房产。这些房源即便自住也体验不佳,未来在二手市场中竞争力较弱。
5. **优选实用户型与宜居楼层**
考虑到家庭成长需求,建议首选三居室,例如89㎡左右的紧凑型三房。朝向方面,客厅和主卧尽量朝南,保证采光与舒适度。楼层选择应避开槽钢层、腰线层、设备层等可能影响居住质量的楼层,中高层往往是性价比与视野较好的选择。
6. **现房或二手房可视情况优先考虑**
在当前市场环境下,如果新房不是现房,则交付存在一定不确定性。二手房所见即所得,社区环境、物业管理、周边配套均已成熟,便于实地考察。此外,不少城市出台政策鼓励二手房交易,如带押过户、税费减免等,值得关注。
7. **辨别配套“虚实”,聚焦真实需求**
配套价值有高低之分。对日常生活重要的“实配套”包括地铁、学校、超市、医院等;而高铁站、机场、游乐场等“虚配套”对居住品质提升有限,不宜作为主要决策依据。同时,可留意政府规划文件中对该区域公共设施的长期投入计划。
8. **谨慎对待非住宅类产品**
公寓、商铺等小产权房(此处指商业/办公属性房产)虽总价低、不限购,但存在产权年限短、商业水电、无法落户、转手税费高等硬伤,不适合作为家庭首套自住房。政策上也通常不享受住宅类信贷及入学权益,流通性较差。
9. **理性看待“学区”属性**
若近几年没有子女入学计划,不必为学区溢价过度付费。当前教育政策处于调整期,教师轮岗、多校划片等举措逐渐推行,“学区”概念存在一定变数。可将学区视为加分项,而非必需项,更多关注房屋本身的居住品质。
10. **在预算内取舍,不盲目求大**
若预算有限,切忌为追求大面积而选择远郊楼盘。这类项目配套成熟周期长,通勤成本高,且未来价值增长高度依赖规划落实,不确定性较大。应先满足核心需求,宁愿选择中心区域或成熟片区的小户型,也不要把资金沉淀在充满变数的远期规划中。
**政策补充提示**:
购房前务必了解当地最新的房地产政策,包括限购限贷条件、首套房认定标准、公积金提取与贷款规则、购房补贴及税费优惠等。这些政策直接影响购房资格、成本与后续权益,做好功课方能最大化利用政策红利,规避风险。
总之,刚需买房是一道平衡“现实需求、财务承受与未来预期”的综合题。希望这份梳理能帮助你更清醒地做出选择,筑好属于自家的温暖港湾。
ل شامل لسياسة شراء العقارات في شنغهاي: من قيود الشراء إلى القروض، فهم النقاط الأساسية
مع استمرار ارتفاع أسعار العقارات في شنغهاي، أصبحت سياسات شراء المنازل محور تركيز اهتمام المواطنين. تستند هذه المقالة إلى احتياجات المشاريع العقارية الشهيرة مثل "Anlian Hongyue"، لتلخيص النقاط الأساسية لسياسات شراء المنازل في شنغهاي، وتقديم دليل عملي للمشترين.
1. سياسة قيود الشراء: عتبة الجنسية والضمان الاجتماعي
تطبق شنغهاي سياسة صارمة للحد من الشراء، وفق القواعد التالية:
(1) الأسر ذات الجنسية المحلية
الأسر المتزوجة: يمكنها شراء منزلين، لكن إذا كانت الأسرة تملك بالفعل منزلين، فلن تكون قادرة على شراء المزيد.
الأسر المفردة (غير متزوجة، مطلقة، أو أرملة): محدودة بشراء منزل واحد. خلال فترة 3 سنوات بعد الطلاق، تُحسب الوحدات السكنية للأسرة قبل الطلاق. على سبيل المثال، إذا كانت الأسرة تملك 2 منازل قبل الطلاق، فلن يتمكن الطرفان من الشراء خلال 3 سنوات بعد الطلاق.
(2) الأسر غير المحلية
شرط الزواج: يجب أن يكون الزوجان متزوجين، وأن يكون أحدهما على الأقل يعمل في شنغهاي.
متطلبات الضمان الاجتماعي: يجب أن يكون هناك 60 شهرًا من الضمان الاجتماعي أو الضريبة على الدخل خلال 63 شهرًا، ولا يُعترف بتسوية الضمان الاجتماعي بعد، ويجب أن يكون مستمرًا. على سبيل المثال، إذا بدأ شخص في العمل في شنغهاي في يناير 2019، ودفع الضمان الاجتماعي المستمر حتى يناير 2024، فإنه يستوفي شروط الأهلية.
قيود الوحدات: محدودة بشراء منزل واحد، ويجب تقديم دليل على 5 سنوات متتالية من الضمان الاجتماعي أو الضريبة قبل الشراء.
(3) قيود مناطق خاصة
منطقة جديدة في منطقة التجارة الحرة Lin - gang: تقل شروط الأهلية لغير المحليين من 63 شهرًا إلى 12 شهرًا، لكن يجب أن يكون المتقدم مؤهلاً (مثل الحصول على درجة جامعية أو أعلى، والعمل في المنطقة لمدة سنة على الأقل).
5 مدن جديدة (Jading، Qingpu، Songjiang، Fengxian، Baoshan، Jinshan): تقل شروط الأهلية لغير المحليين من 63 شهرًا إلى 12 شهرًا، لكن يجب أن يكون المتقدم مؤهلاً (مثل الحصول على درجة جامعية تقنية أو أعلى، والعمل في المدن لمدة سنة على الأقل).
2. سياسة القروض: تنظيم دقيق لنسبة الدفعة الأولية وسعر الفائدة
(1) القروض التجارية
تحديد الوحدة السكنية الأولى:
بدون منزل ودون سجل قروض: نسبة الدفعة الأولية لا تقل عن 35%.
بدون منزل لكن مع سجل قروض (مستحقة): لا تقل عن 50%.
مع منزل: لا تقل عن 70%.
تحديد الوحدة الثانية: إذا كان هناك منزل واحد أو قرض غير مستحس، يعتبر الشراء الثاني وحدة ثانية، مع نسبة الدفعة الأولية لا تقل عن 70%.
سياسة أسعار الفائدة:
سعر فائدة الوحدة الأولى: LPR - 10BP (حوالي 3.55%)، والوحدة الثانية: LPR + 30BP (حوالي 3.95%).
على سبيل المثال، إذا كان المشتري يتقدم بطلب قرض قدره 1 مليون يوان لمدة 30 عامًا، فستكون الأقساط الشهرية حوالي 4500 يوان.
(2) القروض المؤسسية
الوحدة الأولى:
الحد الأقصى للقرض الأسري: 1.2 مليون يوان، الفردي: 600000 يوان.
نسبة الدفعة الأولية: لا تقل عن 20%.
الوحدة الثانية:
الحد الأقصى للقرض الأسري: 1 مليون يوان، الفردي: 500000 يوان.
نسبة الدفعة الأولية: لا تقل عن 50%.
سياسة أسعار الفائدة:
الوحدة الأولى: أقل من 5 سنوات: 2.6%، 5 سنوات أو أكثر: 3.1%.
الوحدة الثانية: أقل من 5 سنوات: 3.025%، 5 سنوات أو أكثر: 3.575%.
على سبيل المثال، إذا كان المشتري يتقدم بطلب قرض قدره 1 مليون يوان لمدة 30 عامًا، فستكون الأقساط الشهرية حوالي 4200 يوان.
3. سياسة الضرائب: التكلفة الشاملة من ضريبة الميراث إلى ضريبة القيمة المضافة
(1) ضريبة الميراث
الوحدة الأولى:
أقل من 90 متر مربع: 1%.
90 متر مربع أو أكثر: 1.5%.
الوحدة الثانية:
أقل من 90 متر مربع: 1%.
90 متر مربع أو أكثر: 2%.
3 وحدات أو أكثر: 3%.
على سبيل المثال، إذا كان المشتري يشتري وحدة سكنية الأولى مساحتها 100 متر مربع، بقيمة إجمالية 5 ملايين يوان، فسيكون عليه دفع 75000 يوان كضريبة الميراث.
(2) ضريبة القيمة المضافة والرسوم الإضافية
2 سنة أو أكثر:
إعفاء الوحدات السكنية العادية.
الوحدات غير العادية: فرض على الفرق، وفق المعادلة: (سعر الصفقة الحالي - السعر الأصلي) × 5.3%.
أقل من 2 سنة: فرض بنسبة 5.3% على القيمة الإجمالية.
على سبيل المثال، إذا كان المشتري يشتري وحدة سكنية غير عادية بسعر صفقة 6 ملايين يوان، وسعر شراء أصلي 4 ملايين يوان، فسيكون عليه دفع 106000 يوان كضريبة القيمة المضافة والرسوم الإضافية.
(3) ضريبة الدخل الشخصي
5 سنوات أو أكثر، الوحدة الوحيدة: إعفاء.
أحوال أخرى: فرض بنسبة 20% على الفرق أو 1% على القيمة الإجمالية.
على سبيل المثال، إذا كان المشتري يشتري وحدة سكنية بسعر صفقة 5 ملايين يوان، وسعر شراء أصلي 3 ملايين يوان، فسيكون عليه دفع 400000 يوان كضريبة الدخل الشخصي.
4. سياسات خاصة: الميول نحو استقطاب المواهب والأسر ذات الأطفال المتعددين
(1) سياسة استقطاب المواهب
منطقة جديدة في منطقة التجارة الحرة Lin - gang: يمكن للمؤهلين الاستفادة من تقليص فترة الضمان الاجتماعي إلى 12 شهرًا، والحصول على امتيازات مثل الأولوية في الاختيار.
على سبيل المثال، إذا كان الشخص لديه درجة الماجستير ويعمل في المنطقة لمدة سنة على الأقل، فإنه يستوفي شروط الأهلية.
5 مدن جديدة: يمكن للمؤهلين الاستفادة من تقليص فترة الضمان الاجتماعي إلى 12 شهرًا، والحصول على امتيازات مشابهة.
على سبيل المثال، إذا كان الشخص لديه درجة البكالوريوس ويعمل في المدن لمدة سنة على الأقل، فإنه يستوفي شروط الأهلية.
(2) سياسة الأسر ذات الأطفال المتعددين
أسر ذات طفلين أو أكثر: يمكن الاستفادة من زيادة الحد الأقصى للقرض بنسبة 20% عند شراء الوحدة الأولى.
على سبيل المثال، إذا كانت الأسرة ذات طفلين تشتري وحدة سكنية أولى، فإن الحد الأقصى للقرض الأسري يمكن أن يرتفع من 1.2 مليون يوان إلى 1.44 مليون يوان.
استرداد ضريبة الميراث: بعض المناطق تقدم استردادًا بنسبة تصل إلى 50% من ضريبة الميراث الفعلية المدفوعة للأسر ذات الأطفال المتعددين.
على سبيل المثال، إذا كانت الأسرة ذات طفلين تشتري وحدة سكنية أولى مساحتها 100 متر مربع، بقيمة إجمالية 5 ملايين يوان، مع ضرائب الميراث 75000 يوان، فإنها يمكن أن تستفيد من استرداد قدره 37500 يوان.
5. اتجاهات السياسة والتوصيات
(1) اتجاهات السياسة
تظهر سياسات سوق العقارات في شنغهاي لعام 2024 اتجاه "التنظيم الدقيق"، حيث تعمل على تثبيط الطلب الاستثماري من خلال قيود الشراء والقروض، بينما تدعم الطلب المعقول للمساكن من خلال سياسات المواهب والأسر ذات الأطفال المتعددين. ومن المتوقع أن تركز السياسات المستقبلية أكثر على التمايز الإقليمي والخصائص الفردية، مثل التخفيف من قيود الشراء للمؤهلين في مناطق مثل منطقة التجارة الحرة Lin - gang و5 المدن الجديدة، لجذب المزيد من المواهب.
(2) توصيات الشراء
خطط مسبقة لدفع الضمان الاجتماعي: تأكد من استيفاء شروط الأهلية، خاصة بالنسبة للأسر غير المحلية، التي تحتاج إلى 5 سنوات متتالية من الضمان الاجتماعي أو الضريبة.
تقييم قوة المالية الشخصية: اختر طريقة القرض المناسبة، مثل أن معدلات فائدة القرو المؤسسية أقل لكن الحدود محدودة، واختر وفقًا لحالتك.
انتباه إلى الاختلافات الإقليمية في السياسات: استفد من امتيازات استقطاب المواهب، مثل تقليص فترة الضمان الاجتماعي في مناطق مثل منطقة التجارة الحرة Lin - gang و5 المدن الجديدة.
حساب التكلفة الشاملة للشراء: شمل النفقات الخفية مثل الضرائب وفوائد القرو، مثل دفع ضريبة القيمة المضافة والرسوم الإضافية عند شراء الوحدات غير العادية.
اتصل بخدمتنا المخصصة على الرقم: 400 - 9692 - 958. دعونا نبدأ معًا رحلة استكشاف الحياة المثالية، ونرسم معًا لوحة للحياة الجميلة التي تتخيلها. نتطلع إلى اتصالك!
上海购房政策全解析:从限购到贷款,读懂核心要点
随着上海楼市持续升温,购房政策成为市民关注的焦点。本文结合安联虹悦等热门楼盘的实际需求,系统梳理上海购房政策的核心要点,为购房者提供实用指南。
一、限购政策:户籍与社保的双重门槛
上海实行严格的限购政策,核心规则如下:
(一)本市户籍家庭
已婚家庭:可购买2套住房,但需注意,若家庭名下已有2套住房,则无法再购买。
单身家庭:包括未婚、离异、丧偶等情况,限购1套住房。离异后3年内购房的,按离异前家庭总套数计算。例如,若离异前家庭拥有2套住房,离异后3年内双方均无法再购房。
(二)非本市户籍家庭
已婚条件:需满足已婚状态,且夫妻双方至少一方需在上海工作。
社保要求:需在63个月内累计缴纳60个月社保或个税,补缴社保不被认可,需连续缴纳。例如,若某人在2019年1月开始在上海工作,并连续缴纳社保至2024年1月,则满足购房资格。
限购套数:限购1套住房,且需在购房前提供连续5年的社保或个税证明。
(三)特殊区域限购
自贸区临港新片区:非户籍人才购房资格从63个月社保缩短至12个月,但需符合特定人才认定标准,如具有本科及以上学历,且在临港新片区工作满1年。
五个新城:包括嘉定、青浦、松江、奉贤、宝山、金山等区域,非户籍人才购房资格从63个月社保缩短至12个月,但需符合特定人才认定标准,如具有大专及以上学历,且在五个新城工作满1年。
二、贷款政策:首付比例与利率的精细化调控
(一)商业贷款
首套房认定:
无住房且无贷款记录的购房者,首付比例不低于35%。
无住房但有贷款记录(已结清)的,首付比例不低于50%。
有住房的,首付比例不低于70%。
二套房认定:
在已有1套住房或贷款记录未结清的情况下,再次购房视为二套,首付比例不低于70%。
利率政策:
当前首套房贷款利率为LPR - 10BP(约3.55%),二套房为LPR + 30BP(约3.95%)。
例如,若某购房者购买首套房,贷款金额为100万元,贷款期限为30年,则每月还款金额约为4,500元。
(二)公积金贷款
首套房:
家庭最高贷款额度120万元,个人最高60万元。
首付比例不低于20%。
二套房:
家庭最高贷款额度100万元,个人最高50万元。
首付比例不低于50%。
利率政策:
首套房5年以下2.6%,5年以上3.1%。
二套房5年以下3.025%,5年以上3.575%。
例如,若某购房者购买首套房,贷款金额为100万元,贷款期限为30年,则每月还款金额约为4,200元。
三、税费政策:从契税到增值税的全面成本
(一)契税
首套房:
90㎡以下1%。
90㎡以上1.5%。
二套房:
90㎡以下1%。
90㎡以上2%。
三套房及以上:
3%。
例如,若某购房者购买首套房,面积为100㎡,总价为500万元,则需缴纳契税为500万元×1.5% = 7.5万元。
(二)增值税及附加
满2年:
普通住宅免征。
非普通住宅按差额征收,计算公式为(本次交易价格 - 原购买价格)×5.3%。
未满2年:
按全额5.3%征收。
例如,若某购房者购买非普通住宅,本次交易价格为600万元,原购买价格为400万元,则需缴纳增值税及附加为(600万元 - 400万元)×5.3% = 10.6万元。
(三)个人所得税
满五唯一:
免征。
其他情况:
按差额20%或全额1%征收。
例如,若某购房者购买住房,本次交易价格为500万元,原购买价格为300万元,则需缴纳个人所得税为(500万元 - 300万元)×20% = 40万元。
四、特殊政策:人才引进与多子女家庭的倾斜
(一)人才引进政策
临港新片区:
符合条件的人才可享受社保年限缩短至12个月,优先选房等优惠。
例如,某具有硕士学历的人才,在临港新片区工作满1年,即可享受购房资格。
五个新城:
符合条件的人才可享受社保年限缩短至12个月,优先选房等优惠。
例如,某具有本科学历的人才,在五个新城工作满1年,即可享受购房资格。
(二)多子女家庭政策
二孩及以上家庭:
在购买首套住房时,可享受最高贷款额度上浮20%的优惠。
例如,某二孩家庭购买首套房,家庭最高贷款额度可从120万元上浮至144万元。
契税补贴:
部分区域对多子女家庭给予契税补贴,最高可达实际缴纳契税的50%。
例如,某二孩家庭购买首套房,面积为100㎡,总价为500万元,需缴纳契税7.5万元,可享受契税补贴3.75万元。
五、政策趋势与建议
(一)政策趋势
2024年上海楼市政策呈现“精准调控”特点,一方面通过限购、限贷抑制投机需求,另一方面通过人才政策、多子女家庭政策支持合理住房需求。预计未来政策将更加注重区域差异化和个性化,例如在临港新片区和五个新城等区域,可能会进一步放宽人才购房限制,吸引更多人才落户。
(二)购房建议
提前规划社保缴纳时间:确保满足购房资格,特别是非本市户籍家庭,需连续缴纳5年社保或个税。
合理评估自身经济实力:选择符合需求的贷款方式,例如公积金贷款利率较低,但额度有限,需根据自身情况选择。
关注区域政策差异:充分利用人才引进等优惠政策,例如在临港新片区和五个新城等区域,可享受社保年限缩短等优惠。
全面计算购房成本:包括税费、贷款利息等隐性支出,例如在购买非普通住宅时,需缴纳较高的增值税及附加。
拨打我们的专属服务热线:400-9692-958。让我们一起,开启一段关于理想生活的探索之旅,共同描绘您心中的美好生活画卷。期待您的来电!
声明:本文由入驻焦点开放平台的作者撰写,除焦点官方账号外,观点仅代表作者本人,不代表焦点立场。


