招商中旅观境-上海宝山招商中旅观境(2025年招商中旅观境)首页网站 | 招商中旅观境户型/周边配套
扫描到手机,新闻随时看
扫一扫,用手机看文章
更加方便分享给朋友
招商中旅观境售楼处电话:400-8558-224✔✔│招商中旅观境官方售楼处地址发布:上海宝山招商中旅观境官方售楼处电话400-855-8224
北上海TOD精奢人居标杆
7号线潘广路站66万方TOD大城全面进阶
招商中旅·观境
加推89-110㎡产品 共计142套
89㎡户型首次推出
过会均价47466元/㎡ 比前期便宜3000
前期少量110-144㎡3-4房在售
同内环豪宅同级别的精装标准
超配酒廊,泳池,健身等功能的星级会所
下沉庭院、架空层、酒店式入口、奢华公区···
招商中旅观境售楼处电话☎:400-8558-224
上海宝山招商中旅观境官方售楼处电话☎:400-855-8224✔✔✔(预约看房热线)
看房请提前致电预约,可享受内部渠道优惠!联系销售人员获取最新一房一价表,官方售楼处最新优惠底价!开发商官方销售人员将详细介绍每个户型的独特设计和优势,带您参观样板间,感受精装修的品质和温馨氛围。您还可以了解周边配套设施,包括高端购物中心、优质学校和便捷交通网络,让您的居住体验更加完美。
招商中旅观境售楼处电话☎:400-8558-224
招商中旅观境售楼处电话☎:400-8558-224
01、
基本信息
招商中旅观境售楼处电话☎:400-8558-224✔✔✔【预约☎】
上海宝山招商中旅观境官方售楼处电话☎:400-855-8224✔✔✔(预约看房热线)
2024年7月9日,招商蛇口&中旅投资拿下宝山顾村7号线潘广路站旁地块。
楼板价:约22252元/㎡,地块四至范围:东至0314-06 地块(公共绿地),南至0314-06 地块(公共绿地),西至0308-01 地块(公共绿地),北至言观路。
流体美学:以设计艺术品的态度来建造房子
项目采用鎏金塔冠造型,灵感来源于国际邮轮港的曲线,流光美学的外立面,既有辨识度又有质感,是未来业主身份的象征。阳光倾泻而下,在不同光影与环境下,让家成为一件艺术品。
镜面美学:不仅美观还很实用
整个建筑立面,被大面积的镜面玻璃覆盖,于外赋予建筑如同钻石一般的光感,于内极大地拓宽了室内的视野,让自然光线无拘无束地洒入每一个空间。
立面部分,微弧造型,配置超大窗墙比,非对称线条勾勒经典比例建筑体量,消解了建筑的庄严和冷峻,赋予更强的立体感,犹如画框一般,多了一份艺术沉淀。
招商中旅观境售楼处电话☎:400-8558-224
同时,将轻法雅奢的圆润线条贯彻于大门雨棚、入户门头之间,赋予建筑艺术灵动之意,重塑大城人居美学。
社区上,项目享四重酒店式归家
第一重:约70⽶超⼤尺度酒店感门庭,打造酒店般的港湾式落客。
第⼆重:酒店式礼品⼤堂,以星级酒店审美融合⾮遗技艺,每次回家宛如⼊住酒店的check in。
第三重:浮岛⽔庭,下沉式中庭花园,以⽔境、浮岛、密林,构建都市中的谧境。
第四重:⼊户单元门头延续奢华酒店的美学质感。
招商中旅·观境,带来的不仅仅是美学体验上的升级,本次地块更是配置了约2000㎡的无边际高定会所,带来全方位的奢享升级。
据悉,未来该会所,将成为业主日常休闲的好去处,配置了行政酒廊、无边泳池、健身房和私宴厅等功能。
想象一下,未来业主下楼即可运动休闲,高端的健身器材,丰富的健身配套,都可以满足业主日常的健康所需;亦或是接纳来客,喝杯咖啡洽谈商务;或者年末预定晚宴等等……
招商中旅观境售楼处电话☎:400-8558-224✔✔✔【预约☎】
上海宝山招商中旅观境官方售楼处电话☎:400-855-8224✔✔✔(预约看房热线)
多功能场景,足以满足业主的各类需求。要知道,在外环,配置泳池会所的商品房项目,屈指可数,上海星河湾、颛桥紫薇花园……虽然在外环,但这些配备了泳池会所的楼盘,都是一线豪宅标准。
酒店级礼序,塑造度假园林生活
酒店级礼序,绝不仅仅是简单说说。招商中旅·观境所做的,是归家礼制、社区景观等方方面面的全面奢享高定。
先说归家礼制,四重酒店式归家:
第一重,配置约70米宽酒店感门厅,回家的第一眼,就有强烈视觉冲击,港湾式落客,尊贵感油然而生;
第二重,星级酒店式的礼宾大堂,挑高带来的庄重感,每次回家都像来到五星级酒店check in;
招商中旅观境售楼处电话☎:400-8558-224
未来业主出行等车,也完全可以在此稍作等候,奢石的奢华感,辅以温润的灯光,宁静安逸。
招商中旅观境售楼处电话☎:400-8558-224✔✔✔【预约☎】
上海宝山招商中旅观境官方售楼处电话☎:400-855-8224✔✔✔(预约看房热线)
第三重,下沉式的中庭花园,⽔境、浮岛、密林,构建都市中的谧境,摩登的水院,华灯映入水池,映出池底的金光色,雍容华贵,畅享宁静;
第四重,来到入户门厅,奢石铝板塑造厚重感,弧形的屋檐,带来流线型的美感。
整一套归家仪式下来,生活的烦忧,统统抛诸脑后,只剩下家的温馨。
招商中旅观境售楼处电话☎:400-8558-224✔✔✔【预约☎】
上海宝山招商中旅观境官方售楼处电话☎:400-855-8224✔✔✔(预约看房热线)02、
推售信息
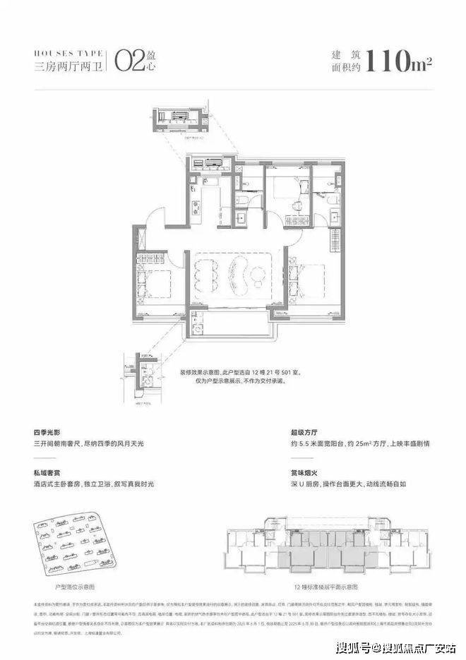
招商中旅·观境加推89-110㎡3房,过会均价47466元/㎡,共计142套,89㎡户型首次推出,前期建面约110-144㎡少量房源在售。
招商中旅观境售楼处电话☎:400-8558-224
大横厅+约5.5米面宽的阳台,尺度感惊人。
并且,在撑起气场的同时,也能为生活增添更多的场景想象。
3房4飘窗1阳台的设计,更是延伸了套内的视野,也增加了实际的居住空间。
尤其是边套约270度的无柱飘窗,更是尺度感和实用性拉满。
招商中旅观境售楼处电话☎:400-8558-224✔✔✔【预约☎】
上海宝山招商中旅观境官方售楼处电话☎:400-855-8224✔✔✔(预约看房热线)
整个户型是四开间朝南+南北通透的飞机户型。
在传统的四房领域,2房朝北几乎是逃不掉的问题,但在招商中旅·观境,做到了三间卧室朝南,并且主卧拥有一个约270度的主卧无柱转角飘窗。
整个户型的采光、通风、实际使用空间拉满。
细节方面,主卧套房设计,保证了私密性。主卫的双台盆设计更是相当贴心。能实现男女主人共同洗漱的温馨场景。
总的来说,从格调、定位、风格、用料、宜居性、社区配套的丰富性..各个角度来看,招商中旅·观境都能称得上是北境的TOP1。
招商中旅观境售楼处电话☎:400-8558-224✔✔✔【预约☎】
上海宝山招商中旅观境官方售楼处电话☎:400-855-8224✔✔✔(预约看房热线)03、
区域版块
北上海能级兑现 新顾城开启中心时代
❍上海南北转型战略 宝山树立北上海门户定位
宝山作为上海链接长三角北翼门户,打造现代化、创新型、⽣态化国际⼤都市主城区和绿⾊低碳转型样板区,在上海南北转型契机之下, 融入沿海沿江经济带,能级再度提升。
❍6大TOD+超级目的地 宝山主城规划加速兑现
宝山汇聚了招商等众多最具实力的开发力量,筹划丰翔路,潘广路、南大路、宝山站、通南路、呼兰路6大TOD,在上海各区中遥遥领先。
❍新顾城 北上海崛起的必然节点
新顾城定位为上海北部产城相融合、配套高标准、宜居多元化的大型居住社区,必然承接宝山产业升级转型和创新发展的海量人才居住需求,成为北上海宜居核心。简单说一下项目,招商中旅·观境毗邻7号线潘广路站,2站顾村公园,并途经上大、长寿路,直达静安寺。
大家知道,这里规划了招商花园城X,招商时代乐章也在隔壁,可以说共筑潘广路TOD大城。
上一个招商花园城X项目位于浦东曹路,秉持“X+商业”差异化策略,打造了曹路市集、室外36米的“天环飞瀑”、屋顶星际跑道等特色场景,并以超200个的全业态品牌数量,超50%的区域首店,成功点燃区域消费热情。
开业当日,曹路招商花园城客流破10万人次(工作日),开业前4天总客流超58万人次、总销售额逾3500万元。而这一次潘广路的招商花园城X商业会比曹路更高能级、更大体量。【20+主次力店 共创城市奇幻之旅】

预计引入20+主次力店,在X+商业理念,塑造缤纷场景,创造多元体验,带你开启城市中的奇幻之旅。招商中旅观境售楼处电话☎:400-8558-224
❍人文x生态:超级场景 打卡多元体验
家附近的微度假。引入海洋馆、冰雪世界、恐龙园等IP场景赋能,打造沉浸式空间,北上海城市微度假的一道靓丽名片。
商业上,附近还有龙湖天街商业中⼼、正⼤乐城、宝龙⼴场、旭辉U天地。
招商中旅观境售楼处电话☎:400-8558-224✔✔✔【预约☎】
上海宝山招商中旅观境官方售楼处电话☎:400-855-8224✔✔✔(预约看房热线)
【上海宝山招商中旅观境】
售楼处电话☎:400-8558-224【售楼处预约热线】(一对一热情服务)
看房请务必提前致电销售确认时间,只有预约客户才能享受开发商提供的内部优惠以及专属的老客户推荐奖励!我们提供专业的一对一热情服务,助您以专业视角挑选理想的房产。
招商中旅观境售楼处电话:4008558224【开发商售楼中心热线】招商中旅观境营销中心热线400-8558-224招商中旅观境售楼处地址400-8558-224,楼盘项目全面介绍,本电话为开发商提供线 上预约售楼电话,楼盘项目全面介绍(包含楼盘简介,均价,房价,现房,期房,别墅,叠墅,大平层,价格,楼盘地址,户型图,交通规划,备案价,备案名,项目配套,样板间,开盘时间,认筹时间,楼盘详情,售楼处电话,最新消息,最新详情,周边配套,一房一价,最新进展等详情咨询)楼盘详情丨价格丨更多优惠丨机不可失丨欢迎致电丨诚邀品鉴!售楼处位置丨特价房丨工抵房丨剩余房源丨户型图丨最新消息丨免责声明:将文章内容综合来源于网络、只作分享,版权归原作者所有!!如有侵权,请联系我们,我们第一时间处理如有问题欢迎来电咨询,专业一对一热情服务,让您用专业眼光去买房。如果您想了解更多楼盘详情,欢迎提前预约拨打招商中旅观境售楼处电话☎400_855_8224✔✔✔
招商中旅观境售楼处电话:400-8558-224✔✔│招商中旅观境官方售楼处地址发布:上海宝山招商中旅观境官方售楼处电话400-855-8224
北上海TOD精奢人居标杆
7号线潘广路站66万方TOD大城全面进阶
招商中旅·观境
加推89-110㎡产品 共计142套
89㎡户型首次推出
过会均价47466元/㎡ 比前期便宜3000
前期少量110-144㎡3-4房在售
同内环豪宅同级别的精装标准
超配酒廊,泳池,健身等功能的星级会所
下沉庭院、架空层、酒店式入口、奢华公区···
招商中旅观境售楼处电话☎:400-8558-224
上海宝山招商中旅观境官方售楼处电话☎:400-855-8224✔✔✔(预约看房热线)
看房请提前致电预约,可享受内部渠道优惠!联系销售人员获取最新一房一价表,官方售楼处最新优惠底价!开发商官方销售人员将详细介绍每个户型的独特设计和优势,带您参观样板间,感受精装修的品质和温馨氛围。您还可以了解周边配套设施,包括高端购物中心、优质学校和便捷交通网络,让您的居住体验更加完美。
招商中旅观境售楼处电话☎:400-8558-224
招商中旅观境售楼处电话☎:400-8558-224
01、
基本信息
招商中旅观境售楼处电话☎:400-8558-224✔✔✔【预约☎】
上海宝山招商中旅观境官方售楼处电话☎:400-855-8224✔✔✔(预约看房热线)
2024年7月9日,招商蛇口&中旅投资拿下宝山顾村7号线潘广路站旁地块。
楼板价:约22252元/㎡,地块四至范围:东至0314-06 地块(公共绿地),南至0314-06 地块(公共绿地),西至0308-01 地块(公共绿地),北至言观路。
流体美学:以设计艺术品的态度来建造房子
项目采用鎏金塔冠造型,灵感来源于国际邮轮港的曲线,流光美学的外立面,既有辨识度又有质感,是未来业主身份的象征。阳光倾泻而下,在不同光影与环境下,让家成为一件艺术品。
镜面美学:不仅美观还很实用
整个建筑立面,被大面积的镜面玻璃覆盖,于外赋予建筑如同钻石一般的光感,于内极大地拓宽了室内的视野,让自然光线无拘无束地洒入每一个空间。
立面部分,微弧造型,配置超大窗墙比,非对称线条勾勒经典比例建筑体量,消解了建筑的庄严和冷峻,赋予更强的立体感,犹如画框一般,多了一份艺术沉淀。
招商中旅观境售楼处电话☎:400-8558-224
同时,将轻法雅奢的圆润线条贯彻于大门雨棚、入户门头之间,赋予建筑艺术灵动之意,重塑大城人居美学。
社区上,项目享四重酒店式归家
第一重:约70⽶超⼤尺度酒店感门庭,打造酒店般的港湾式落客。
第⼆重:酒店式礼品⼤堂,以星级酒店审美融合⾮遗技艺,每次回家宛如⼊住酒店的check in。
第三重:浮岛⽔庭,下沉式中庭花园,以⽔境、浮岛、密林,构建都市中的谧境。
第四重:⼊户单元门头延续奢华酒店的美学质感。
招商中旅·观境,带来的不仅仅是美学体验上的升级,本次地块更是配置了约2000㎡的无边际高定会所,带来全方位的奢享升级。
据悉,未来该会所,将成为业主日常休闲的好去处,配置了行政酒廊、无边泳池、健身房和私宴厅等功能。
想象一下,未来业主下楼即可运动休闲,高端的健身器材,丰富的健身配套,都可以满足业主日常的健康所需;亦或是接纳来客,喝杯咖啡洽谈商务;或者年末预定晚宴等等……
招商中旅观境售楼处电话☎:400-8558-224✔✔✔【预约☎】
上海宝山招商中旅观境官方售楼处电话☎:400-855-8224✔✔✔(预约看房热线)
多功能场景,足以满足业主的各类需求。要知道,在外环,配置泳池会所的商品房项目,屈指可数,上海星河湾、颛桥紫薇花园……虽然在外环,但这些配备了泳池会所的楼盘,都是一线豪宅标准。
酒店级礼序,塑造度假园林生活
酒店级礼序,绝不仅仅是简单说说。招商中旅·观境所做的,是归家礼制、社区景观等方方面面的全面奢享高定。
先说归家礼制,四重酒店式归家:
第一重,配置约70米宽酒店感门厅,回家的第一眼,就有强烈视觉冲击,港湾式落客,尊贵感油然而生;
第二重,星级酒店式的礼宾大堂,挑高带来的庄重感,每次回家都像来到五星级酒店check in;
招商中旅观境售楼处电话☎:400-8558-224
未来业主出行等车,也完全可以在此稍作等候,奢石的奢华感,辅以温润的灯光,宁静安逸。
招商中旅观境售楼处电话☎:400-8558-224✔✔✔【预约☎】
上海宝山招商中旅观境官方售楼处电话☎:400-855-8224✔✔✔(预约看房热线)
第三重,下沉式的中庭花园,⽔境、浮岛、密林,构建都市中的谧境,摩登的水院,华灯映入水池,映出池底的金光色,雍容华贵,畅享宁静;
第四重,来到入户门厅,奢石铝板塑造厚重感,弧形的屋檐,带来流线型的美感。
整一套归家仪式下来,生活的烦忧,统统抛诸脑后,只剩下家的温馨。
招商中旅观境售楼处电话☎:400-8558-224✔✔✔【预约☎】
上海宝山招商中旅观境官方售楼处电话☎:400-855-8224✔✔✔(预约看房热线)02、
推售信息
招商中旅·观境加推89-110㎡3房,过会均价47466元/㎡,共计142套,89㎡户型首次推出,前期建面约110-144㎡少量房源在售。
招商中旅观境售楼处电话☎:400-8558-224
大横厅+约5.5米面宽的阳台,尺度感惊人。
并且,在撑起气场的同时,也能为生活增添更多的场景想象。
3房4飘窗1阳台的设计,更是延伸了套内的视野,也增加了实际的居住空间。
尤其是边套约270度的无柱飘窗,更是尺度感和实用性拉满。
招商中旅观境售楼处电话☎:400-8558-224✔✔✔【预约☎】
上海宝山招商中旅观境官方售楼处电话☎:400-855-8224✔✔✔(预约看房热线)
整个户型是四开间朝南+南北通透的飞机户型。
在传统的四房领域,2房朝北几乎是逃不掉的问题,但在招商中旅·观境,做到了三间卧室朝南,并且主卧拥有一个约270度的主卧无柱转角飘窗。
整个户型的采光、通风、实际使用空间拉满。
细节方面,主卧套房设计,保证了私密性。主卫的双台盆设计更是相当贴心。能实现男女主人共同洗漱的温馨场景。
总的来说,从格调、定位、风格、用料、宜居性、社区配套的丰富性..各个角度来看,招商中旅·观境都能称得上是北境的TOP1。
招商中旅观境售楼处电话☎:400-8558-224✔✔✔【预约☎】
上海宝山招商中旅观境官方售楼处电话☎:400-855-8224✔✔✔(预约看房热线)03、
区域版块
北上海能级兑现 新顾城开启中心时代
❍上海南北转型战略 宝山树立北上海门户定位
宝山作为上海链接长三角北翼门户,打造现代化、创新型、⽣态化国际⼤都市主城区和绿⾊低碳转型样板区,在上海南北转型契机之下, 融入沿海沿江经济带,能级再度提升。
❍6大TOD+超级目的地 宝山主城规划加速兑现
宝山汇聚了招商等众多最具实力的开发力量,筹划丰翔路,潘广路、南大路、宝山站、通南路、呼兰路6大TOD,在上海各区中遥遥领先。
❍新顾城 北上海崛起的必然节点
新顾城定位为上海北部产城相融合、配套高标准、宜居多元化的大型居住社区,必然承接宝山产业升级转型和创新发展的海量人才居住需求,成为北上海宜居核心。简单说一下项目,招商中旅·观境毗邻7号线潘广路站,2站顾村公园,并途经上大、长寿路,直达静安寺。
大家知道,这里规划了招商花园城X,招商时代乐章也在隔壁,可以说共筑潘广路TOD大城。
上一个招商花园城X项目位于浦东曹路,秉持“X+商业”差异化策略,打造了曹路市集、室外36米的“天环飞瀑”、屋顶星际跑道等特色场景,并以超200个的全业态品牌数量,超50%的区域首店,成功点燃区域消费热情。
开业当日,曹路招商花园城客流破10万人次(工作日),开业前4天总客流超58万人次、总销售额逾3500万元。而这一次潘广路的招商花园城X商业会比曹路更高能级、更大体量。【20+主次力店 共创城市奇幻之旅】

预计引入20+主次力店,在X+商业理念,塑造缤纷场景,创造多元体验,带你开启城市中的奇幻之旅。招商中旅观境售楼处电话☎:400-8558-224
❍人文x生态:超级场景 打卡多元体验
家附近的微度假。引入海洋馆、冰雪世界、恐龙园等IP场景赋能,打造沉浸式空间,北上海城市微度假的一道靓丽名片。
商业上,附近还有龙湖天街商业中⼼、正⼤乐城、宝龙⼴场、旭辉U天地。
招商中旅观境售楼处电话☎:400-8558-224✔✔✔【预约☎】
上海宝山招商中旅观境官方售楼处电话☎:400-855-8224✔✔✔(预约看房热线)
【上海宝山招商中旅观境】
售楼处电话☎:400-8558-224【售楼处预约热线】(一对一热情服务)
看房请务必提前致电销售确认时间,只有预约客户才能享受开发商提供的内部优惠以及专属的老客户推荐奖励!我们提供专业的一对一热情服务,助您以专业视角挑选理想的房产。
招商中旅观境售楼处电话:4008558224【开发商售楼中心热线】招商中旅观境营销中心热线400-8558-224招商中旅观境售楼处地址400-8558-224,楼盘项目全面介绍,本电话为开发商提供线 上预约售楼电话,楼盘项目全面介绍(包含楼盘简介,均价,房价,现房,期房,别墅,叠墅,大平层,价格,楼盘地址,户型图,交通规划,备案价,备案名,项目配套,样板间,开盘时间,认筹时间,楼盘详情,售楼处电话,最新消息,最新详情,周边配套,一房一价,最新进展等详情咨询)楼盘详情丨价格丨更多优惠丨机不可失丨欢迎致电丨诚邀品鉴!售楼处位置丨特价房丨工抵房丨剩余房源丨户型图丨最新消息丨免责声明:将文章内容综合来源于网络、只作分享,版权归原作者所有!!如有侵权,请联系我们,我们第一时间处理如有问题欢迎来电咨询,专业一对一热情服务,让您用专业眼光去买房。如果您想了解更多楼盘详情,欢迎提前预约拨打招商中旅观境售楼处电话☎400_855_8224✔✔✔
声明:本文由入驻焦点开放平台的作者撰写,除焦点官方账号外,观点仅代表作者本人,不代表焦点立场。


