中建观澜雅静(售楼处)首页网站-中建观澜雅静销售中心(营销中心)-中建观澜雅静价格-地址-楼盘详情-周边配套-售楼处电话-交房时间
扫描到手机,新闻随时看
扫一扫,用手机看文章
更加方便分享给朋友
中建观澜雅静售楼处电话:400-9988-414
中建观澜雅静营销中心电话:400-9988-414
中建观澜雅静售楼中心:400-998-8414
项目基础档案
项目名称:中建·观澜雅境
地块信息:苏地2021-WG-78号地块
开发品牌:中建国际×中建东孚
中建观澜雅静售楼处电话☎:400-9988-414✔✔欢迎来电咨询! (预约看房热线)可预约销售人员,专业一对一热情服务,让您用专业眼光去买房。
项目地址:新区太湖科学城普陀山路与俞巷路交汇处
地块指标:容积率2.0,总建面32.4万方,其中住宅21.61万㎡(含8.58万㎡人才房)
产品信息:拟建28栋16-17F高层住宅,共1552户
户型配置:商品房125、143㎡;人才公寓120、140、180、240、280㎡
精装装标:全装修住宅
物业公司:中建东孚物业
价格信息:楼面价8708元/平,备案均价26700元/平
江苏省苏州市虎丘区通安镇210县道与159乡道交叉口西200米
中建观澜雅静售楼处电话:400-9988-414
中建观澜雅静营销中心电话:400-9988-414
中建观澜雅静售楼中心:400-998-8414
【世界级湖区科创中心】太湖科学城是落实长三角一体化国家战略,打造长三角国家创新中心,建设世界级生态湖区、创新湖区的重要载体,未来将建设5大功能板块,包括:重大科学研究区、科教资源汇集区、交叉平台集聚区、科技成果转化区、文化商务配套区。被纳入苏州市“十四五”规划的太湖科学城,板块发展潜力巨大,势必会成为苏州下一个价值爆点。
【引领城市发展3.0时代】如果说狮山是新区城市发展1.0时代(金融时代),科技城是新区城市发展2.0时代(科技产业时代);那么,太湖科学城核心区以南大为引领,“产、学、研、商、住”综合发展,起点更高、规划更强、兑现更快,引领区域进入城市发展3.0时代!

中建观澜雅静售楼处电话:400-9988-414
中建观澜雅静营销中心电话:400-9988-414
中建观澜雅静售楼中心:400-998-8414
【星罗棋布的商圈生活】区域内,时尚水岸、梦之城、高新区文体中心、丰茂里等商业先期入驻,满足基本需求,多个邻里中心节点性分布(建设中),星悦里(建设中,2022年底开业),进一步提升区域商业消费便利度。自带高端商业地标,将带来独有商业娱乐休闲购物体验,丰满区域品质生活!

【真山真水的自然底色】区域内大阳山、太湖国家湿地公园、太湖山水带环绕,12座山体、34条河道湖泊交织,生态环境优越;已新增和改造绿化约500万平方米,打造彩石湖公园、恩古山公园、小茅山公园、诺贝尔湖公园等公园点缀,为生活增添生命活力!
中建观澜雅静售楼处电话:400-9988-414
中建观澜雅静营销中心电话:400-9988-414
中建观澜雅静售楼中心:400-998-8414
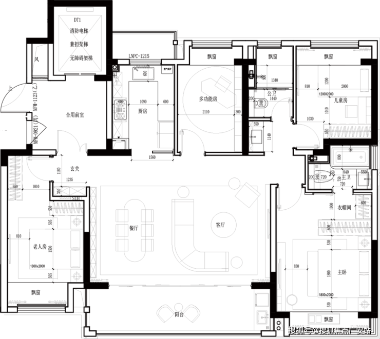
户型
【125户型】


中建观澜雅静售楼处电话:400-9988-414
中建观澜雅静营销中心电话:400-9988-414
中建观澜雅静售楼中心:400-998-8414
【143户型】


交通优势

中建观澜雅静售楼处电话:400-9988-414
中建观澜雅静营销中心电话:400-9988-414
中建观澜雅静售楼中心:400-998-8414
五位一体 畅达全城
【主干路网】三纵:俞巷路、龙康路、通墅路;三横:昆仑山路(后期昆仑山路穿过大阳山隧道连接中环北线)、普陀山路、太湖大道;多通道直连科技城核心区及苏州市区;
【有轨电车】距离苏州有轨电车1号线、2号线(龙康路站)1.5km,距离有轨电车2号线漓江路站1.5km;
【轨道交通】规划9号线、11号线,提升板块交通能级,本案距离11号线庄里山北站600米、龙康路站700米;
【绕城高速】S17苏台高速(绕城),距离天池山枢纽6KM,快速连接苏锡常及长三角;
【城际铁路】规划苏锡常城际铁路,科技城站。

教育体系
南大附属 卓越教育
南大附属教育集团,当前规划5所幼儿园,2所小学,1所初中。包含南大附属幼儿园昆仑园、龙康园、南大附属第一小学、南大附属第二小学、南大附属初中。全学龄教育,一站式品牌名校教育资源。

中建观澜雅静售楼处电话:400-9988-414
中建观澜雅静营销中心电话:400-9988-414
中建观澜雅静售楼中心:400-998-8414
(南大附属第一小学,规划8轨48班预留2轨,建成后预计新增学位2160个)
都荟生活
360°繁华聚核 执掌生活轴心
【星罗棋布的商圈生活】区域内,时尚水岸、梦之城、高新区文体中心、丰茂里等商业先期入驻,满足基本需求,多个邻里中心节点性分布(建设中),星悦里(建设中,2022年底开业),进一步提升区域商业消费便利度。自带高端商业地标,将带来独有商业娱乐休闲购物体验,丰满区域品质生活!

【近在咫尺的公共医疗】科技城医院,作为一家三级综合性医院,距离本案直线距离仅1km。

【真山真水的自然底色】区域内大阳山、太湖国家湿地公园、太湖山水带环绕,12座山体、34条河道湖泊交织,生态环境优越;已新增和改造绿化约500万平方米,打造彩石湖公园、恩古山公园、小茅山公园、诺贝尔湖公园等公园点缀,为生活增添生命活力!
中建观澜雅静售楼处电话☎:400-9988-414✔✔欢迎来电咨询! (预约看房热线)可预约销售人员,专业一对一热情服务,让您用专业眼光去买房。
中建观澜雅静售楼处电话:400-9988-414中建观澜雅静营销中心电话:400-9988-414中建观澜雅静售楼中心:400-998-8414楼盘项目全面介绍,本电话为开发商提供线上预约售楼电话,楼盘项目全面介绍(包含楼盘简介,均价,房价,现房,期房,别墅,叠墅,大平层,价格,楼盘地址,户型图,交通规划,备案价,备案名,项目配套,样板间,开盘时间,认筹时间,楼盘详情,售楼处电话,最新消息,最新详情,周边配套,一房一价,最新进展等详情咨询)楼盘详情丨价格丨更多优惠丨机不可失丨欢迎致电丨诚邀品鉴!售楼处位置丨特价房丨工抵房丨剩余房源丨户型图丨最新消息丨免责声明:将文章内容综合来源于网络、只作分享,版权归原作者所有!!如有侵权,请联系我们,我们第一时间处理如有问题欢迎来电咨询,专业一对一热情服务,让您用专业眼光去买房。如果您想了解更多楼盘详情,欢迎提前预约拨打中建观澜雅静售楼处电话☎400-9988-414
房产知识一百条
1、什么是房产:房屋产权的简称。
2、什么是地产:是指土地财产。
3、什么是房地产:是房产和地产的总称。
4、什么是房地产业:从事房地产开发、建设、经营、管理以及维修、装饰和服务的综合性产业。
5、什么是房地产开发:是指在依法取得土地使用权的土地上按照使用性质的要求进行基础设施、房屋建筑的活动。
6、什么是土地开发:是将“生地”开发成可供使用的土地。
7、集体土地是指:农村集体所有的土地。
8、征用土地是指:国家为了公共利益的需要,可依照法律规定对集体所有的土地实行征用。
9、什么是土地所有权:是指国家或集体经济组织对国家土地和集体土地依法享有的占有、使用、收益和处分的权能。
10、什么是土地使用权的出让:指国家以协议、招标、拍卖的方式将土地所有权在一定年限内出让给土地使用者,由使用者向国家支付土地使用权出让金的行为。
11、什么是土地使用权转让:是指土地使用者通过出售、交换、赠与和继承的方式将土地使用权再转移的行为。
12、什么是地籍、产籍:是对在房地产调查登记过程产生的各种图表、证件等登记资料,经过整理、加工、分类而形成的图、档、卡、册等资料的总称。
13、生地是指:不具备开发条件的土地。
14、熟地是指:已完成三通一平(水、电、道路,土地平整)或七通一平,具备开发条件的土地。
15、什么是宗地:是地籍的最小单元,是指以权属界线组成的封闭地块。
16、什么是宗地图:是土地使用合同书附图及房地产登记卡附图。它反映一宗地的基本情况。包括:宗地权属界线、界址点位置、宗地内建筑位置与性质、与相邻宗地的关系等。
17、证书附图是指:房地产后面的附图,主要反映房地产情况及房地产所在宗地情况。
18、什么是物业管理:泛指一切有关房地产开发、经营、商品房销售、租赁及售后服务。
19、什么是业主委员会:是在物业管理区域内代表全体业主实施自治管理的组织。是代表
物业全体业主合法权益的社会团体,其合法权益受国家法律保护。
20、业主委员会是如何产生的:由业主大会从全体业主中选举产生。
21、住房补贴是指:国家为职工解决住房问题而给予的补贴资助。
22、房屋的所有权是指:对房屋全面支配的权利。
23、房地产交易的两种主要形式是:地产交易形式与房产交易形式。
24、建筑物是指:人工建造而成的房屋和构筑物。
25、构筑物是指:建筑物中除房屋以外的东西。
26、什么是期房:是指消费者在购买时不具备即买即可入住的商品房。
27、期房是如何介定的:房地产开发商拿到商品房预售许可证开始至取得房地产权证大产证或竣工验收合格可以直接入住使用)为止。
28、什么是预售合同:消费者在购买期房时签定的销售合同。
29、什么是现房:是指消费者在购买时具备即买即可入住的商品房,即开发商已办妥所售的商品房的大产证(或已经竣工验收合格并交付使用)的商品房。
30、什么是毛坯房:房地产商交付屋内只有门框没有门,墙面地面仅做基础处理而未做表面处理的房叫毛坯房。
31、什么是成品房:是指对墙面、天花、门套、地板实行装修。
32、什么是商品房:是指以完全的市场价格向购房者出售的房子。
33、商品房预售是指:在房地产尚未建成以前,房地产的经销商在取得受买人一定数量的定金后,将期房出售给受买人。
34、商品房现售是指:指房地产开发企业将竣工验收合格的商品房出售给买受人。
35、二手房通常指的是:再次进行买卖交易的住房。
36、经济适用房指的是:面向中低收入家庭的普通住宅。
37、例出3种以上的安居房的种类:准成本房、全成本房、全成本微利房和社会微利房。
38、低层住宅的介定:1-3层的住宅。
39、多层住宅的介定:4-6层的住宅。
40、小高层住宅的介定:7-11层的住宅。
41、中高层住宅的介定:12-16层的住宅。
42、高层住宅的介定:16层以上为高层住宅。
43、超高层建筑的介定:总高度超过100米的建筑。
44、商品房的结构是指:房屋主体所使用的施工工艺和用材。
45、钢结构的意思是:承重的主要结构是用钢材料建造的,包括悬索结构。
46、钢混结构的意思是:承重的主要结构是用钢和混凝上建造的。
47、砖木结构的意思是:承重的主要结构是用砖、木材建造的。
48、砖混结构的意思是:主要是砖墙承重,部分是钢盘混凝土承重的结构。
49、框架结构的意思是:以钢筋混凝土浇捣成承重梁柱,再用预制的隔墙分户的结构。
50、开间指的是:一间房屋内一面墙的定位轴线到另一面墙的定位轴线之间的实际距离。
51、进深指的是:一间独立的房屋或一幢居住建筑内从前墙的定位轴线到后墙的定位轴线之间的实际长度。
52、层高指的是:下层地板面或楼板面到上层楼层面之间的距离。
53、净高指的是:下层楼板上表面到上层楼板下表面之间的距离。
54、占地面积指的是:地块的总面积。
55、1亩约等于多少平方米:666.66㎡
56、居住小区总用地指的是什么用地的总和:住宅总用地,公共建筑设施总用地,道路、广场用地、庭院、绿化用地的总和。
57、住宅总用地是指:住宅用地面积的总和。
58、公建总用地是指:小区内部公共建筑占地面积的总和。
59、建筑用地面积的介定:建设用地位置和界线所围合的用地之水平投影面积。
60、建筑基底面积是指:建筑物首层的建筑面积。
61、建筑高度是指:建筑物室外地平面至外墙面顶部的总高度。
62、房屋的基底面积是指:房屋的基底面积是指建筑物底层勒脚以上外围水平投影面积。
63、道路面积是指:小区内宽度大于1.5米道路的面积总和。
64、广场面积是指:停车、回车广场和有铺砌地面的场地面积之和。
65、庭院、绿化面积是指:小区内集中绿化带、小公园,以及公共活动场所等为小区所有居住人员共同使用权的绿化面积的总和。
66、假山、小池算不算庭院、绿化面积:算。
67、人均总占地面积(㎡/人)的计算公式:人均总占地面积=建筑红线内总用地÷本小区规划居住总人数。
68、人均住宅用地面积(㎡/人)的计算公式:人均住宅用地面积=小区内总住宅用地÷本小区规划居住总人数。
69、总建筑面积是指:小区内住宅、公共建筑、人防地下室面积总和。
70、人防地下室算不算在总建筑面积之内:算
71、住宅建筑面积是指:住宅建筑外墙外围线测定的各层平面面积之和。
72、套建筑面积是指:一套房屋的整体面积。
73、套建筑面积的构成是:套内建筑面积和套分摊的公用建筑面积
74、幢(栋)是指:一座独立的,包括不同结构和不同层次的房屋。
75、架空房屋是指:一般为底层架空,以柱子作为承重支撑物的房屋。
76、夹层是指:位于两自然层之间的楼层,指房屋内部空间的局部层次。
77、技术层的意思是:用作水、电、暖、卫生等设备安装的局部层次。
78、技术层层高在多少以上计算层数:2.20米以上的计算层数。
79、结构转换层是指:建筑物某楼层的上部与下部因平面使用功能不同,该楼层上部与下部采用不同结构类型,并通过该楼层进行结构转换,则该楼层称为结构转换层。
80、跃层式住宅是指:一套住宅占两个楼层,由户内楼梯联系上下层,上下两层完全分隔。
81、阁楼是指:利用房屋内的上部空间加建的楼层。
82、阁楼层高在多高以上计算面积:2.20米以上。
83、地上层数是指:即房屋的自然层数,指室内地坪±0.00以上的按楼板结构分层的层高在2.20米以上的楼层数。
84、地上层数用什么数表示:自然数。
85、地下层数是指:采光窗在室外地坪以下的,其室内层高在2.20米以上的地下室的层数。
86、地下层数用什么数表示:负数。
87、房屋总层数是指:房屋的地上层数与地下层数之和。
88、地下层数算不算在房屋总层数之内:算。
89、例出3个以上不算在房屋总层数内的建筑层:假层、夹层、阁楼、装饰性塔楼、楼梯间、水箱间。
90、柱廊是指:有顶盖和支柱,供人通行的建筑物,称为有柱走廊,简称柱廊。
91、骑楼是指:底层为有柱廊房,廊道上方建为楼房的一部分。
92、挑廊是指:指二层以上挑出房屋墙体外,有围护结构,无支柱有顶盖的外走廊。
93、门廊是指:建筑物门前有顶盖,有支柱或围护结构的进出通道。
94、门斗是指:支撑建筑物门前顶盖的是实体墙称为门斗。
95、檐廊是指:房屋檐下方两端有支撑墙体无柱的通道。
96、天棚是指:即天篷,有透明顶篷履盖的屋面。
97、晒台又称什么:露台。
98、露台是指:供人室外活动的上人屋面或底层地面伸出室外的有维护无顶盖的台面。
99、阳台是指:有永久性上盖、有围护结构、有台面、与房屋相连、可以供人活动或利用的房屋附属设施。
100、阳台的分类有:封闭式阳台和半封闭式阳台。
中建观澜雅静售楼处电话☎:400-9988-414✔✔欢迎来电咨询! (预约看房热线)可预约销售人员,专业一对一热情服务,让您用专业眼光去买房。
声明:本文由入驻焦点开放平台的作者撰写,除焦点官方账号外,观点仅代表作者本人,不代表焦点立场。


