中粮北外滩壹号售楼处电话→上海中粮北外滩壹号售楼中心电话→2026中粮北外滩壹号楼盘百科→楼盘网站→售楼中心电话→楼盘百科→24小时热线电话→楼盘详情
扫描到手机,新闻随时看
扫一扫,用手机看文章
更加方便分享给朋友
上海虹口中粮北外滩壹号售楼处电话:400-8118-224【预约看房热线】中粮北外滩壹号 营销中心电话:400-8118-224开发商电话:400-8118-224中粮北外滩壹号展示中心电话:400-8118-224中粮北外滩壹号销售中心电话:400-8118-224【开发商认证】
▸中粮北外滩壹号售楼处地址:上海市黄浦区中华路518号融创外滩壹院(现场销售接待)
▸ 开放时间:每日9:00-19:30(含节假日)
▸VIP LINE 400-8118-224 | 官方唯一咨询热线
【温馨提示】本项目唯一官方联系方式,看房请提前预约!谨防中介虚假信息!
所有伟大的城市板块,都经历着从地理存在到文明符号的升华。
而当散点式的地王与明星楼盘不断雕刻局部价格天花板时,其背后实则遵循着一套更为实际且统一的价值叙事——稀缺性。
顺着稀缺性这一罗盘,我们便能清晰地洞察,真正的价值灯塔始终锚定于那片不可再生的核心资源:滨江住宅!
而上海人又恰恰对滨江住宅的要求近乎极致,既要占位城市重要规划点,又要有超出一般豪宅调性的品质,所以滨江住宅一直都是贵奢的代表。
上海虹口中粮北外滩壹号售楼处电话:400-8118-224 (预约看房热线)
【中粮北外滩壹号官方售楼处咨询热线】400-811-8224(24小时服务,人工客服8:00-22:00)
在上海一线滨江板块地图中,陆家嘴,黄浦滨江、徐汇滨江等地新房单价都已突破19万/㎡。今年6批次,北外滩地块也紧随其上,溢价率46.3%,预计售价约19万/㎡左右,成为今年最炙手可热的滨江板块之一。
凭心而论,北外滩新房单价卖到19万我一点也不奇怪。
答案显而易见:北外滩一直都是时代的佼佼者,它既是百年前海纳百川的港口,又是今日的世界会客厅,还是上海的未来发展引擎。
所以,当人们以为北外滩新房售价即将冲向19万/㎡、未来买入北外滩将付出巨大经济代价时,一个巨大的历史性机遇,【中粮北外滩壹号】出现了!
均价14.38万,总价约3000万起,这个价格无疑是北外滩错过再无的抄底机遇!
中粮北外滩壹号售楼处电话:400-8118-224(优惠活动咨询)
中粮北外滩壹号售楼处电话:400-8118-224(一对一置业规划)
中粮大悦城上海第五座壹号系,“世界S湾壹号作品”——【中粮·北外滩壹号】12月11日开启认购!
推售建面约185-228㎡天际大平层
过会均价143868元/m²,总价约2188万
最低单价11.75万起!
顶层地段+顶层社区+稀缺天际大平层价值,仅90席,错过再无!
认购时间:2025年12月11日-2025年12月15日
认购金:268万元
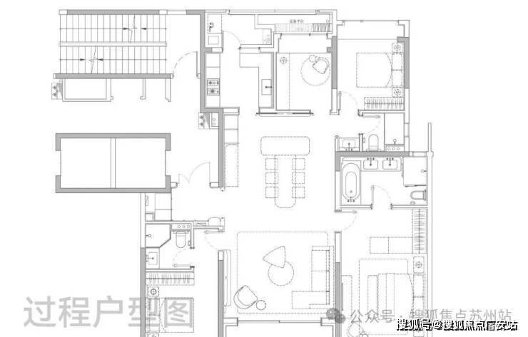
户型图赏鉴
185㎡四房奢阔大宅
上海虹口中粮北外滩壹号售楼处电话:400-8118-224 (预约看房热线)
【中粮北外滩壹号官方售楼处咨询热线】400-811-8224(24小时服务,人工客服8:00-22:00)
准1梯1户设计,私享电梯厅独立入户,经典飞机户型,三开间朝南,南北通透,动静分区,通风采光俱佳。
独立玄关做足私密性和仪式感;LDKB一体化设计的客餐厅面积达到约55㎡,方正大气。
主卧套房尺度豪奢,可供业主配置步入式衣帽间,卫生间做到双台盆+大浴缸+独立淋浴的顶配,尊崇感十足!
228㎡四房天际大宅
中粮北外滩壹号售楼处电话:400-8118-224(优惠活动咨询)
中粮北外滩壹号售楼处电话:400-8118-224(一对一置业规划)
准1梯1户设计,私享电梯厅独立入户,户型尺度进一步升级,当今顶豪新盘中极为稀缺的四开间朝南。
边厅面积超过50㎡,给一家人提供了阔绰的交流空间;约270°环幕景观设计,带来极好的采光,并且高区可以直面陆家嘴城市天际线+黄浦江景观,视野相当震撼!
主卧大套房设计带超大主卫和衣帽间,面积约50㎡,尺度感与市面上近300㎡的顶豪拉平。
室内设计由中国现代室内设计领域的领军人物——梁志天亲自打造。
在材质选用上,延续了壹号系的高端标准,大量运用奢石、高难度弧形工艺以及国内外顶尖品牌。
如宝格丽大理石打造的西厨岛台、铂浪高的净水三合一水龙头和一体式大水槽、霍尼韦尔的前置过滤器、全屋软水以及末端净水器系统、来自意大利法罗力燃气热水器、德国唯宝卫浴、当代龙头及花洒......还有全屋华为智能家居系统配置。这一套组合,是真正意义上的顶豪序列配置!
上海虹口中粮北外滩壹号售楼处电话:400-8118-224 (预约看房热线)
【中粮北外滩壹号官方售楼处咨询热线】400-811-8224(24小时服务,人工客服8:00-22:00)
中粮北外滩壹号售楼处电话:400-8118-224(优惠活动咨询)
中粮北外滩壹号售楼处电话:400-8118-224(一对一置业规划)
上海虹口中粮北外滩壹号售楼处电话:400-8118-224 (预约看房热线)
【中粮北外滩壹号官方售楼处咨询热线】400-811-8224(24小时服务,人工客服8:00-22:00)
▸中粮北外滩壹号售楼处地址:上海市黄浦区中华路518号融创外滩壹院(现场销售接待)
▸ 开放时间:每日9:00-19:30(含节假日)
Official Sales Office Hotline: 400-8118-224 【Sales Center Hotline】Marketing Center Hotline: 400-8118-224 --Official Sales Office Address
Comprehensive introduction to the real estate project. This hotline is an online booking number provided by the developer. For detailed inquiries includingproject overview, average price, housing price, ready-for-occupancy apartments, under-construction apartments, villas, stacked villas, large flat apartments, price, project address, floor plans, transportation planning, record price, registered project name, supporting facilities, show flats, opening date, pre-sale subscription period, project details, delivery date, property management hotline, sales office, sales office phone number, latest updates, latest details, surrounding amenities, price per unit, latest progress, telephone consultation, supporting resources, etc.Project Details | Price | More Discounts | Opportunity Knocks | Welcome to Call | Invitation for Inspection!
Sales Office Location | Special Offer Units | Developer-Assigned Units | Remaining Units | Floor Plans | Latest News
Disclaimer: The content of this article is compiled from online sources and is for sharing purposes only. All copyrights belong to the original authors!! In case of infringement, please contact us.
(Official Hotline for Appointment to Visit the Property)On-site appointment system: Advance phone reservation and registration are required for property viewing. Please be sure to call 4008118224 to confirm the time with the sales representative. Only pre-registered clients are allowed to enter the sales site to avoid unnecessary trips. Thank you for your support.
声明:本文由入驻焦点开放平台的作者撰写,除焦点官方账号外,观点仅代表作者本人,不代表焦点立场。


