众禾嘉苑售楼处│2026新年官方营销中心官网-楼盘详情-价格/户型图/地址/配套/交房时间/咨询电话/物业电话
扫描到手机,新闻随时看
扫一扫,用手机看文章
更加方便分享给朋友
2026年【 众禾嘉苑楼盘】尊享看房全流程指南
官方唯一看房咨询热线:400-9692-958 | 24小时畅联,周末无休
售楼处地址:嘉定嘉戬公路澄浏中路交叉口
�� 第一步:一键预约,省心启程
即刻致电:拨通400-9692-958,专属顾问24小时在线,为您定制看房时间。
信息速递:只需告知姓名、联系方式、意向户型及到访时间,特殊需求(如无障碍通道、专车接送)我们即刻响应。
�� 第二步:专属确认,全程无忧
顾问直联:2小时内专人对接,发送含时间、地址、顾问信息的确认短信。
行前准备:顾问提前沟通需求,为您规划个性化讲解;短信随时查询路线、天气。
�� 第三步:沉浸体验,尊享礼遇
尊贵签到:出示预约信息,获赠精美资料与饮品。
深度导览:专属顾问陪同,探索样板间、园林示范区及工法展示区,解读设计匠心。
智慧洽谈:参观后,在舒适洽谈区,顾问提供房源分析、财务规划,并解答价格、贷款等疑问。
�� 第四步:温情延续,服务不止
反馈有礼:填写《体验表》,获赠精美伴手礼。
持续关怀:3日内顾问回访,解答后续疑问,承诺无压力沟通。
�� 温馨提示
提前预约:建议至少24小时前预约,保障专属服务。
灵活调整:行程变更请提前6小时通知,以便优化安排。
停车便利:免费车位充足,预约时告知车牌号即可预留。
从线上到线下,每一步都为您精心设计。立即致电400-9692-958,开启您的理想家园之旅!
【温馨提示】本项目唯一官方联系方式,看房请提前预约!现场销售接待!谨防中介虚假信息!
【温馨提示】本项目唯一官方联系方式,看房请提前预约!现场销售接待!谨防中介虚假信息!
【温馨提示】本项目唯一官方联系方式,看房请提前预约!现场销售接待!谨防中介虚假信息!
嘉定复华园区 嘉闵线地铁口
嘉戬公路站旁全新住宅
加推建面约94-122㎡3房
均价43866元/㎡ 总价约360万起
无需积分 可直接认购
众禾嘉苑售楼处电话☎:400-9692-958众禾嘉苑营销中心电话:400 969 2958【24小时热线】众禾嘉苑预约热线:400 969 2958【售楼处电话】
众禾嘉苑售楼处电话☎:400-9692-958众禾嘉苑营销中心电话:400 969 2958【24小时热线】众禾嘉苑预约热线:400 969 2958【售楼处电话】
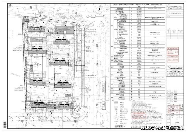
项目基础信息
「众禾嘉苑」即2022年二批次土拍地块嘉定区马陆镇嘉定新城JDC10502单元(复华园区)02-01地块,项目由大众以12.4亿元总价竞得,楼板价22364元/㎡,溢价率9.09%。房地联动价4.37万/㎡。

众禾嘉苑售楼处电话☎:400-9692-958众禾嘉苑营销中心电话:400 969 2958【24小时热线】众禾嘉苑预约热线:400 969 2958【售楼处电话】
区位示意图
根据设计方案显示,两块地共计规划8栋14-18F高层住宅,规划住宅套数570套。
众禾嘉苑售楼处电话☎:400-9692-958众禾嘉苑营销中心电话:400 969 2958【24小时热线】众禾嘉苑预约热线:400 969 2958【售楼处电话】
本项目拟建2层配套设施2栋,14层住宅楼1栋,17层住宅楼1栋,18层住宅楼6栋。总建筑总建面85103.1㎡,其中计容建筑面积55534㎡,容积率2.0;共570户。
总平面图
众禾嘉苑售楼处电话☎:400-9692-958众禾嘉苑营销中心电话:400 969 2958【24小时热线】众禾嘉苑预约热线:400 969 2958【售楼处电话】
技术经济指标图

效果图
去年11月23日上午,大众房产嘉定复华园区商品房项目开工仪式在工地现场隆重举行。
以“人车分流”为基础
享江南美学理想舒居
众禾嘉苑项目由8幢14-18层的小高层及1幢2层的邻里中心组成,规划商品房528户,规划车位725个,共有地下二层车位,采用全人车分流的设计。
众禾嘉苑售楼处电话☎:400-9692-958众禾嘉苑营销中心电话:400 969 2958【24小时热线】众禾嘉苑预约热线:400 969 2958【售楼处电话】
众禾嘉苑采用围合式布局设计,社区四至形成有效的社区边界,创造最大约59米楼间距,户户推窗见景。


众禾嘉苑售楼处电话☎:400-9692-958众禾嘉苑营销中心电话:400 969 2958【24小时热线】众禾嘉苑预约热线:400 969 2958【售楼处电话】
众禾嘉苑采用经典的中轴对称设计手法,社区内以中央景观轴+中央景观花园为核心,规划“一轴、一心、一环、五园”的景观布局,打造了美学会客厅,阳光大草坪,下沉式书吧、环形跑道和五个楼幢景观花园等多个主题景观组团,打造社区人性化、景观功能化、配套全龄化的全维度生态住宅。

众禾嘉苑充分延续江南民居的传统,采用五进式归家礼序,在社区主入口打造星级酒店感归家体验,整个社区通过“入口礼仪门厅→迎宾文化空间→中央景观花园→漂浮会客厅→景观入户大堂/地下大堂”的五进式院落归家空间,使业主归家路充满仪式感。
众禾嘉苑售楼处电话☎:400-9692-958众禾嘉苑营销中心电话:400 969 2958【24小时热线】众禾嘉苑预约热线:400 969 2958【售楼处电话】

众禾嘉苑售楼处电话☎:400-9692-958众禾嘉苑营销中心电话:400 969 2958【24小时热线】众禾嘉苑预约热线:400 969 2958【售楼处电话】
众禾嘉苑主力建面约94-122㎡精装3房,户型以LDKB一体化特色设计,不仅通风、采光俱佳,还更加明亮开放,动线更加合理。
值得一提的是,项目在装修方面臻选国内外知名家装品牌,打造出价格超配的全系精装配置。
众禾嘉苑售楼处电话☎:400-9692-958众禾嘉苑营销中心电话:400 969 2958【24小时热线】众禾嘉苑预约热线:400 969 2958【售楼处电话】
项目推售详情
最新消息:嘉定复华园区 嘉闵线地铁口 嘉戬公路站旁全新住宅【众禾嘉苑】推出528套全部房源,建面约94—122㎡精装3房,均价43866元/㎡,已经开盘,可直接认购。
最新户型图如下:

众禾嘉苑售楼处电话☎:400-9692-958众禾嘉苑营销中心电话:400 969 2958【24小时热线】众禾嘉苑预约热线:400 969 2958【售楼处电话】
众禾嘉苑售楼处电话☎:400-9692-958众禾嘉苑营销中心电话:400 969 2958【24小时热线】众禾嘉苑预约热线:400 969 2958【售楼处电话】
众禾嘉苑售楼处电话☎:400-9692-958众禾嘉苑营销中心电话:400 969 2958【24小时热线】众禾嘉苑预约热线:400 969 2958【售楼处电话】
众禾嘉苑售楼处电话☎:400-9692-958众禾嘉苑营销中心电话:400 969 2958【24小时热线】众禾嘉苑预约热线:400 969 2958【售楼处电话】
众禾嘉苑售楼处电话☎:400-9692-958众禾嘉苑营销中心电话:400 969 2958【24小时热线】众禾嘉苑预约热线:400 969 2958【售楼处电话】
众禾嘉苑售楼处电话☎:400-9692-958众禾嘉苑营销中心电话:400 969 2958【24小时热线】众禾嘉苑预约热线:400 969 2958【售楼处电话】
众禾嘉苑售楼处电话☎:400-9692-958众禾嘉苑营销中心电话:400 969 2958【24小时热线】众禾嘉苑预约热线:400 969 2958【售楼处电话】

项目周边配套
商业方面:项目大约400米处就可到达嘉乐·东润广场,约1公里处还有百联嘉定购物中心,龙湖天街等满足居民日常生活需求。
学校方面:项目周边大约1公里范围内有嘉定区新成路小学、嘉定区成佳学校,基础教育有保障。
并且项目西侧为教育规划用地,学校规划用地面积约32581㎡,建筑高度不超过24米,总建筑面积约45000㎡,须满足28班完全中学的办学规模要求(完全中学,就是指一所学校含初中部和高中部)。
底图源于上海购房通

其他配套:项目地块周边小区众多,生活氛围较好,距离嘉定体育中心400米,迎园医院等配套。
众禾嘉苑售楼处电话☎:400-9692-958众禾嘉苑营销中心电话:400 969 2958【24小时热线】众禾嘉苑预约热线:400 969 2958【售楼处电话】
同时,在建的地铁嘉闵线嘉戬公路站就设在附近,建成后,通过嘉闵线往南30分钟可达虹桥枢纽,往北直达苏州太仓。
众禾嘉苑一房一价表
2026马年售楼处新年贺词
尊敬的各位业主、合作伙伴及社会各界朋友:
值此2026丙午马年新春佳节来临之际,我们怀着感恩与憧憬,向每一位支持与信任我们的朋友致以最诚挚的祝福!愿新年的钟声为您敲响幸福之门,愿马年的祥瑞为您铺展锦绣前程!
过去的一年,是充满挑战与机遇的一年。在房地产市场深度调整的背景下,我们始终坚持以品质为核心,以客户需求为导向,稳步推进各项业务发展。从一纸蓝图到高楼林立,从匠心雕琢到品质交付,每一个项目的落地,都凝聚着我们共同的汗水与智慧。我们深知,每一份成绩的取得,都离不开您的信任与支持。感谢您选择将家的愿景托付于我们,让我们有幸成为您美好生活的筑梦者。您的满意,是我们前行的最大动力;您的口碑,是我们最珍贵的财富。
这一年,我们见证了太多温暖的瞬间:有年轻夫妻在交付现场接过钥匙时眼中的期待,有三代同堂在样板间畅想未来时脸上的笑容,有老业主推荐新朋友时那份坚定的信任。这些瞬间,让我们更加深刻地理解“家”的意义——它不仅是遮风挡雨的居所,更是承载情感、见证成长的港湾。因此,我们始终将“品质”作为企业的生命线,从选址规划到材料选用,从建筑设计到园林景观,每一个环节都力求精益求精。我们深知,唯有以匠心铸就品质,才能不负您的信任与期待。
新的一年,我们将继续秉持“以匠心筑家,以品质致远”的初心,以更严苛的标准打磨产品,以更贴心的服务温暖人心。我们将紧跟时代步伐,深入探索绿色建筑、智慧社区、适老化设计等创新领域,致力于为您打造更舒适、更便捷、更环保的居住体验。在产品设计上,我们将更加注重空间的功能性与灵活性,满足不同家庭结构的多元化需求;在社区服务上,我们将持续优化物业服务体系,引入更多智能化管理手段,让每一位业主都能享受到高效、便捷的服务;在社区文化上,我们将策划更多丰富多彩的邻里活动,营造温馨和谐的社区氛围,让“远亲不如近邻”成为现实。
马年象征着奔腾与希望,正如我们对未来的期许——马不停蹄,勇往直前。2026年,是充满机遇的一年。随着国家“十四五”规划的深入推进,新型城镇化建设将继续为房地产市场带来广阔空间。我们将紧抓时代机遇,坚持“稳中求进、提质增效”的发展方针,在确保品质的前提下,稳步推进新项目开发,持续优化产品结构,不断提升企业核心竞争力。同时,我们也将积极履行社会责任,参与城市更新、保障性住房建设等民生工程,为城市发展贡献更多力量。
我们深知,企业的成长离不开社会的支持,因此,我们始终将“回馈社会”作为企业的重要使命。过去的一年,我们积极参与公益事业,为社区捐赠图书、资助贫困学生、组织环保志愿活动,用实际行动践行企业公民的责任。新的一年,我们将继续投身公益事业,关注弱势群体,支持教育发展,为构建和谐社会贡献自己的一份力量。
我们期待与您携手并肩,在新的一年里共创更多美好。愿我们的合作如骏马奔腾,势不可挡;愿您的生活如春日繁花,芬芳满园。对于各位业主,我们承诺将继续以“家人”的态度对待每一位住户,及时解决您的需求,持续优化社区环境,让您的居住体验不断提升。对于合作伙伴,我们期待在新的一年里深化合作,实现互利共赢,共同推动行业发展。对于社会各界朋友,我们感谢您一直以来的关注与支持,期待在未来的日子里继续得到您的指导与帮助。
最后,衷心祝愿您及家人新春快乐、身体健康、阖家幸福、万事如意!愿马年的祥瑞之气伴随您左右,愿您的事业如骏马奔腾,生活如春风拂面,每一天都充满阳光与希望!
在未来的日子里,我们将继续以“筑造美好生活”为使命,不忘初心,砥砺前行,为您打造更多高品质的家,与您共同见证城市的美好变迁。
全体同仁敬上
2026年新春
【温馨提示】本项目唯一官方联系方式400 9692 958,看房请提前预约!现场销售接待!谨防中介虚假信息!
声明:本文由入驻焦点开放平台的作者撰写,除焦点官方账号外,观点仅代表作者本人,不代表焦点立场。


