向东岛花园(向东岛花园售楼处)首页网站-2025向东岛花园房价_楼盘评测丨地址丨详情丨售楼处电话丨 交房时间
扫描到手机,新闻随时看
扫一扫,用手机看文章
更加方便分享给朋友
太仓向东岛花园售楼处热线;4009665004太仓向东岛花园官方售楼处电话;4009665004太仓向东岛花园咨询热线:4009665004(享限时高额返现)太仓向东岛花园【400-966-5004√√√24小时预约热线】售楼处电话:400-966-5004一对一太仓向东岛花园热情服务热线:400-966-5004(了解最新优惠)开盘时间优惠力度交付时间300万-500万新房怎么选?更多优惠楼盘详情?
温馨提示:看房务必致电与销售确认时间,可获取新房特价房/工抵房,以及售楼部最新折扣优惠!
【越秀·向东岛】
越秀·向东岛五期
心归森岛 长三角城市住假范本
建面约143-265㎡瞰景平层 滨水叠墅

NO.1 项目简介
-------------------------------
【开 发 商】越秀地产
【区域板块】沪太双核中轴
【项目地址】上海市嘉定区新和路1558号 | 苏州太仓市富达路1号(双城门牌号)
【占地面积】约125470㎡(五期总占地)
【建筑面积】约313497.09㎡(五期总建面)
【建筑密度】约30%(五期)
【绿 地 率】约40%(五期)
【外 立 面】真石漆+金属漆
【户型面积】建面约143-265㎡瞰景平层 滨水叠墅
【 物 业 】越秀物业
NO.2 品牌价值
-------------------------------
越秀地产,成立于1983年,1992年在香港上市,是中国第一家拥有香港房地产投资信托基金的内地房企;开创“开发+运营+金融”独特商业模式。截至2023年底,公司总资产超4010亿,总土地储备超2560万平方米,服务业主100万位。
越秀地产母公司——越秀集团,是广州市属龙头国企,拥有以房地产、金融、交通基建、现代农业为核心的“4+X”现代产业体系,控有境内外6家上市公司,截至2023年底,集团统计口径总资产超万亿元,中国跨国公司15强企业。
NO.3 区位价值
-------------------------------
【南门即上海】
越秀·向东岛位于上海嘉定区与太仓市交界处,南门为上海嘉定区、北门为太仓娄江新城,拥有上海新和路1558号和太仓富达路1号双城门牌号,生活半径归于上海。
(示意图)
NO.4 社区价值
-------------------------------
【滨水宜居岛 从度假到住假】
从世界一线城市的国际化生活方式中获取灵感,以全新的设计理念,打造越秀·向东岛,南侧为老浏河、北侧为新浏河,四面环水,整岛综合容积率约0.85,约1525亩森海岛居,长三角城市住假范本。
(实景图)
【园林臻境 滨水八景】
以“岛居自然”的设计概念,打造约13.5万㎡滨河景观公园、约5000㎡岛心湖、约1KM滨河绿化景观带、约2.2KM樱花跑道及四季组团景观等。
凭借四面环水的优势,围绕新老浏河滨水带,形成森屿步道、春生草坪、岛上冒险家、清风草坪、林荫河畔、滨江花径、森溪谷、云谷花园、派对草坪等十余个四季景观组团。
(实景图)
【全维社区配套】
越秀·向东岛,约6000㎡定制生活馆,包含高定健身会所、浮光恒温泳池、太仓图书馆分馆、森岛咖啡吧、亲子童趣乐园 ,岛内配套酒店(规划中)、风情商业街(规划中)、邻里中心(规划中)、学校(规划中)等多元生活场景,恢弘承载城市美好人居理想。
【丰富社群活动】
趣岛上,乐享生活。生活最好的样子不是一个人精致,而是一家人的精彩,岛上享有一站式配套社群活动,让业主轻松乐享100种生活。
NO.5 配套价值
-------------------------------
【坐拥沪太双核中轴繁华】
越秀·向东岛,地处“嘉定北”发展腹地,紧邻连接太仓融沪桥头堡“娄江新城”,坐享上海嘉定与娄江新城双核中轴,一揽双区利好。
(示意图)
【娄江新城——太仓城市的未来】
娄江新城位于太仓市东南部,规划总面积约50平方公里,以“上海下一站,下一站上海”的发展概念,是太仓深度融入虹桥国际开放枢纽建设的主阵地,聚揽一城丰盛配套。
(示意图)
【多维立体交通】
打造“5+5”轨道交通体系,项目全面融入上海嘉定,快速通达嘉定与上海各区。
● 轨道交通∶通沪铁路一期、二期(建设中)、南沿江城际铁路(建设中)、北沿江高铁(建设中)、苏锡常城际铁路(规划中)、嘉闵线北延太仓段(规划中),可以直达上海、杭州以及全国各地。
● 公路交通∶嘉定7路始末站设置在项目南门,可沿城北路,直达嘉定北站,无缝链接上海地铁11号线;巴士有沪太快线从太仓朝阳路站直达嘉定西。
(太仓站TOD示意图)
【毗邻嘉闵线 出行加速度】
越秀·向东岛距嘉闵线太仓首站十八港路站点(规划中)直线距离仅约800米,尽享地铁便捷出行,按照规划,嘉闵线可以串联起上海11号线,13号线,2号线,10号线等10条轻轨、地铁线,实现直正意义上的沪太同城,未来将实现约35分钟直抵虹桥、约1小时畅通上海市中心。
(示意图)
【医疗配套】
直线距离约3km达瑞金医院太仓分院(在建),以三级甲等综合医院标准建设,计划于2025年建成投入使用,为家人健康保驾护航。

(瑞金医院太仓分院效果图)
【商圈价值】
项目约20分钟直达嘉定北商圈(约8km)、约25分钟直达嘉定新城核芯(约14km),日月光中心、罗宾森广场、欧尚广场等触手可及;近享娄江新城约6万㎡邻里中心;更有华润万象汇(已签约)在侧,配套落地加速,未来可期。
【教育配套】
项目周边教育配套丰富,幼儿园/小学到中学一体化公办9年制教育直线距离约2km即达,项目内部规划学校,此外,太仓用地规划方案中,明确在项目北侧约500m范围内及2.5 km处规划2所九年制义务教育中小学、4所幼儿园,护航孩子无忧未来。
1、西交利物浦大学附属实验学校,距离项目直线距离约7公里(含幼儿园到高中全教育链),已投入使用;
2、西北工业大学太仓校区,已于2022年投入使用;
3、2021年太仓市引入均瑶世外国际融合教育项目,作为太仓引进的上海顶级国际教育资源,已于2023年6月竣工;
4、娄江新城已引入娄江新城高中项目也已于2023年5月9日开工建设,计划于2025年建成投用;
5、上海外国语大学附属学校已签约,优教护航。
(教育类信息输出具体参照政府相关网站公布信息为准)
NO.6 产品价值
-------------------------------
【低的姿态】
土地最大限度让与自然,让绿意与住宅无缝连接
● 约40%绿化率
● 约1.74容积率
● 阔绰的楼间距
(效果图)
【宽的格局】
以无处不在的贴心考量,带来最大化的奢居体验
● 全明设计,动静分离,全屋动线合理
● 四叶草式户型设计,隐私性极佳
● 餐客厅分离式设计,功能划分更完整
● 全屋无过道设计,浪费面积小
【大的境界】
雕琢通透宽境,以大尺度彰显居者大家风范
● 全屋超大窗墙比,采光通风好
● 约11m面宽景双阳台,超大采光面
● 三开间朝南,约20m大面宽
● 主卧面宽约3.35米,进深约4.15米
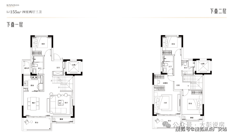
【户型鉴赏】









太仓向东岛花园售楼处电话:4009665004【太仓向东岛花园开发商售楼中心热线】太仓向东岛花园营销中心热线400-966-5004售楼处地址400-9665-004,楼盘项目全面介绍,本电话为开发商提供线上预约售楼电话,楼盘项目全面介绍(包含楼盘简介,均价,房价,现房,期房,别墅,叠墅,大平层,价格,楼盘地址,户型图,交通规划,备案价,备案名,项目配套,样板间,开盘时间,认筹时间,楼盘详情,售楼处电话,最新消息,最新详情,周边配套,一房一价,最新进展等详情咨询)楼盘详情丨价格丨更多优惠丨机不可失丨欢迎致电丨诚邀品鉴!售楼处位置丨特价房丨工抵房丨剩余房源丨户型图丨最新消息丨
免责声明:将文章内容综合来源于网络、只作分享,版权归原作者所有!!如有侵权,请联系我们,我们第一时间处理如有问题欢迎来电咨询,专业一对一热情服务,让您用专业眼光去买房。如果您想了解更多楼盘详情,欢迎提前预约拨打
售楼处电话☎400_966_5004✔✔✔
房产必看!总结买房全攻略
在房产交易市场中,无论是首次置业的新手,还是准备改善住房的购房者,掌握专业的房产知识都至关重要。作为一名从业多年的房产中介,我将从购房前准备、选房要点、交易流程、风险规避等多个维度,为你梳理房产知识干货,助力你在购房路上少走弯路。
一、购房前:明确需求,做好资金规划
(一)确定购房目的
购房者需要先明确自己的购房目的。是刚需自住,为了拥有稳定的住所;还是改善居住,追求更大的空间、更好的居住环境;亦或是投资,期望房产实现保值增值。不同的购房目的,对应着不同的选房侧重点。比如刚需购房者更注重房屋的价格、交通便利性和周边基础生活配套;投资型购房者则更关注房产的区位发展潜力、租金回报率等。
(二)资金准备与预算规划
1.首付款计算:了解当地的首付比例政策,一般首套房首付比例在20%-30%左右,二套房首付比例可能会提高至40%甚至更高。计算出自己能够承担的首付款金额,例如计划购买一套总价200万的房子,若首付比例为30%,则首付款为60万。
2.贷款能力评估:向银行或金融机构咨询贷款政策,评估自己的还款能力。一般来说,银行会要求购房者的月还款额不超过其月收入的50%。可以使用贷款计算器,测算不同贷款金额、贷款年限下的月供金额,结合自身收入情况,确定合理的贷款额度和贷款年限。
3.其他费用预算:除了首付款和贷款,购房还会产生契税、维修基金、物业费、中介费(如果通过中介购房)等费用。契税根据房屋面积和购房套数不同,税率在1%-3%不等;维修基金通常按照房屋总价的一定比例缴纳。提前了解这些费用,做好资金预算,避免出现资金缺口。
二、选房:多维度考量,选出心仪好房
(一)区位选择
1.地段价值:地段是决定房产价值的关键因素之一。核心地段的房产,通常交通便利、配套完善、发展成熟,具有较强的保值增值能力。例如城市的中心商务区、政务区,以及新兴的重点发展区域,都是比较优质的地段选择。
2.交通配套:优先选择靠近地铁、公交枢纽的楼盘,方便日常出行。对于有私家车的购房者,要关注周边道路的规划和交通拥堵情况,以及小区的停车位配比是否充足。
3.生活配套:考察楼盘周边的商业、教育、医疗、休闲等配套设施。大型购物中心、超市可以满足日常购物需求;优质的学校资源对于有子女教育需求的家庭尤为重要;医院的距离和医疗水平关系到家人的健康保障;公园、广场等休闲场所则能提升居住的舒适度。
(二)楼盘与户型分析
1.开发商品牌与口碑:选择知名且信誉良好的开发商,其开发的楼盘在房屋质量、施工进度、物业服务等方面更有保障。可以通过网络搜索、业主论坛、实地考察等方式,了解开发商过往项目的评价和口碑。
2.楼盘规划与环境:关注楼盘的容积率、绿化率、楼间距等指标。容积率低、绿化率高的小区,居住密度小,环境优美;楼间距大则能保证充足的采光和通风。此外,还要了解小区的内部配套设施,如幼儿园、健身设施、社区活动中心等是否完善。
3.户型选择:根据家庭人口数量和居住需求,选择合适的户型。户型方正、南北通透、布局合理的房子更受欢迎。要注意房间的功能分区是否科学,动静分区是否明确,卧室、客厅、厨房等空间的尺寸是否合理,是否有浪费面积等问题。
三、房产交易:规范流程,保障权益
(一)签订购房合同
1.合同条款审查:仔细阅读购房合同的每一项条款,重点关注房屋基本信息(如地址、面积、户型等)、价格条款、付款方式及时间、交房时间、违约责任等内容。对于不理解或有疑问的条款,及时向开发商或中介咨询,必要时可以寻求律师的帮助。
2.补充协议:如果开发商有补充协议,同样要认真审查。补充协议中的条款可能会对双方的权利义务产生重要影响,避免出现不合理的附加条件或加重购房者责任的条款。
(二)贷款办理
1.准备贷款资料:一般需要提供身份证、户口本、结婚证(已婚人士)、收入证明、银行流水、征信报告等资料。确保资料真实、完整、有效,以提高贷款审批的通过率。
2.选择贷款银行:不同银行的贷款利率、贷款政策、审批速度等可能存在差异。可以多咨询几家银行,比较利率优惠、贷款额度、还款方式等,选择最适合自己的银行办理贷款。
3.贷款审批与放款:提交贷款申请后,银行会对购房者的资质进行审核。审核通过后,双方签订贷款合同,银行会按照约定的时间将贷款发放给开发商或卖方。
(三)房屋验收与交付
1.验收准备:交房前,购房者可以准备好相关工具,如卷尺、小锤子等,用于检查房屋的尺寸、墙面地面是否空鼓等问题。同时,了解房屋验收的标准和流程。
2.实地验收:按照合同约定的交房时间,前往楼盘进行房屋验收。重点检查房屋的质量问题,如墙面是否渗水、裂缝,门窗是否密封良好、开关灵活,水电线路是否正常,厨卫防水是否到位等。发现问题及时记录,并要求开发商整改。
3.办理交付手续:验收合格后,购房者需要缴纳相关费用,如物业费、契税等,然后办理房屋交付手续,领取房屋钥匙,完成房屋交接。
四、房产交易风险规避
(一)产权风险
1.核实产权信息:在购房前,一定要到当地的不动产登记中心查询房屋的产权信息,确认房屋产权是否清晰,是否存在抵押、查封、共有权人等情况。避免购买到产权有纠纷的房屋。
2.警惕小产权房:小产权房是指在农村集体土地上建设的房屋,未缴纳土地出让金等费用,其产权证不是由国家房管部门颁发。小产权房存在诸多风险,如无法办理合法产权证书、不能上市交易、面临拆迁可能得不到合理补偿等,建议购房者不要购买。
(二)市场风险
1.关注市场动态:房地产市场受政策、经济、供需关系等多种因素影响,价格会有波动。购房者要关注国家和地方的房地产政策变化,如限购、限贷、限售政策,以及利率调整等,了解市场的走势,合理选择购房时机。
2.理性购房:不要盲目跟风购房,避免在市场过热时高价买入。要根据自己的实际需求和经济实力,做出理性的购房决策。
掌握这些房产知识,能让你在房产交易中更加从容自信。如果你在购房过程中有任何疑问,欢迎随时咨询,我将竭诚为你提供专业的服务和建议。
声明:本文由入驻焦点开放平台的作者撰写,除焦点官方账号外,观点仅代表作者本人,不代表焦点立场。


