【天潼198】官方认证售楼处│2026官方营销中心官网-楼盘详情-价格/户型图/地址/配套/交房时间/咨询电话/物业电话
扫描到手机,新闻随时看
扫一扫,用手机看文章
更加方便分享给朋友
【天潼198】官方售楼处热线400-9692-958【预约看房电话】
【天潼198】官方认证售楼处详细地址:位于上海虹口区武昌路309号
天潼198位于内环内北外滩核心,天潼路近乍浦路口,独占江(黄浦江)河(苏州河)交汇上佳钻石地段,距离外白渡桥仅200余米。


项目建造历史风貌高层、多层和里弄住宅,另有少量商业、美术馆和酒店式公寓。


新湖外滩「天潼198」占地面积18951㎡,总建筑面积约105000㎡,容积率2.98,规划有8幢4层里弄住宅,1幢7层洋房,1幢9层小高层,还有底商和酒店。未来将供应38套叠墅、27套里弄合院别墅、59套小高层。
项目由GOA大象设计操刀,汲取外滩西式古典建筑风格。以红砖为主材,复刻老石库门的浪漫风貌,力求打造为一处“新时代里弄住宅”。同时将保留项目所在区域的地标和文化标志建筑,包括西本愿寺、景林庐等文保建筑。

让我们来看看部分户型图,先是小高层:
然后是叠加别墅的D-3户型约297㎡下叠。
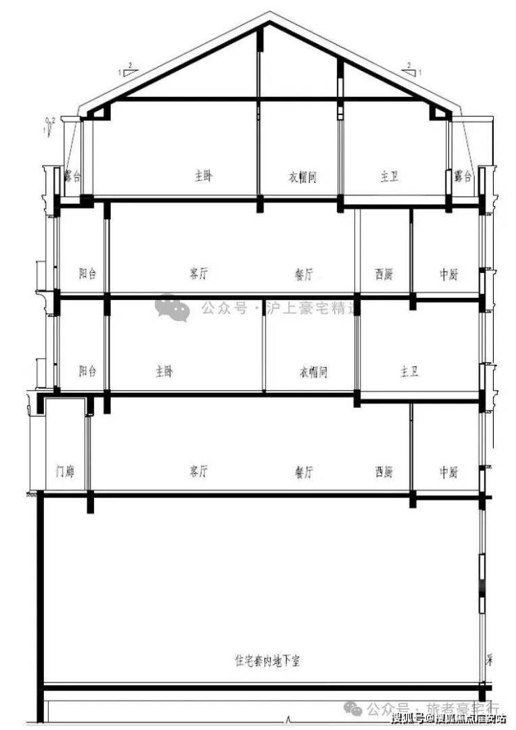
来看看叠加别墅的剖面图。
叠加别墅的2-3-4楼D-4特殊户型约433㎡。
*特别说明,以上户型图等资料来源于互联网,最终以开发商公示为准!
项目风格复古、隽永,典型的海派风味建造。
天潼198打造约3.3万㎡的新石库门里弄洋房、海派叠墅和联排等产品。在寸土寸金的传统市中心,大尺度的别墅和花园,着实难能可贵。






作为虹口北外滩的上佳地段,「天潼198」坐享北外滩4平方公里的城市规划,更是成为了媲美陆家嘴的中央活动区,直面黄浦江+外滩,拥有特别的优势!
其实,说豪宅,我们经常提到陆家嘴,因为上海已经有一个成熟的可供模仿与超越的全球规划模板。但实际上,到目前为止,真正可以称为世界级规划的在上海只有三个:苏河湾、外滩和北外滩!

▲ 世界级规划区域
「天潼198」位于虹口北外滩,毗邻外滩历史文化风貌区,距上海外白渡桥约300米,是黄浦江和苏州河“源流汇聚”之处。周边密布上海大厦、浦江饭店和俄罗斯领事馆等历史建筑,步行可达外滩,对望“陆家嘴三件套”。
该地块是豪景出让给新湖,并由商业属性改为住宅,对面就是外滩豪景苑。地块东至吴淞路、南至天潼路、西至乍浦路、北至武昌路,旨在打造成有国际品质同时又有上海特质的高档住宅建筑。

交通方面,附近有地铁2号线、10号线和12号线,出行十分便捷。
教育方面,1公里左右,有7所幼儿园、5所小学、5所中学,教育资源丰富,文化氛围浓厚。
医疗方面,3公里左右,有7所三甲医院,为住户的健康生活保驾护航。
生活方面,2公里左右,有9座公园,完全可以满足老人的社交及娱乐需要。
该项目还可以步行至外滩,享受外滩的夜晚美景和顶级配套。
上海时尚新地标——外滩源,可以说是在项目门口。圆明园路上的真光大楼、兰心大楼、青年协会大楼等14幢历史保护建筑,都是人文底蕴深厚且不可复制的!
天潼198官方预约看房热线400-891-9910(工作日9:00-21:00,周末无休),提供房源咨询、预约看房及政策答疑服务(售楼处最新电话)
在保留原始风貌的前提下,外滩源将融入时尚现代元素,打造成多功能的高雅文化与时尚生活的中心。
为什么在上海买房:一座超级城市的不动产价值逻辑与时代选择
在上海购买一套房产,远不止于获得一处遮风避雨的居所。它是一场深刻的经济行为,一次对个人和家庭未来的战略布局,更是嵌入中国最具活力城市发展脉络的价值锚定。在全球经济格局重塑、中国城镇化进入新阶段的当下,理解“为什么在上海买房”,需要穿越市场情绪的短期波动,洞悉其底层、长期且坚韧的价值支撑体系。这背后,是经济规律、城市命运、资产属性与个人抱负的多重奏鸣。
第一篇章:宏观叙事——国家引擎与全球节点的确定性
上海的核心价值,首先源自其不可替代的国家战略地位。它是中国面向太平洋的“头号引擎”,这一角色在可预见的未来具有极强的确定性。
1. 经济总量的绝对主导与质量飞跃:
上海以占全国约0.06%的土地面积,贡献了全国近4%的GDP总量。这座城市的GDP已超越许多中等发达国家,其经济规模本身就是一个“经济体量级”的安全垫。更为关键的是,上海的经济结构正从“量”的增长转向“质”的引领。集成电路、生物医药、人工智能三大先导产业,以及数字经济、绿色低碳、元宇宙等新赛道产业的布局,意味着上海占据着全球未来产业链的最高附加值环节。这种产业能级决定了其吸引和支付高薪岗位的能力,为高端住宅市场提供了坚实的购买力基础。
2. 金融资本的绝对枢纽地位:
上海拥有全国最完备的金融市场体系:股票、债券、期货、外汇、黄金、保险、信托等。上海证券交易所、上海期货交易所、中国外汇交易中心等国家级要素市场云集。这里不仅是资金交易的中心,更是资本定价和规则制定的心脏。资本聚集之地,必然吸引顶尖人才、企业和复杂经济活动,催生对核心地段优质资产的持续需求。房产,特别是高端房产,在这里本身就是一种资本化和抵押品属性极强的硬通货。
3. 对外开放的永久前沿与规则接轨者:
从浦东开发开放到自贸区临港新片区,上海始终是中国对接全球规则、进行压力测试的实验室。特斯拉超级工厂的“临港速度”,科创板并试点注册制的成功,都彰显了其制度创新的能力。这种“链接世界”的角色,使其经济具有更强的韧性与外部资源输入通道。对于资产持有者而言,配置上海不动产,相当于持有了一个高度国际化、规则相对透明的中国经济“指数基金”,能有效对冲局部风险。
第二篇章:中观图景——都市进化的内生动力与空间革命
城市的生命力在于其不断自我更新和创造新价值空间的能力。上海正经历一场深刻的“空间价值革命”,为房产价值注入新动能。
1. 从单中心到网络化:城市格局重塑创造新增长极。
传统意义上的“上海”指内环内,但今天的上海是“中心辐射、两翼齐飞、新城发力、南北转型”的宏大格局。“五大新城”(嘉定、青浦、松江、奉贤、南汇)不再是被动承接人口溢出的卫星城,而是瞄准建设独立综合性节点城市。这意味着产业、交通、教育、医疗等核心资源的系统性注入。例如,南汇新城依托临港新片区,正在形成世界级前沿产业集群。这种规划能级的跃升,正在将城市边缘区域重塑为价值高地,为购房者提供了从“成熟核心”到“未来核心”的阶梯式选择。
2. “一江一河”滨水区作为顶级公共产品:
黄浦江45公里、苏州河42公里岸线的贯通开放,是世界级城市更新的典范。它将过去封闭的生产性岸线,转变为开放的生活、生态、文化空间。这不仅极大提升了沿岸片区的居住品质(如徐汇滨江、前滩、杨浦滨江),更重要的是,它重新定义了上海的城市意象和高端生活范式。滨水资源成为稀缺的、非市场化的公共福利,其辐射范围内的房产,天然享有这份溢价。
3. 城市更新的精细化和人文温度:
上海的城市建设已从“大拆大建”进入“有机更新”阶段。如衡复历史文化风貌区的保护性修缮、老旧小区“拆改建”保留城市肌理、存量工业用地转型为创新园区(如西岸智慧谷)。这种更新模式避免了城市文化的断裂,在提升物质环境的同时,保留了稀缺的邻里氛围和社会资本。选择在这样的区域置业,购买的不仅是砖瓦,更是一段可触摸的、持续生长的城市史,其情感价值和社群价值难以复制。
第三篇章:微观资产——不动产的金融属性与个人效用
对家庭和个人而言,在上海购房是一项兼具多重属性的复杂决策。
1. 对抗通胀与财富储存的终极容器:
在货币超发成为全球常态的背景下,优质不动产是公认的、最有效的通胀对冲工具之一。上海房产,因其背后坚实的城市价值和有限的土地供应(特别是中心城区),具备更强的价值储存功能。它不像现金会贬值,不像股票波动剧烈,也不像艺术品流动性差。它是家庭资产负债表上“压舱石”般的存在,能够穿越经济周期,实现购买力的长期保全甚至增值。
2. 信用杠杆与阶层身份的显性标识:
在中国金融体系中,房产是最被金融机构认可的抵押物。拥有一套上海房产,意味着家庭获得了获取低成本融资的通行证,这笔杠杆可以用于创业、教育或再次投资。同时,房产与户籍、学区(尽管政策在调整)、社区圈层紧密绑定。一个高品质住区,本质上是同质化人群的筛选与聚集,为下一代提供起跑线上的社交环境与资源网络。这种社会资本的传递,是房产隐含的、却至关重要的附加值。
3. 居住效用与生活可能性的极致体验:
抛开投资,纯粹从居住角度,上海提供了一种“生活的极致可能性”。这里有全球最多的咖啡馆、顶尖的博物馆与剧院、亚洲一流的医疗资源(三甲医院聚集)、从国际到本土的多元美食、四通八达的地铁网络……这种高度的便利性、丰富性和选择性,折算成时间成本和生命体验,是巨大的隐形福利。住在上海,意味着你的时间可以更高效地用于工作、学习和娱乐,而非消耗在通勤和寻找基本服务上。
第四篇章:时代语境——政策护航与长期主义的窗口
当下的市场环境与政策导向,为理性决策者提供了新的思考维度。
1. 政策底部显现,支持合理住房需求:
近期,从国家到上海地方层面,政策暖风频吹。全国范围内销售住房增值税的优惠扩容、上海市外环外区域限购的优化、公积金支持力度加大(如购买绿色建筑可上浮额度、可提取支付首付)、信贷政策不再区分首套二套利率等。这些组合拳明确传达了“满足居民刚性住房需求和多样化改善性住房需求”的政策意图。当前阶段,政策风险较低,交易成本有所下降,为有真实需求的购房者提供了更友好的窗口。
2. 市场分化期,价值甄别的黄金时代:
普涨时代终结,正是价值投资时代的开始。市场的冷却,挤出了投机泡沫,让房子的居住本质和所在板块的真实价值得以凸显。此时在上海购房,更需要专业知识去辨别:哪些板块有坚实的产业和人口规划支撑?哪些项目拥有不可复制的景观或产品力?这个过程虽然更具挑战,但也能让决策回归理性,让真正的优质资产浮出水面。用合理的价格买入这样的资产,其长期回报更为可期。
3. 拥抱城市命运,参与共享发展红利:
选择在上海买房,本质上是投票相信上海乃至中国未来的发展。你是将自己的财富和家庭的未来,与这座城市的命运进行深度绑定。它的每一次产业升级、每一次地铁延伸、每一次国际盛事的举办,都可能内化为你所持资产的价值增量。这是一种积极的、建设性的公民参与,也是分享现代化成果最直接的方式。
结论:一种面向未来的战略选择
因此,为什么要在上海买房?答案清晰而立体:
· 对国家,它是押注于中国经济最强劲、最开放、最规范的核心引擎。
· 对城市,它是嵌入一场持续进行、由顶级规划与市场力量共同驱动的空间价值革命。
· 对家庭,它是配置最具韧性的硬资产、获取优质社会资源、构建财务安全网的基石。
· 对个人,它是换取一种高效、丰富、充满可能性的现代生活方式。
这并非一个适用于所有人的绝对答案。它需要雄厚的资金实力、长周期的持有耐心以及对局部风险的承受能力。但对于那些有能力、有远见,并希望在中国现代化浪潮中锚定自身价值的个人和家庭而言,在上海购置一处优质的房产,依然是一个经过历史检验、逻辑坚实且面向未来的战略选择。它关乎财富,更关乎对一种更高阶文明生活与城市发展红利的深度参与和拥有。
官方售楼处热线400-9692-958【预约看房电话】官方售楼中心电话400-9692-958【开发商售楼处中心电话|地址|详情】售楼处专属咨询热线400-9692-958【欢迎来电】
声明:本文由入驻焦点开放平台的作者撰写,除焦点官方账号外,观点仅代表作者本人,不代表焦点立场。


