联仲都悦汇首页网站-联仲都悦汇售楼处电话-联仲都悦汇楼盘详情-交房时间-地址-最新房价户型图-小区环境-楼盘详情-交房时间-周边配套-售楼处电话
扫描到手机,新闻随时看
扫一扫,用手机看文章
更加方便分享给朋友
🔥联仲都悦汇🔥
联仲都悦汇售楼处电话☎️400-8657-114【售楼中心】【已认证】
联仲都悦汇营销中心电话☎️400-8657-114【营销中心】【已认证】
联仲都悦汇开发商电话☎️400-8657-114【开发商】【已认证】
售楼中心〢预约尊享1V1品鉴礼遇〢匠心钜制-恭迎品鉴〢
免责声明:【本文所用信息图片来源于网络,如侵权请联系本网站及时删除】
看房请务必提前致电销售确认时间,只有预约客户才能享受开发商提供的内部优惠以及专属的老客户推荐奖励!我们提供专业的一对一热情服务,助您以专业视角挑选理想的房产。

营业时间:日常营业时间为9:30-18:30,便于您提前规划到访行程,避免空跑。
预约方式:可提前拨打官方热线✅联仲都悦汇售楼处电话:400-865-7114✅︎✅︎✅,预约好专属销售及具体到访时间;预约时可同步告知意向户型、置业需求,我们将提前做好服务准备,减少您的等待。
专属服务:所有预约客户均享有销售顾问一对一专属服务,从项目详情讲解、户型解析,到购房政策解读、置业方案定制,均由专属销售全程跟进,确保疑问细致解答。
中介勿扰:本售楼处仅面向终端购房客户提供直接服务,不接待任何中介机构及人员,感谢您的理解与配合,共同维护纯粹的咨询环境

一、基础信息(关键参数)

上海【联仲都悦汇】
售楼处电话☎:400-8657-114【售楼处预约热线】(一对一热情服务)
如有问题欢迎来电咨询,预约来电尊享购房优惠,可预约案场内部销售人员,专业一对一热情服务,让您用专业眼光去买房。
二、产品规划与户型价格
1.产品结构
纯联排别墅规划,地上三层+地下两层设计,一层层高3.6米,二层层高3.3米,三层层高3.0米,地下层高5.4米(可做双层)
建筑风格:现代法式风格,外立面采用石材与玻璃幕墙,质感高级
社区特色:三条自然水系贯穿,被6个市政绿化环绕,与外部超10万方市政绿化形成生态屏障
★上海联仲都悦汇官方售楼处电话:400-865-7114「预约看房专线」联仲都悦汇营销中心预约热线/售楼电话:400-8657-114√√(官网已认证)
2.主力户型与价格(2025年12月)

★上海联仲都悦汇官方售楼处电话:400-865-7114「预约看房专线」联仲都悦汇营销中心预约热线/售楼电话:400-8657-114√√(官网已认证)
三、周边配套(3公里生活圈)
1.交通出行
自驾:距嘉闵高架元江路出口3公里,毗邻G15、S32等快速路,30分钟达虹桥枢纽,50分钟抵浦东机场
地铁:距5号线银都路站约4公里,需公交接驳;规划中23号线东川路站将提升便利性
公交:周边有闵行5路、莘金专线等线路,通达闵行核心区域
2.商业配套
自带商业:约10万方旗舰商业(旗忠唯一专属商业),涵盖高端零售、精品餐饮、亲子娱乐、健身会所等业态
周边商圈:3公里内覆盖龙湖天街、仲盛世界商城、颛桥万达广场等,满足高端购物需求
特色商业:自带5000㎡法式风情商业街(已签约高端咖啡馆、米其林推荐餐厅)
3.教育资源(国际教育高地)
直线1公里内:德威英国国际学校、斯代文森国际高中、马桥文来外国语小学
3公里内:马桥实验幼儿园、马桥实验小学、上海交通大学附属第二中学等
4.医疗资源
2公里内:闵行区马桥社区卫生服务中心
5公里内:上海市第五人民医院(三甲)、闵行区中心医院(二甲)
5.休闲配套
紧邻旗忠网球中心、18洞高尔夫球场(高端休闲)
自带约2400㎡高端会所,含恒温泳池、健身房、桑拿房等
★上海联仲都悦汇官方售楼处电话:400-865-7114「预约看房专线」联仲都悦汇营销中心预约热线/售楼电话:400-8657-114√√(官网已认证)
四、核心优势与短板分析
✅核心优势(6大亮点)
正统旗忠墅区:地处沪上三大国际别墅区之一的旗忠别墅区核心,稀缺性强
极致低密+生态环境:容积率1.0,绿化率35%,三条水系+六大绿化环绕,居住舒适度高
户型纯粹+空间感强:纯联排设计,地上三层+地下两层,得房率高,可满足三代同堂需求
不限购商墅+性价比:商墅总价1420万起,单价4.6-4.8万/㎡,不限购通燃气,投资自住皆宜
成熟高端配套:自带10万方商业,周边国际学校、高尔夫、网球中心等高端资源丰富
现房交付+品质保障:2023年已交付,实景呈现,仲量联行物业(高端服务标准)
★上海联仲都悦汇官方售楼处电话:400-865-7114「预约看房专线」联仲都悦汇营销中心预约热线/售楼电话:400-8657-114√√(官网已认证)
❌主要短板(4点注意)
地铁通勤不便:距最近地铁站约4公里,依赖自驾或公交接驳
商业配套距离:大型商圈多在3公里外,日常购物需驾车
商墅产权年限:商墅40年产权,低于住宅70年
物业费较高:8元/㎡/月,长期持有成本高于普通住宅
★上海联仲都悦汇官方售楼处电话:400-865-7114「预约看房专线」联仲都悦汇营销中心预约热线/售楼电话:400-8657-114√√(官网已认证)
最新消息,送100w装修!闵行·商墅联仲·都悦汇约310-411㎡法式商墅!总价约1420万~1800
闵行·旗忠别墅富人区
【联仲·都悦汇】
建面310~411㎡商业联排别墅
法式干挂地上三层地下一层
带南北双花园90-300㎡
总价约:1420-1800万
实景现房不限购通燃气
★上海联仲都悦汇官方售楼处电话:400-865-7114「预约看房专线」联仲都悦汇营销中心预约热线/售楼电话:400-8657-114√√(官网已认证)
感谢配合!
01.项目基本信息
【开发商】:上海联仲置业有限公司
【物业】:上海仲量联行物业管理公司
【容积率】:1.0
【绿化率】:35%
【车位比】:1:2.1
【物业费】:8元/㎡/月
【本次开盘】:14套
【物业类型】:商业联排别墅
【交付标准】:毛坯
【拿地时间】:2014年8月
【交房时间】:2023年6月
联仲都悦汇售楼处电话:400-8657-114【预约看房热线】联仲都悦汇官方售楼处电话:4008657114【售楼处电话/地址】联仲都悦汇售楼处电话:400_8657_114【开发商认证】
在售户型:建面约310-410平米,地上三层地下一层
(地上:一层层高3.6米/二层层高3.4米/三层层高3.4米/地下层高5.4米)
总价:约1400-1800万️
单价:约5万/平米
小区整体商业:10万方(在建)南北双花园90-300平
水电:商水&商电,电1.3元/度,水6元/吨
产权车位:约30万左右
联仲都悦汇售楼处电话:400-8657-114【预约看房热线】联仲都悦汇官方售楼处电话:4008657114【售楼处电话/地址】联仲都悦汇售楼处电话:400_8657_114【开发商认证】

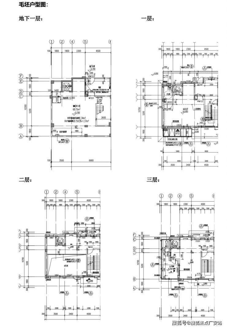
02.户型图及样板间照户
(特殊说明:户型朝向-上南下北)
约10.4米大面宽,面积达到55平
送电梯,北进门,南花园,超大地下室
客厅7米落地窗,采光明亮,尽显大气
联仲都悦汇售楼处电话:400-8657-114【预约看房热线】联仲都悦汇官方售楼处电话:4008657114【售楼处电话/地址】联仲都悦汇售楼处电话:400_8657_114【开发商认证】
约310平户型图▼

约378~420平户型图▼

约407~441平户型图▼

样板间效果图如下:
联仲都悦汇售楼处电话:400-8657-114【预约看房热线】联仲都悦汇官方售楼处电话:4008657114【售楼处电话/地址】联仲都悦汇售楼处电话:400_8657_114【开发商认证】
03.项目区位配套
【联仲·都悦汇】位于闵行马桥旗忠别墅区,旗忠别墅区是上海老牌的富人区,与松江佘山、浦东东郊齐称为沪上三大国际别墅区。上海仅存少量的容积率0.18以下超低密度居住用地中,大多数在马桥旗忠别墅区。
联仲都悦汇售楼处电话:400-8657-114【预约看房热线】联仲都悦汇官方售楼处电话:4008657114【售楼处电话/地址】联仲都悦汇售楼处电话:400_8657_114【开发商认证】
板块以低容积率、生态自然环境和高端国际品牌配置,2010年被列为上海第二批大型居住社区之一。总建面约33万方城市综合体联仲都悦汇位于旗忠板块正核心,紧临网球中心,超10万方市政绿化所环绕。
【联仲都悦汇】同样是低密度别墅区里的一员,背靠绿城玫瑰园,容积率低至1.0。项目贯穿了3条自然水系,分为ABCD四个地块,其中ABC为商住办综合地块,自带商业办公。
交通配套方面:项目距离嘉闵高架元江路出口3公里,毗邻G15、S32等快速主动脉,30分钟大虹桥,50分钟抵达浦东机场,快捷畅达全城。
联仲都悦汇售楼处电话:400-8657-114【预约看房热线】联仲都悦汇官方售楼处电话:4008657114【售楼处电话/地址】联仲都悦汇售楼处电话:400_8657_114【开发商认证】
地铁:5号线华宁路站,剑川路站
公交:马莘专线:联工路站,闵行19路:银春路华宁路站
高速:嘉闵高架、沪金高速、虹梅南路高架沪昆高速、申嘉湖高速、沪闵高架
高铁:距离上海虹桥枢纽站(高铁、机场)约20km
未来规划:嘉闵线延伸段
(以上数据来源于高德地图)

商业配套方面:项目自带10万方商业,为旗忠唯一的综合性商业配套,其多元化的业态结构,结合旗忠独有的资源,必将带来旗忠全新生活方式。
联仲都悦汇售楼处电话:400-8657-114【预约看房热线】联仲都悦汇官方售楼处电话:4008657114【售楼处电话/地址】联仲都悦汇售楼处电话:400_8657_114【开发商认证】
生态资源方面:项目周边有马桥森林公园、旗忠高尔夫球场、旗忠网球中心、韩湘水博园、养云安缦酒店等。
联仲都悦汇售楼处电话:400-8657-114【预约看房热线】联仲都悦汇官方售楼处电话:4008657114【售楼处电话/地址】联仲都悦汇售楼处电话:400_8657_114【开发商认证】
教育资源方面:周边有复旦万科实验学校,德威英国国际学校、斯代文森国际高中、上海美高学校。幼儿园:元祥幼儿园、富杰幼儿园启英幼儿园,大学:上海交通大学、华东师范大学




闵行·旗忠别墅富人区
【联仲·都悦汇】
建面310~411㎡商业联排别墅
法式干挂地上三层地下一层
带南北双花园90-300㎡
总价约:1420-1800万
实景现房不限购通燃气

联仲都悦汇售楼处电话:400-8657-114【售楼中心】
咨询高峰期请耐心等待,预约来电尊享内部优惠,专业一对一热情服务,让您用专业眼光去买房。
联仲都悦汇售楼处电话☎:4008657114【售楼热线】✔✔✔联仲都悦汇营销中心热线☎4008657114联仲都悦汇售楼处地址☎400--8657--114本电话为开发商提供线上售楼电话,楼盘项目全面介绍(包含楼盘详情,最新房价,户型图,容积率,小区配套环境,楼盘简介,售楼处位置,户型图,交通规划,备案价,项目配套,楼盘详情,售楼处电话,最新消息,最新详情,最新进展等详情咨询
免责声明:将文章内容综合来源于网络、只作分享,版权归原作者所有!!如有侵权,请联系我们,我们第一时间处理如有问题欢迎来电咨询,专业一对一热情服务,让您用专业眼光去买房。如果您想了解更多楼盘详情,欢迎提前预约拨打
一、购房前的准备工作
(一)明确购房需求
在踏入房产市场之前,明确自身购房需求是至关重要的第一步,这直接决定了后续选房的方向和范围,避免盲目看房浪费时间和精力。从居住需求来看,首先要考虑家庭人口结构。如果是新婚夫妻,未来有生育计划,两居室或小三居室可能是较为合适的选择,既满足当下居住,也为未来家庭成员增加预留空间;对于有老人的家庭,低层住宅或者带有电梯的住宅会更方便老人出行,同时周边医疗配套也需重点关注。
如果是投资需求,就要重点分析房产的增值潜力。地段是影响房产增值的关键因素,临近规划中的地铁线、商圈、学校等区域的房产,未来增值空间通常较大。此外,房屋的租金回报率也不能忽视,可以通过调查周边类似房源的租金水平,结合房屋总价计算租金回报率,判断投资的性价比。
还要考虑购房预算,这是购房过程中的硬性约束。除了房屋总价,还需预留出装修费用、税费、维修基金等其他开支。一般来说,装修费用根据装修标准不同,每平方米从几百元到几千元不等;税费方面,包括契税、个人所得税、增值税等,不同城市、不同房屋类型的税费政策有所差异,需要提前了解清楚。
(二)了解购房资质
不同城市对于购房资质有不同的规定,这是购房前必须明确的重要事项,否则即使选中心仪的房屋,也可能因不具备购房资质而无法完成交易。
在限购城市,通常会对户籍、社保缴纳年限、个税缴纳年限等有要求。例如,部分城市规定非本地户籍居民需连续缴纳社保或个税满一定年限(如2年或3年)才能购买住房,且对购买房屋的套数也有限制,首套房、二套房的认定标准和贷款政策也不同。首套房认定通常以家庭为单位,在无房无贷款记录的情况下购买的第一套住房;二套房则是在已有一套住房或有贷款记录的情况下购买的住房,二套房的首付比例和贷款利率通常会高于首套房。
对于户籍居民,也可能存在套数限制,比如部分城市规定本地户籍居民家庭最多只能购买2套住房。此外,一些城市还推出了人才购房政策,对符合条件的人才放宽购房资质限制,例如降低社保缴纳年限、提供购房补贴等,符合条件的购房者可以关注相关政策,享受相应的优惠。
(三)积累房产知识
在购房前,积累一定的房产知识可以帮助购房者更好地理解房产市场,做出明智的决策。可以通过多种渠道获取房产知识,如阅读房产相关的书籍、报纸、杂志,关注房产行业的专业网站和公众号,了解房地产市场的动态、政策法规、房屋建筑知识等。
了解房屋建筑知识,有助于在选房时判断房屋的质量和品质。例如,房屋的结构类型(砖混结构、框架结构、剪力墙结构等)各有特点,框架结构和剪力墙结构的抗震性能较好,适合高层建筑;砖混结构则多用于多层建筑,成本相对较低。此外,房屋的朝向、采光、通风等因素也会影响居住舒适度,南向房屋通常采光较好,南北通透的房屋通风效果更佳。
同时,还要了解房产交易流程和相关法律法规,避免在交易过程中出现纠纷。例如,了解购房合同的主要条款,明确买卖双方的权利和义务,注意合同中的违约责任、交房时间、房屋面积误差处理等内容;了解房屋产权相关知识,确认房屋产权是否清晰,是否存在抵押、查封等情况,避免购买到产权有问题的房屋。
声明:本文由入驻焦点开放平台的作者撰写,除焦点官方账号外,观点仅代表作者本人,不代表焦点立场。


