又见江南院 (售楼处) 首页 - 又见江南院销售中心 - 环境 - 户型 - 价格 - 又见江南院地址 - 楼盘详情 - 配套 - 电话 - 交房时间 - 配套 - 电话 - 交房时间

搜狐焦点广安站 2025-10-02 16:19:13
用手机看
扫描到手机,新闻随时看

扫一扫,用手机看文章
更加方便分享给朋友

又见江南院苏州售楼处电话400-811-8224,位于太湖湾,低容积率、高绿化,融合湖景与城市便利,是苏州高端改善首选。

吴中区又见江南院售楼处电话:400-811-8224

又见江南院营销中心热线:400-8118-224(预约看房热线)

项目地址:苏州孙武路与香山路交汇处

社区规划:25幢联排、3幢10F洋房

容积率:约1.01

绿化率:≥30%

规划户数:236户

车位数:403

产品面积:约133-158㎡院墅臻品、约123㎡科技精装洋房

城市革命,离尘不离城

太湖湾价值潜力+狮山半小时生活圈

在改善人群的居住理想清单里,“有天有地” 的墅居生活始终占据着无可替代的顶端位置,这样的生活形态,也早已成为高品质居住的代名词。

聚焦到苏州市场,像又见江南院这般,容积率低至1.01的城市江南院墅,目前在/待售的楼盘中,已经寥寥无几,其稀缺价值愈发凸显。

难能可贵的是,又见江南院的稀缺价值再度叠加,它所在的太湖湾这片 “近湖临城” 的黄金地带,左手揽太湖湾的碧波生态,右手接狮山的成熟烟火,正在成为苏州高端改善市场中 “离湖不远,距城更近” 的难得之选。

出则繁华,狮山半小时生活圈,近享千万级配套!

从项目出发,通过子胥快速路,转至中环西线,可快速抵达狮山核心,融入狮山广场、龙湖狮山天街等顶流商圈,享受狮山的繁华生活,板块价值也将迎来新的质变!

或者绿色出行也同样便利,乘坐轨交5号线,轻松抵达狮山、木渎等核心,实现半小时内畅达狮山CBD的高效通勤,工作和生活切换自如。

又见江南院

当然,项目所在的太湖湾板块势能同样不能小觑,在“文旅+科技”双轮驱动下,板块价值持续攀升。

随着太湖湾数字产业园/总部经济园/科创中心的全面落成!这里集聚人工智能、低空经济等前沿产业高地,吸引众多高科技人才入驻,形成 “产业、城市、人才” 深度融合的生动图景,为区域未来注入源源不断的动能。

太湖文创中心、太湖足球运动中心、太湖国家旅游度假区服务中心等丰富的行政资源为区域稳定发展保驾护航。

又见江南院

售楼处电话:

家门口的20万方太湖中心MALL、蒯祥里,更是将日常生活所需一网打尽。

近则环山抱水,私享稀缺山水资源!

在执掌城市繁华的同时,它还拥有其他城市院居享受不到的稀缺山水资源

又见江南院北靠穹隆山,南临太湖,更有渔洋山、苏州太湖国家湿地公园、香雪海等景区环绕...沿着湖岸线漫步,沉浸式体验与自然的亲密接触,让身心在山水间得到彻底放松。

又见江南院

售楼处电话:

美学革命,江南院境现代表达

承袭2500年香山帮非遗技法精华

作为嘉盛“江南系”的扛鼎之作,项目自规划之初便结合在地文化,锚定“太湖高端改善人居标杆”的核心定位。

它不仅是物理空间的营造,更是对2500年香山帮非遗文化意境的传承与革新,致力于成为承载江南文脉的城市文化地标。

建筑语言!中式现代简约,尽显国风雅致!

立面上采用中式现代简约风格,大面积玻璃幕墙搭配古铜镶边,将传统中式元素与现代建筑理念完美融合,形成独特的视觉效果。

又见江南院

售楼处电话:

又见江南院

建筑由南至北利用层数变化形成高低错落的天际线,与远处太湖的起伏山峦、周边城市的轮廓自然呼应。

又见江南院

更令人心动的是,景墙端头的主题纹样暗藏玄机,回纹、万字纹、冰裂纹、云纹等经典符号被重新解构设计,在现代语境中焕新古韵;木坐凳的两端更缀以祥瑞图案,寓意吉祥如意,让江南匠人的千年技艺成为触手可得的日常场景。

又见江南院

售楼处电话:

移步异景!从造园到造境!让归家成为一场山水漫游!

如果说建筑是居住的骨架,那园林便是让其鲜活的血脉。又见江南院的园林,没有走 "堆景" 的套路,而是以 "小中见大" 的东方智慧,把太湖的山水、苏州园林的意境搬进了社区。

又见江南院

这里藏着层层递进的东方礼序 ——“三境归家・六重画境” 的归家动线暗藏巧思:

一进府门,威仪尽显,开启归家的仪式感;二入园境,诗韵流淌,让身心在绿意中慢慢舒展;三入院门,静谧相拥,隔绝喧嚣回归本真,每一进都藏着渐入佳境的惊喜。

又见江南院

另外,社区园林萃取沧浪亭、留园、耦园、拙政园、可园等5园林韵,以一轴·两园·四坊格局,精植四季花木,营构四重花园秘境,再现移步换景的苏式诗境。

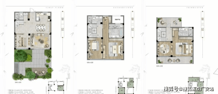
又见江南院在这1.01低容积率的土地上,带来了市场上久违的联排别墅,都是地上三层舒展格局,地下百变天地的结构,再加上“有天有地有院”的硬核配置,每一套都相当出色。

而且面积段控制合理,既保证居住舒适度,又能把总价门槛下沉,城市精英轻松实现心中的别墅梦。

小面积+真院墅!让别墅梦不再“遥不可及”!

在产品打造上,又见江南院以精准的改善需求洞察,打造了建面约133/158㎡两款稀缺臻品院墅产品。用核心区的首付,就能撬动一套装下三代人生活的真联排,性价比本身就极具吸引力。

又见江南院

高赠送,买一送一,使用率超200%!

除了独门独院、分层居住、布局灵活等联排的共性外,又见江南院的过人之处,还在于其极具优势的空间设计。

涵盖套内改造拓展面积、阳台、三层露台、楼顶屋面露台、地下室等多重改造空间,为业主提供了广阔的改造潜力,使用率超200%,真正实现了空间的极致利用。

→首层约3.4米挑高,超国标空间尺度。

根据最新的“好房子”国家标准,住宅层高不低于3米,而又见江南院的联排,首层达到3.4米,较国家标准高出40厘米。足以体现项目的诚意和产品力。

可改6.4米挑高,既可以打造出气派的客厅,挑高的天花板搭配华丽的吊灯,彰显主人的不凡品味;也可以根据需求搭建二层空间,增加房间数量,满足家庭人口增加的居住需求。

→有天有地,解锁生活的N种可能。

户户赠送私家院落,这里可以是亲手培植一个秘密花园,把家变成天然氧吧;布置上沙发和茶几,约上三五好友围炉茶话;也可独坐在摇椅上捧书阅读,偷得浮生半日闲……

又见江南院

又见江南院

南北双露台+楼顶屋面露台,白天是孩子的童话城堡,夜晚化身观星露营基地,烧烤架上的烟火气与漫天星河撞个满怀。

→百变创享地下空间,纳藏家庭生活的百般志趣

地下室拥有约4.95米的优越层高,可随心打造成双层灵动空间,为生活拓展更多可能。

私人酒窖、茶室、家庭影院、健身房......无论是独酌静思,还是喧阔热爱,这里都能容纳你百般志趣。

大开间大尺度,定制化设计满足个体差异!

除了高赠送带来的尺度上的突破,项目还将“家庭平权”理念发挥到了极致,为家庭成员的未来成长预留空间。

建面约133㎡,一层一惊喜

又见江南院

约7.9米南向开间,外接私家花园,有天有地,独门独院,这里既是一家人互动交流的温馨空间,也是宴请宾客、家庭聚会的自在场域。这种安全性和私密感,是其他业态产品所达不到的。

又见江南院

一层,可打造成家庭私享厅,一家人在这里吃饭、互动交流,十分温馨。也可以把南向客厅打造成老人房间,无论是三代同堂还是一家三口、二孩家庭,家人之间互不打扰,相当私密。

又见江南院

二层,可实现多样化布局。可改约6.4米挑高+南向阳台,根据家庭需要自由定制,可以是2房布局,也可以是家庭第二客厅,工作室、收藏间,灵活性较强。

又见江南院

三层,整层套房设计。该层赠送约23㎡的南北双向大露台,这里作为建筑的“空中延伸空间”,兼具视野开阔、采光充足的优势,无论是打造成亲近自然的露台卧室,还是多功能的生活场域,都能极大提升居住体验。

建面约158㎡,一层一世界

一层一世界的绝对私密感和尊崇感,已经让这套住宅享有更高的地位。

一层,室内南向面宽达到了约8.7米,大开大阖的格局霸气十足。附带奢阔院落,形成“屋在院中,院绕屋生“的独特格局。

270°包围式花园,可以根据家庭成员品味随心布置,孩子的乐高园、长辈的农乐园,父母的茶室、花室、养鱼池等,这样的生活形态,在快节奏的城市中,简直就是一种超配的享受。

回到室内,既可以是一整层的餐客厅,作为宴请宾客、家庭活动的阔绰场域,也可以做成独立卧室+餐客厅,给老人或者访客居住。

二层,空间张弛,自在从容,约6.4米客厅挑空+阳台,可实现多样化布局,比如自带书房的套房卧室+南向次卧,或者是第二客厅+卧室,或者是3房,可随着家庭成员的变化自行调整。

又见江南院

三层,整层套房设计。27㎡的南北双向空中别院,可以演绎更多的生活可能,一把躺椅,几杯清茶,感受晚霞余晖、感受微风吹拂,诗情画意的生活在此具象化。

此外,每层都标配270°全景风光,让院内外的景致与周边风光尽收眼底,日常起居与自然风景无缝交融。

又见江南院

除了联排,项目上还规划了建面约123㎡的洋房产品,4房2厅2卫的空间布局,精准击中改善家庭对居住品质的进阶需求。

又见江南院

南向四开间搭配约13.6米的总开间,让阳光成为家里的 “常客”。尤其是南向三间卧室的开间均大于3米,保证了每间卧室的采光充足与居住舒适度。

值得关注的是,进门即配备800库设计,让家居杂物得以有序安放,轻松解决家庭收纳难题。

此外,空间利用率与灵活性更是该户型的一大亮点双阳台+双飘窗的配置,大幅提升了空间的实用价值。

南向7.3米双联阳台,可精心打造成莳花弄草的小花园;北向阳台则可拓展为灵活多变的X空间,既能作为书房、琴房满足日常兴趣需求,也能随着二孩出生摇身一变成为儿童房,让空间始终适配家庭不同阶段的成长需求。

房产知识

房地产基础专业知识

1、房地产:指房产和地产的总称(又称不动产)。

2、房地产的三种存在形态:

单纯的土地、单纯的房屋、土地房屋的综合体

3、房地产的特征:

a、房地产位置的固定性(土地不可移,房屋也不可动);

b、房地产地域的差别性(每宗房地产的价值都不同);

c、房地产的高值、耐久性(价格贵、土地永久的);

d、房地产的保值、增值性(货币贬值、房产保值、货币增值、房产增值);

4、房产:是房屋及其权利的总称(占有、使用、收益、处分等权利)。

5、房屋分类:

a、功能用途:居住用房(小区、高品住宅)、工业用房(厂房、仓库)、商业用房(门面、商场)、办公用房(写字楼)、行政用房(军事、学校等单位用房及城市);

b、建筑结构:钢结构、钢筋混凝土结构、砖混结构、砖木结构和其他;

c、所有权归属:公房(直管公房和自管公房等)和私房;

6、地产:是土地及其权利的总称(使用、收益、转让等权利)。

7、土地分类:

a、开发利用:生地和熟地;

b、建筑功能:建筑用地和非建筑用地;

c、用途:居住用地、商业服务用地、工业用地、仓储用地、市政公共设施用地、交通用地、绿化用地、特殊用地等;

8、房地产业:指从事房产开发、经营、管理和服务的行业。包括:

a、土地开发;

b、房屋建设、维修、管理;

c、土地使用权的有偿划拔、转让;

d、房屋所有权的买卖、租赁;

e、房地产抵押贷款;

f、房地产市场;

9、土地使用权:就是土地所有者根据土地分类对土地加以利用的权利(指依法对土地经营、利用和收益的权利)。土地公有制采取了两种形式:即集体所有制和国家所有制。a)农村土地采用了集体所有制,属于农民集体所有;b)城市土地采取国家所有制的形式,属于全民所有;任何个人不能取得土地的所有权。

土地使用获得的方式:

划拔:无偿使用,如学校、医院、军事用地、机场等市政建设工程;

出让:从国家有偿取得使用权,方式:协议(如200-250万/亩)、招标(提出底价,根据使用用途和价格取得)、拍卖(价高者竟得,不违法的前提下,通过正规渠道取得);

10、房地产市场:

a、一级市场:以土地为体(亦称土地市场、土地交易市场);

b、二级市场:开发商获得土地后,投入一定的奖金建设,通过有偿或赠与将产权转买给需求者(新建商品房的买卖市场);

c、三级市场:房屋在消费市场的再次流通,包括:买卖、抵押、转让、租凭(二手房);

房地产市场结构善一览表:

市场称谓

一级市场

二级市场

三级市场

称谓

土地使用权出让市场

土地使用权转让市场、增量商品房市场、住房一级市场等

土地使用权转让市场、存量商品房市场、二手房市场、住房二级市场等

市场主体

政府、开发企业(投资者)

开发企业、业主

业主

市场客体

国有土地使用权

增量商品房

存量商品房、已售旧公房、私房

交易方式

拍卖、招标、协议

出售、出租等

买卖、租赁、交换等

11、土地使用权出让:指国家以土地所有者身份,按指定地块的使用年限、用途和城市规划等条件,将城市土地使用权出让给土地使用者,并向土地使用者收取土地使用权出让金的行为。出让交易双方是国家和用地单位或个人。

12、土地产权:包括土地所有权、地上权、地役权、抵押权、典权、租赁权。

地上权:指以支付租金为代价在他人土地上建筑房屋的权利,它的实质就是土地使用权;

地役权:指利用他人土地供自己使用的权利;

抵押权:指土地使用权获得者在其有效的使用期限内有以土地作抵押获取银行贷款或其他担保的权利;

租赁权:指土地使用权获得者在其有效使用期限内将土地租给他人使用以获取收益,承租人即取得该块土地的租赁权;

13、土地使用年限:指国家将土地使用权出让给土地使用者,双方约定土地使用者可以使用的年限。

1)土地使用权出让年限:

a、居住用地70年;

b、工业用地、教育、科技、文化卫生、体育及综合或其他用地50年;

c、商业、旅游、娱乐用地40年;

PS:使用用途需转换的要补年限地价的差价,国家指定的则遵照执行;

2)土地使用年限到期后如何处理:

a、国家有权无条件的收回该土地;

b、建筑主体经质控部门检验后不属危房;

c、项目的存在不影响城市规划,不影响市容,只要向政府缴纳土地出让金可以继续使用。

PS:b、c条完全存在的情况下,以当时的地价购买使用年限,年限由政府规定,否则无条件收回;

14、商品房:开发商以市场地价取得土地使用权后进行开发建设,并经国土局批准在市场上流通的房地产,它是在获取房产证后,可自行转让、出租、继承、抵押、交换的固定资产。

商品房的物业类型:住宅、写字楼、商场、酒店、市场。

15、商品房的预售制度:五证二书

五证:〈国有土地使用证〉、〈建设用地规划许可证〉、〈建设工程规划许可证〉、

〈建设工程施工许可证〉、〈商品房预售许可证〉

二书:〈质量保证书〉、〈使用说明书〉、两书可以作为商品房买卖合同的补充约定,并且是房地产开发企业在商品房交付使用时向购房人提供的对商品房住宅承担质量责任的法律文件和保证文件。

16、烂尾楼:指未能完成施工中途停建的楼盘。造成楼盘烂尾的原因主要有资金不足、设计、施工存在严重质量问题,非常建设等。

17、楼花:指已经动工建造,但尚未建成的楼宇、房屋。即指图纸上的楼宇,处于建筑施工的最初阶段,离交房时间长,价格优惠,买了后又可转卖,赚差价。

18、炒楼花:买卖尚未建筑好的房屋。(现在政府有规定,商品房5年内不许转让,交5%的营业税,为了控制炒房)

19、期房:指具备预售条件,尚未竣工交付使用的商品房。(价格低、选择空间大、户型齐全、可监督建筑材料、质量)

20、现房:指已经工程质量监督部门验收,并取得质量合格证明文件,可以交付使用的商品房。(即买即入住、价格高、户型过时、选择空间不大)

21、经济适用房:指以微利价出售给广大中低收入家庭的商品房(带有社会保障性质的商品住宅,是有经济性和适用性)。不是人人可以买到,必须符合当地政府所规定的条件,经过排号购买。长沙房口,25岁以上,65㎡以内以经济价购买,65㎡以外以商品房价购买,5年后才能转卖)。

22、二手房:办好产权证,进行再次转让的房屋。其他如:公房、私房、集资房、廉租房、安置房等福利房。

23、诚意金:指商品房在未取得预售证之前,开发商收取客户的可退回的款项(一般可以获得开发商的折扣承诺)。

24、定金:指当事人约定由一方向对方付给的作为债权人担保的一定数额的货币(能担保债权人的作用)不能返还。

25、订金:不能担保债权人的作用,能返还。

26、玄关:登堂入室的第一张门进去的地方,开门区域。

27、公寓:指2层以上,供多户人家居住的建筑。

28、纯办公楼:专为各类公司日常运作提供办公活动的大楼。

29、综合楼:居家、办公、商场、集合一体的大楼。

30、商住住宅:SOHO,居家,办公于一体。

31、别墅:指在郊外或风景区建造的供休养,住宿用的花园住宅,TOWRHOUSE(联体别墅、单排别墅)。

32、SHOPPINGMALL:一站式购物,集购物、娱乐、休闲为一体的这么一个商业区域,起源于美国(也称第六商业业态)。

33、物业管理:指由专业公司或机构,接受业主(或使用人)的委托,对物业实话专业化管理,并向业主(或使用人)提供高效、周到服务的行为。

34、物业管理内容:对房屋及其附属设备管理、维修;对房屋区域内的清洁卫生、安全保卫、公共绿化、公用设施、道路等实施管理;向业主提供其他综合性或特约的服务等。物业管理属社区管理范畴。

35、业主大会:指由物业管理区域内全体业主组成的,对本区域内物业管理具有决定权的组织形式。

36、业主代表大会:由物业管理区域内业主代表组成的对本区域内物业管理具有决定权的组织。

37、业主委员会:由物业管理区域内业主代表组成,代表全体业主对物业实施自治管理的组织,由业主代表大会或业主代表选举产生。

38、一次性付款:指购房户在购买商品房时,在没有享受政策性贷款的情况下,将全部买房款一次性付给售房单位的付款方式。

39、分期付款:购房者签约后,将购房款分成若干比例,按时间段或按施工进度分批交纳房款(针对期房),交房时,款项全部付清。

40、银行按揭:指以购房合同或房屋产权作抵押获得购房贷款的方式。即购房者在购房时,向银行提出担保的质押文件,在银行审核通过后,取得房屋总价的部分贷款,依抵押约定,按期按时间段向银行偿还贷款本息,并提供房地产作为偿还贷款的担保(一般的购房合同和产权证作为抵押,住房:七成二十年;门面:五成十年或六年十年)。

41、公积金:“全称住房公积金”,指城镇住房制度改革中,国家机关、国有企业、城镇集体企业、外商投资企业、城镇私营企业及其他城镇企事业单位及其在职职工按国家规定缴存的,专项用于住房消费的资金(门面不行)。缴存比例:均不得低于职工上一年度月平均工资的5%,有条件的城市,可以适当提高缴存比例;缴存方式:一是由职工个人缴存;二是由职工所在单位缴存;

42、个人住房公积金贷款:指参加了住房公积金制度的职工,在购买、建筑、翻建和大修自住住房时,因资金不足愿以新购或其他住房产权作抵押而向住房公积金管理中心申请的贷款。

43、契税:指房屋所有权发生变更时,就当事人所订契约,按房价的一定比例,向产权承受人征收的一次性税收(普通住宅:2%、非普通住宅:4%)。

44、公共维修基金:指住宅、楼房的公共部位和公共设施设备的维修养护基金(普通住宅:2%;电梯房、门面:3%)。

45、生地:指未经开发,尚未开成建设用地条件的农地或荒地。

46、起价:即“起步价”是指物业所有房源中的最低销售价格(一般指户型、朝向、格局不好的楼房价格,各层的差价几十~几百元)。

47、基价:即“基础价”指经过核算而确定的每平方米商品房的基本价格。是针对房地产定价方法而言的,与起步价没有关系(楼层、朝向不同价格也不同)。

48、均价:即物业的平均销售价格,将本物业各套房子的销售价格相加之后的和除以各单位建筑面积的和数,即可得出每平方米的均价)。

49、成本价:指住房制度改革中,出售公有住房时按照建筑公有住宅的平均成本测定的价格。

包括:A、征地和拆迁补偿费;B、勘察设计和前期工程费;C、建安工程费;D、住宅小区基础设施建设费;E、管理费;F、贷款利息;G、税金;

二、建筑基础知识:

1、三通一平:是指在土地开发时进行的通水、通电、通路、土地平整。

2、七通一平:给水、排水、电力、通讯、燃气、热力、道路通和土地平整。

3、占地面积:红线范围内的面积。

4、建筑面积:指建筑物外墙(柱)勒脚以上各层外围水平投影面积之和,包括阳台、挑廊、地下室、室外楼梯等。

5、销售面积:指商品房按套出售,其销售面积为购房者所购买的套内建筑面积与应分摊面积的共有建筑面积之和。

6、使用面积:指住宅各层面平中,直接供住户生活使用的净面积之和(在住房买卖中,一般不采用使用面积来计算价格)。

7、公摊面积标准:指商品房销售中应分摊计入销售面积的商品房中公共建筑空间的面积,由两部分组成:一)室内外楼梯、内外廊、公共门厅、通道、电梯、配电房、设备层、设备用房、结构转换层、技术层、空调机房、消防控制室、为整栋楼层服务的值班警卫室,建筑物内的垃圾房以及突出屋面有围护结构的楼梯间、电梯机房、水箱间等;二)套单元与公用建筑空间之间的分隔以及外墙(包括山墙)墙体水平投影面积。

公用建筑面积分摊系数:公用建筑面积/套内建筑面积之和。

8、实用面积:建筑面积扣除公共分摊面积后的余额。

9、计租面积:住宅用房按使用面积计算,非住宅用房按建筑面积计算。

10、套内建筑面积:指商品房套内各部分建筑面积的总和。

套内建筑面积=套内使用面积+套内墙体面积+阳台建筑面积

套内建筑面积=套内使用面积/标准层的使用面积系数

11、容积率:总建筑面积/总用地面积(多层容积率大致为3,高层为5,超高层为7,别墅为0.3-0.45左右、容积率越低,居家环境越好、单价高、品质高;容积率越高,单价低、品质低)

12、建筑密度:基底面积之和/总占地面积*100%

13、绿化率:指项目规划建设用地范围内的绿化面积与规划建设用地面积之比。

公式:植被垂直面积/占地面积*100%

14、绿地率:所有住宅各类绿地面积与住宅总用地面积的比例。新区建设中不应低于30%,旧区改造时不宜低于25%(不包括屋顶、晒台的人工绿地)。

绿化覆盖率>绿化率(绿化所占面积)>绿地率

15、得房率:套内建筑面积/套建筑面积(销售面积)之比

套内建筑面积=套内使用面积+套内墙体面积+阳台建筑面积

套建筑面积=套内建筑面积+分摊的公用建筑面积

16、开间:住宅房子的横向宽度。进深:住宅的实际长度。

17、层高:指下层地板面到上层楼面的高度,包括楼板厚度,以米为单位。

18、净高:指层高减去楼板厚度的净剩值,即楼板上表面至上层楼板下表面的距离。

19、绿地面积:指能够用于绿化的土地面积,不包括屋顶绿化、垂直绿化和覆盖土小于2平方米的土地。

20、跃层式商品房:上、下两层楼,客厅为两层高,没有封。

21、复式楼:楼梯连接两层,客厅只有一层高。

22、错层:房内高度不一至,一米以内分离。

23、砖混结构:由砖和混凝土组成,承重墙(四面不能动,梁柱都不能动)。

24、框架结构:指以钢筋混凝土浇捣成承重梁柱,适合大规模工业化施工,效率较高,承重墙在梁柱,墙面可以自由打通。其次还有:砖木结构、钢筋混凝土、框简结构、钢体结构等。

25、房屋的耐用年限:指房屋能够维持正常使用的年限,与设计的标准、建筑的材料、施工质量、使用状况、维护保养相关。

钢筋结构:60-80年砖混结构:40-60年砖木结构:30-50年其他:15年以下

26、土地计量单位:

1平方公里=100万平方米(km2)1公顷=1万平方米(hm2)

1公顷=15亩1亩=667平方米

27、住宅的楼层划分的规定:

低层住宅为:1-3层多层住宅为:4-6层中高层住宅:7-9层

高层住宅为:10-30层超高层住宅为:40层以上

三、房地产开发相关知识:

1、房地产开发:在依法取得土地使用权的土地上按照使用性质和要求进行基础设施,房屋建筑的活动。它包括从定点选址到交付使用的全过程,由征地与拆迁安置、规划设计、供水、排水、供电、通电讯、通道路、绿化、房屋建设等多项内容组成。

2、土地开发:将生地(不具备使用条件的土地)开发成可供使用的土地。

3、房屋开发:由买得土地使用权的发展商,对土地进行平整,修路铺设上下水管道及热力网,然后建造各类房屋以及公共设施。

4、房地产二次开发:指先将生地开发成熟地(具备使用条件),然后再进行拍卖和出租,由买地者去建造房屋。

5、房地产一次开发:一次性边土地、房屋开发完成。

6、能源系统:包括供电、供热、供气(煤气、天然气、石油液化气)等设施。

7、给水、排水系统:包括取水工程、输水工程、净水工程、配水管网(上下水道),排水管网(下水道)、污水处理、排放工程。

8、土地国家所有权:指作为土地所有者的国家,对自己所有的土地依法享有占有、使用、收益和处分的权利。

9、土地集体所有权:指农村劳动群众集体经济组织,在法律规定范围内对自己所有土地享有占有、使用、收益和处分的权利。

10、房屋的所有权:对房屋全面支配的权利,包括:占有权、使用权、收益权、处分权。

11、土地所有权:指含有法律意义上和经济意义上的所有权双重含义。

法律意义:土地所有者将土地当成自己的财产,并将其实行占有、垄断、拥有对土地支配的权利。

经济意义:指土地所有者凭借对土地的垄断获得一定的经济收入的权利。

四、其它内容须知:

1、办理银行按揭合同需出示:

1)个人身份证及复印件各3份,结婚证或流动人口未婚证明;

2)首期购房款(不低于30%,二次购房者首付不低于40%)购房人已付购房款收据原件及复印件;

3)购房者或配偶单位的工资收入证明;

4)与开发商签订的购房合同;

5)开户银行开户的活期存折并含有3个月的按揭款;

6)个人住房借款合同,借款借据;

7)委托银行扣收购房房款协议书;

8)住房抵押承诺书;

9)贷款申请书。

2、办理银行按揭需交的费用:

1)保险费(保险费率1-10年0.5‰、11-20年0.45‰贷款额)(交保险公司);

2)抵押费,贷款额3‰(交房地产局);

3)律师见证费,贷款额1.8‰(交律师事务所);

4)备案登记手续费,每份合同20元(交房地产局);

5)印花税,每份合同10元(交房地产局);

6)按揭资料费,每份合同40元(交银行);

3、公积金提取条件:符合以下条件的可以一次性提取本人住房公积金帐户内的存储余额。

1)职工购买、建造、翻修、大修自住住房;

2)职工离、退休时;

3)完全丧失劳动能力,并与单位终止劳动关系的;

4)户口迁出所在的市、县或者出境定居的;

5)偿还购房贷款本息的;

6)房租超出家庭工资收入的规定比例的。

4、公积金贷款是有限额规定的:

1)贷款额不能超过25万元的最高上限;

2)贷款额不能超出你住房公积帐户储存余额的5倍;

3)贷款额不能超出总房款的70%;

5、预售房的条件:

1)土地出让金已缴清,取得国有土地使用证;

2)取得建设用地规划许可证;

3)投入工程总建设资金达到20%以上(不含土地出让金);

4)施工进度已明确,交房日期已明确;

5)竣工验收前;

五、附加内容(房地产营销培训基础知识):

1、房地产销售行业:

它是一个精彩、特殊的、无处不销售、人人都使用、升值空间大、有趣、自由、有成就感、锻炼人,上不封顶收入的一个较灵活、广泛、综合性的一个行业。

2、有正确的价值观:价值观---信念---期望---态度---行动目标

3、行动过程:执行---核心价值---中程目标---短期目标---每日工作计划

4、忌语:大概不能肯定的语言

五声四语:迎客声---称呼声---致谢声---送客声

反对四语:蔑视语---烦躁声---否定语---斗气语

5、建筑面积必须高于2.2米(低于2.2米的车库,杂屋没有产权),建筑如配套游泳池、车库等不算面积);

6、朝向:一般以客厅阳台的朝向为准。

7、商圈:称之购买圈或商势圈,指在一定的经济区域内以商场或商业区为中心向周围扩展形成的辐射力量,对顾客吸引而形成的一定范围或区域。

分为:核心商圈:以大型商场为中心,人口占60-80%,价格高;次级商圈:拥有客户占20%;

边缘商圈:分布密度小,产品低档,价格低。

8、商业饱和度:是测量一个商圈内的商业物业的供求量的一个重要方式。

IRS:商业饱和度

C:主要客户指数

RE:每一个顾客平均购买量

RF:商圈内的经营面积

IRS=(C*RE)/RF

9、严重影响房地产价格因素:

1)价格组成=土地成本价格+建安成本+利润+管理费用(国民生产总值,DTP指数、房地产政策、法律法规);

2)影响房地产因素:开发商实力、经济态度、地段、交通、周边环境、配套设施、绿化、升值、政府规划、潜力、客户定位、产品设计、物业管理、市场供求、品牌、销售技巧、自然环境不可复制;

3)影响每一栋单位的价格因素:楼层层高、户型、朝向、景观、外围功能、面积、建筑结构;

4)多层:7层以下,金三银四铜五六;高层:7层以上,越往高上走价格越高,越往上景观越好;

5)影响商铺:升值潜力、地段、交通、配套、市场、定位(业态定位)、消费群、品牌、人流量、物业管理。针对每一个铺位影响因素:位置、面积(面积小、面积消费群体多,价格高)、楼层、铺型(柱、开间、阻挡)、配套设施。

10、递名片技巧:

1)当你与客户谈判时,客户感兴趣时,你递上名片客户对你印象深,认知度;

2)当客户快要起身时,递上名片,你的客户会准确记住,认知你;

11、递资料准确时间:

1)当你将重要内容讲解完毕,再递上资料,请他了解;

2)当你递名片时,一起递给他;

3)如果客户已拿了资料时,你顺着他资料内容一条条讲解下去,然后合上递给他;

12、市场调查目的,其实反映市场现状:

1)了解竞争楼盘;

2)了解消费需求;

3)了解消费行情;

4)为策划、销售提供依据

具体调查内容:

a)产品调查:规模、占地面积、铺位、功能定位(做什么,业态定位)、铺型、配置(电

梯、空调、水电表)、装修、物业管理、经营时间;

b)配套调查:内部配套、周边环境配套、功能配套;

c)价格调查:销售价格、均价、不同楼层差价、付款方式、租金价格(临街与内街价格);

具体调查方式:问卷、街访(入户走访、单层、左手入门、双手右手入门)、专家访谈、市场客户访谈;

具体调查对象:市场、商城、专业街、步行街、专卖点

具体配套调查:医院、银行、超市、休闲场所、酒店、学校、交通(人流、车流、公交车、长途车)

13、风水与房地产营销:南向房间特征(通风时间长、日照时间长、不易发霉、冬暖夏凉)。

风水宝地:依山伴水,龙脉(建筑物的朝向的阴阳取舍。阴:山之南、水之北;阳:山之北、水之南;龙椅之地:绿色是生命色;中纬度:夏吹东南风、西南风)

14、建筑颜色:红色---象征权利、富贵、尊严、红色镇邪。

15、使用率=实用面积/建筑面积

小高层的使用率小于多层:60-70%

高层的使用率小于小高层:80%以上

写字楼的使用率小于高层:50-60%

16、产权证:土地使用证、房产证(集资房是没有产权证的,福利房是有产权证,可以转让,在国家允许的年限内可以转让、出租)。

17、绿化:是生态内的非常小的一个方面。

环境:周边所表现的元素:生态、人文、地理、交通。一个楼盘的环境包括:绿化、交通、密度、配套设施、日照、朝向。

18、价格:昂贵、便宜

1)加权比较法:在价格上及对手比较加X%或减X%,不超过1;如对方1000元/㎡+1000元/㎡*10%=1100元/㎡;反之1000元/㎡-1000元/㎡*10%=900元/㎡;

2)盈亏平衡法

3)经验评估法:根据以往经验来测标,价格阻力位针对顾客来说,内容包括:均价、起价(作用,降低入市门槛、一般是低开高涨,只对于大型楼盘、而小规模楼

盘不宜采用低开高走)、最高价(最好的楼层肯定是最高价)、垂直价格(一般金三银四铜五铁六,超过27米空气质量越差)、价格的可塑性(有

品牌价值的空间)、目标价格(自我实现的价格)。

19、价格构成:

1)土地出让金:三通一平、拆迁、安置费、勘查设计费(了解地质结构);

2)公共基础设施费(统称土地成本);

3)建安成本(土建成本);

4)管理成本(包括营销预算成本);

5)融资成本(利息);

6)税收费用;

7)利润;

20、销控:

内部认购:二八理论:好5%、次15%、差80%;三七理论:好10%、次20%、差70%;

公开销售:用于调节控制销售进度,先销次的,留下一部分好的,用于最后冲刺。

包括:强销期(寻找热销势头)、持销期(也叫调整期,合理安排)、冲刺期、扫尾期。

21、建筑品质:

1)施工方的资质;

2)图纸:设计方案,采光通风是否符合国家规定,规划、设计院进行调查,研究;

3)建筑材料:质量好坏,是否环保产品?

22、金字塔型:

小盘:一般以快打慢,先奇制胜,制造与众不同的特色;

营销手法:营销突围,侧翼进攻,通路卡位,最多客户消费场所。如俱乐部、酒吧、歌舞厅、高尔夫、通过派人进入上述场所与期接触、吸引顾客、实行营销,节省广告费及其它费用。

23、项目定位:了解最大化的消费群体---再了解消费型态---得出需求---市场产品

24、国家标准容积率:

1)别墅1-0.8,一般是0.8;2)高档小区2-2.5;

3)中档小区3;4)低档小区4;

一类小区:公共基础设施布局完整,整个环境良好;

二类小区:公共基础设施布局完整,环境不良好;

三类小区:公共基础设施布局不完整,环境差

吴中区又见江南院售楼处电话:400-8118-224【售楼中心热线】营销中心热线400-8118-224官方售楼处地址4008118224楼盘项目全面介绍,本电话为开发商提供线上预约售楼电话,楼盘项目全面介绍(包含楼盘简介,均价,房价,现房,期房,别墅,叠墅,大平层,价格,楼盘地址,户型图,交通规划,备案价,备案名,项目配套,样板间,开盘时间,认筹时间,楼盘详情, 售楼处电话,最新消息,最新详情,周边配套,一房一价,最新进展等详情咨询)楼盘详情丨价格丨更多优惠丨机不可失丨欢迎致电丨诚邀品鉴!售楼处位置丨特价房丨工抵房丨剩余房源丨户型图丨最新消息丨免责声明:将文章内容综合来源于网络、只作分享,版权归原作者所有!!如有侵权,请联系我们,我们第一时间处理如有问题欢迎来电咨询,专业一对一热情服务,让您用专业眼光去买房。

声明:本文由入驻焦点开放平台的作者撰写,除焦点官方账号外,观点仅代表作者本人,不代表焦点立场。