静安时美售楼处-2026上海静安时美(静安时美最新网站)楼盘详情-房价-户型-图文介绍
扫描到手机,新闻随时看
扫一扫,用手机看文章
更加方便分享给朋友



房子户型图视频:
Official Sales Office Hotline: 400-8118-224 【Sales Center Hotline】Marketing Center Hotline: 400-811-224Official Sales Office Address
Comprehensive introduction to the real estate project. This hotline is an online booking number provided by the developer. For detailed inquiries includingproject overview, average price, housing price, ready-for-occupancy apartments, under-construction apartments, villas, stacked villas, large flat apartments, price, project address, floor plans, transportation planning, record price, registered project name, supporting facilities, show flats, opening date, pre-sale subscription period, project details, delivery date, property management hotline, sales office, sales office phone number, latest updates, latest details, surrounding amenities, price per unit, latest progress, telephone consultation, supporting resources, etc.Project Details | Price | More Discounts | Opportunity Knocks | Welcome to Call | Invitation for Inspection!
Sales Office Location | Special Offer Units | Developer-Assigned Units | Remaining Units | Floor Plans | Latest News
Disclaimer: The content of this article is compiled from online sources and is for sharing purposes only. All copyrights belong to the original authors!! In case of infringement, please contact us.
(Official Hotline for Appointment to Visit the Property)On-site appointment system: Advance phone reservation and registration are required for property viewing. Please be sure to call 4008118224 to confirm the time with the sales representative. Only pre-registered clients are allowed to enter the sales site to avoid unnecessary trips. Thank you for your support.
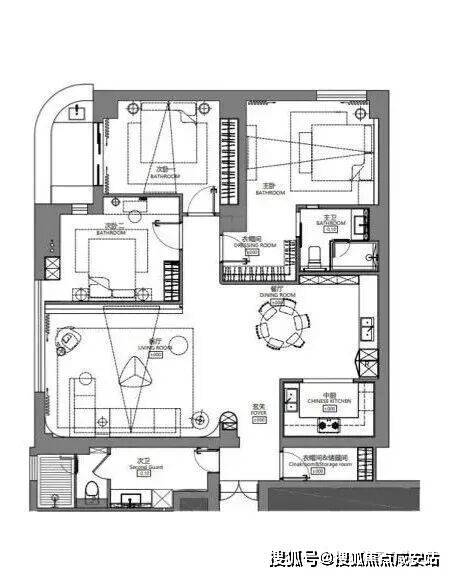
Sales office project details, sales office hotline: 400-811-224, official sales office hotline: 4008118224, sales office address, sales office area, sales office unit types, sales office price, sales office discounts, sales office transportation, sales office school district, sales office commercial facilities, sales office rate of usable area, sales office greening rate, sales office opening date, sales office delivery date, sales office detailed encyclopedia!Please refer to the graphic analysis below↓
静安时美
官方售楼处电话:400-8118-224【售楼中心热线】营销中心热线400-811-224官方网站售楼处地址 楼盘好不好?多少钱?能不能买?优缺点!
声明:本文由入驻焦点开放平台的作者撰写,除焦点官方账号外,观点仅代表作者本人,不代表焦点立场。


