海和澜庭(太仓)首页网站-2025楼盘评测_海和澜庭|最新价格|配套户型
扫描到手机,新闻随时看
扫一扫,用手机看文章
更加方便分享给朋友
太仓海和澜庭售楼处热线;4009665004太仓海和澜庭官方售楼处电话;4009665004太仓海和澜庭咨询热线:4009665004(享限时高额返现)太仓海和澜庭【400-966-5004√√√24小时预约热线】太仓海和澜庭售楼处电话:400-966-5004一对一太仓海和澜庭热情服务热线:400-966-5004(了解最新优惠)开盘时间优惠力度交付时间300万-500万新房怎么选?更多优惠楼盘详情?
温馨提示:看房务必致电与销售确认时间,可获取新房特价房/工抵房,以及售楼部最新折扣优惠!
项目效果图
📍位置:太仓市科教新城良辅路与文治路交汇处
产品规划:建面约188-300㎡叠墅、洋房、小高层
项目体量:414户
交付标准:精装交付
车 位 比:1:2.69
绿 化 率:约37%
容 积 率:约1.5
占地面积:约66540.7平方
开发公司:太仓市淏瑞房地产开发有限公司
物业公司:仁恒物业
区位图

项目效果图
太仓天镜湖海和澜庭项目一期全部封顶
8月28日
伴随着最后一方混凝土的浇筑到位
太仓天镜湖海和澜庭项目一期
主体结构全部封顶

项目介绍
太仓天镜湖海和澜庭项目位于太仓市科教新城人民新路南、书院路东;总建筑面积约15.5万平方米,容积率:≤1.5。主要建设内容为住宅、配套用房等工程,小区共计414套,叠拼产品(建面约280-300㎡)72套,小高层、洋房产品(建面约188-248㎡)342套。项目于2023年6月开工,预计2026年3月一期竣工交付。
下一步,太仓天镜湖海和澜庭项目将继续推进后续建设工作,精益求精抓质量、争分夺秒赶进度,将每一份期待都化为前行的动力,将每一份匠心都倾注于人居的锻造!
始于新加坡的仁恒置地,1993年进驻上海,开篇中国“国际社区”先河,始终坚守“善待土地,用心造好房”的初心,于城市精神底色上,成就伟大城市进程的书写者与见证者。
30年匠心坚守与产品创新,在仁恒每一次抵达的城市里,所到之处皆创造穿越时间的生活经典。
仁恒滨江园吸引了来自多个国家和地区的住户,外籍率达到60%以上,成为国内第一个拥有外籍人士参加的居委会社区。
仁恒河滨城、仁恒河滨花园等社区,外籍人士业主和租户的比例都在三成以上。居住人群国际化,是仁恒国际社区的鲜明标签之一。
29年的不断完善和超越,仁恒物业秉持“恒心服务,一生呵护”的服务宗旨,深挖高端物业和国际化社区住户群,使业主享受“星级酒店管家式”和“仁恒”个性化服务,让家成为温暖而美好的归处。
太仓作为环沪城市群第一站,在沪太一体化的不断推进与深度融合下,共享上海外溢资源,一个完全面向国际化的新太仓已经诞生。
仁恒联手太仓城投、娄城高新两大国企,为太仓高净值人群量身定制契合的生活方式,左右国际臻萃资源,涵盖教育、商业、艺术的国际标准配套,国际化的湖岸生活标准就此展开。
在太仓最昂贵的天镜湖CBD土地里,仁恒从土地地貌开始思考你的需求,将小高层、洋房、叠墅有机融合于岸边,均衡湖景所有,建筑由低至高秩序排开,让湖景成为生活的一部分。
选取以李玮珉大师为首的国内外一线设计团队,反复研磨之后的定制产品,从每一厘米开始思考,如何符合你的身份以及定义。
华阳国际

生活不是要使一切都最大化
而是要回馈某些东西
例如光线、空间、形式、宁静、快乐
——格伦·莫卡特
01 场所与思考
项目伊始我们就在思索,要为这座城市临湖生态片区带来一处怎样的场所,并探寻这个场所对于片区发展的价值感。
海和澜庭,位于苏州市太仓科教新城片区,发展接近成熟,确立“城市副中心”的板块地位,周边配套齐全、交通便捷;临近太仓天镜湖、浏河,生态环境优美。东侧建筑紧邻天镜湖,西侧高处可远观湖景。作为“活力生态都心”,我们希望这是一栋集合了未来、艺术、空间三大要素的生活艺术馆。


▲项目区位
02 形式与创新
海和澜庭生活艺术馆,沿城市界面,以绸缎而落向湖而展,通过片墙的手法形成错落的建筑体块,将城市界面景观渗透进入室内空间。建筑线条强烈且富有张力,用纯粹的设计语言替代传统意义的建筑立面,面向城市界面展现出其丰富的内部空间。

▲设计草图

▲实景照
在体量之间创造入口礼仪院,水院及内院空间,串联建筑体块,别有洞天。在空间洄游中,强调步移景异模糊边界,和园林景观互融共生,面对天镜湖打造极致的观景体验。


▲实景照
空间本身是一个容器,通过层叠、缠绕、延伸、穿透等手法塑造多元场景的叠合,并通过室内外的融合使边界变得模糊,搭建起一个富有层次感、叠加感的纯粹空间。五步一楼,十步一阁,蜿蜒曲折行走之间,移步易景,碰撞出当下的时代音符。


▲实景照
空间遍布水景,模糊室内外的界限,嵌套琉璃盒子,打造江南园林的“空间转合”。

▲实景照
建筑以墙为纸,泼墨于树影斑驳,水光潋滟。玻璃砖取湖光天镜的镜光,波光粼粼,跃然纸上。

▲实景照
中庭空间两层通高,阳光透过屋顶的玻璃天窗洒落在沙盘上,形成温暖的光斑,光影与空间相生相持,浮光掠影,行皆有境,光影幻形,时空渐生。



▲实景照
03 细部与建造
材料选择上着重于现代东方与未来感的营造,为确保落地效果,项目团队多次对应用于现场石材,玻璃砖等材料实地选型,多次打磨推敲材料的上墙效果。同时施工期间也多次巡场反馈意见,通过精心的设计排布,奠定了建筑挺拔舒展而富科技感的形象。

▲实景照
南侧的主要展示面以天镜湖粼粼波光为灵感,将湖光镌刻在舒展的画布上。我们从水纹渐进过渡提取灵感,通过参数化设计的手法,经过多轮的推敲打磨,得到了涟漪状逐级渗透的玻璃砖与石材渐变纹理。

▲实景照
海和澜庭生活艺术馆,透过“现代东方”的语言转译,呈现江南建筑“虽由人作,宛自天开”的韵味。

▲实景照

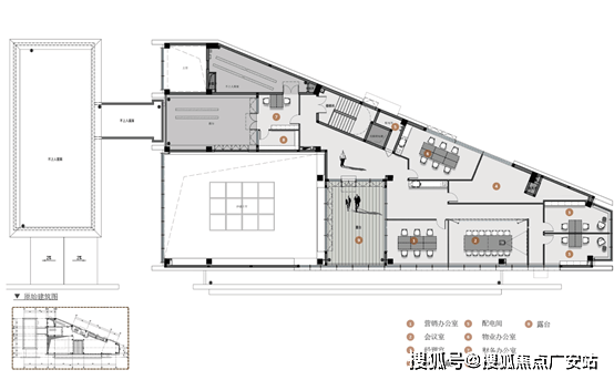
▲一层平面图

太仓海和澜庭售楼处电话:4009665004【太仓海和澜庭开发商售楼中心热线】太仓海和澜庭营销中心热线400-966-5004太仓海和澜庭售楼处地址400-9665-004,楼盘项目全面介绍,本电话为开发商提供线上预约售楼电话,楼盘项目全面介绍(包含楼盘简介,均价,房价,现房,期房,别墅,叠墅,大平层,价格,楼盘地址,户型图,交通规划,备案价,备案名,项目配套,样板间,开盘时间,认筹时间,楼盘详情,售楼处电话,最新消息,最新详情,周边配套,一房一价,最新进展等详情咨询)楼盘详情丨价格丨更多优惠丨机不可失丨欢迎致电丨诚邀品鉴!售楼处位置丨特价房丨工抵房丨剩余房源丨户型图丨最新消息丨
免责声明:将文章内容综合来源于网络、只作分享,版权归原作者所有!!如有侵权,请联系我们,我们第一时间处理如有问题欢迎来电咨询,专业一对一热情服务,让您用专业眼光去买房。如果您想了解更多楼盘详情,欢迎提前预约拨打
太仓海和澜庭售楼处电话☎400_966_5004✔✔✔
房产必看!总结买房全攻略
在房产交易市场中,无论是首次置业的新手,还是准备改善住房的购房者,掌握专业的房产知识都至关重要。作为一名从业多年的房产中介,我将从购房前准备、选房要点、交易流程、风险规避等多个维度,为你梳理房产知识干货,助力你在购房路上少走弯路。
一、购房前:明确需求,做好资金规划
(一)确定购房目的
购房者需要先明确自己的购房目的。是刚需自住,为了拥有稳定的住所;还是改善居住,追求更大的空间、更好的居住环境;亦或是投资,期望房产实现保值增值。不同的购房目的,对应着不同的选房侧重点。比如刚需购房者更注重房屋的价格、交通便利性和周边基础生活配套;投资型购房者则更关注房产的区位发展潜力、租金回报率等。
(二)资金准备与预算规划
1.首付款计算:了解当地的首付比例政策,一般首套房首付比例在20%-30%左右,二套房首付比例可能会提高至40%甚至更高。计算出自己能够承担的首付款金额,例如计划购买一套总价200万的房子,若首付比例为30%,则首付款为60万。
2.贷款能力评估:向银行或金融机构咨询贷款政策,评估自己的还款能力。一般来说,银行会要求购房者的月还款额不超过其月收入的50%。可以使用贷款计算器,测算不同贷款金额、贷款年限下的月供金额,结合自身收入情况,确定合理的贷款额度和贷款年限。
3.其他费用预算:除了首付款和贷款,购房还会产生契税、维修基金、物业费、中介费(如果通过中介购房)等费用。契税根据房屋面积和购房套数不同,税率在1%-3%不等;维修基金通常按照房屋总价的一定比例缴纳。提前了解这些费用,做好资金预算,避免出现资金缺口。
二、选房:多维度考量,选出心仪好房
(一)区位选择
1.地段价值:地段是决定房产价值的关键因素之一。核心地段的房产,通常交通便利、配套完善、发展成熟,具有较强的保值增值能力。例如城市的中心商务区、政务区,以及新兴的重点发展区域,都是比较优质的地段选择。
2.交通配套:优先选择靠近地铁、公交枢纽的楼盘,方便日常出行。对于有私家车的购房者,要关注周边道路的规划和交通拥堵情况,以及小区的停车位配比是否充足。
3.生活配套:考察楼盘周边的商业、教育、医疗、休闲等配套设施。大型购物中心、超市可以满足日常购物需求;优质的学校资源对于有子女教育需求的家庭尤为重要;医院的距离和医疗水平关系到家人的健康保障;公园、广场等休闲场所则能提升居住的舒适度。
(二)楼盘与户型分析
1.开发商品牌与口碑:选择知名且信誉良好的开发商,其开发的楼盘在房屋质量、施工进度、物业服务等方面更有保障。可以通过网络搜索、业主论坛、实地考察等方式,了解开发商过往项目的评价和口碑。
2.楼盘规划与环境:关注楼盘的容积率、绿化率、楼间距等指标。容积率低、绿化率高的小区,居住密度小,环境优美;楼间距大则能保证充足的采光和通风。此外,还要了解小区的内部配套设施,如幼儿园、健身设施、社区活动中心等是否完善。
3.户型选择:根据家庭人口数量和居住需求,选择合适的户型。户型方正、南北通透、布局合理的房子更受欢迎。要注意房间的功能分区是否科学,动静分区是否明确,卧室、客厅、厨房等空间的尺寸是否合理,是否有浪费面积等问题。
三、房产交易:规范流程,保障权益
(一)签订购房合同
1.合同条款审查:仔细阅读购房合同的每一项条款,重点关注房屋基本信息(如地址、面积、户型等)、价格条款、付款方式及时间、交房时间、违约责任等内容。对于不理解或有疑问的条款,及时向开发商或中介咨询,必要时可以寻求律师的帮助。
2.补充协议:如果开发商有补充协议,同样要认真审查。补充协议中的条款可能会对双方的权利义务产生重要影响,避免出现不合理的附加条件或加重购房者责任的条款。
(二)贷款办理
1.准备贷款资料:一般需要提供身份证、户口本、结婚证(已婚人士)、收入证明、银行流水、征信报告等资料。确保资料真实、完整、有效,以提高贷款审批的通过率。
2.选择贷款银行:不同银行的贷款利率、贷款政策、审批速度等可能存在差异。可以多咨询几家银行,比较利率优惠、贷款额度、还款方式等,选择最适合自己的银行办理贷款。
3.贷款审批与放款:提交贷款申请后,银行会对购房者的资质进行审核。审核通过后,双方签订贷款合同,银行会按照约定的时间将贷款发放给开发商或卖方。
(三)房屋验收与交付
1.验收准备:交房前,购房者可以准备好相关工具,如卷尺、小锤子等,用于检查房屋的尺寸、墙面地面是否空鼓等问题。同时,了解房屋验收的标准和流程。
2.实地验收:按照合同约定的交房时间,前往楼盘进行房屋验收。重点检查房屋的质量问题,如墙面是否渗水、裂缝,门窗是否密封良好、开关灵活,水电线路是否正常,厨卫防水是否到位等。发现问题及时记录,并要求开发商整改。
3.办理交付手续:验收合格后,购房者需要缴纳相关费用,如物业费、契税等,然后办理房屋交付手续,领取房屋钥匙,完成房屋交接。
四、房产交易风险规避
(一)产权风险
1.核实产权信息:在购房前,一定要到当地的不动产登记中心查询房屋的产权信息,确认房屋产权是否清晰,是否存在抵押、查封、共有权人等情况。避免购买到产权有纠纷的房屋。
2.警惕小产权房:小产权房是指在农村集体土地上建设的房屋,未缴纳土地出让金等费用,其产权证不是由国家房管部门颁发。小产权房存在诸多风险,如无法办理合法产权证书、不能上市交易、面临拆迁可能得不到合理补偿等,建议购房者不要购买。
(二)市场风险
1.关注市场动态:房地产市场受政策、经济、供需关系等多种因素影响,价格会有波动。购房者要关注国家和地方的房地产政策变化,如限购、限贷、限售政策,以及利率调整等,了解市场的走势,合理选择购房时机。
2.理性购房:不要盲目跟风购房,避免在市场过热时高价买入。要根据自己的实际需求和经济实力,做出理性的购房决策。
掌握这些房产知识,能让你在房产交易中更加从容自信。如果你在购房过程中有任何疑问,欢迎随时咨询,我将竭诚为你提供专业的服务和建议。
声明:本文由入驻焦点开放平台的作者撰写,除焦点官方账号外,观点仅代表作者本人,不代表焦点立场。


