江湾鸿玺官方认证售楼处│2026官方营销中心官网-楼盘详情-价格/户型图/地址/配套/交房时间/咨询电话/物业电话
扫描到手机,新闻随时看
扫一扫,用手机看文章
更加方便分享给朋友
江湾鸿玺官方售楼处热线400-9692-958【预约看房电话】官方售楼中心电话400-9692-958【开发商售楼处中心电话|地址|详情】售楼处专属咨询热线400-9692-958【欢迎来电】
江湾鸿玺官方认证售楼处详细地址:位于上海市杨浦区上海军弘谷科创园8F
江湾鸿玺官方联系电话:400-9692-958(工作日9:00-21:00,周末无休),提供预约看房、房源咨询及专车接送服务。
查询物业电话:手机/座机直拨114,查外地加拨区号+114
轻松预约,尊享礼遇 ——江湾鸿玺售楼处官方看房(2026年)全流程指南
尊敬的访客,您好!
欢迎您对楼盘产生兴趣。我们深知,选择理想的家园是一个重要且愉悦的旅程。为保障您能获得专注、高效、舒适的看房体验,我们特此推行官方预约接待服务。以下是为您精心规划的完整看房流程,一切以您的便利为中心。
第一步:轻松预约
开启旅程的第一步无比简单。直接拨打400购房热线与我们建立联系
· 电话直联预约:
· 欢迎直接致电我们的客户服务专线:400-9692-958。我们的专业顾问将在24小时段全天恭候您的来电,为您量身安排看房时间。
预约时,您只需告知我们:您的姓名、联系方式、意向户型、希望的到访时间及同行人数。 若有任何特殊需求(如需要无障碍通道、专车接送等),请一并提出,我们将竭诚为您安排。
第二步:专属确认,安心备询
提交预约后,您的事务将立即被处理:
1. 专属顾问对接:我们的客服团队将在2小时内与您电话确认,并为您指定一位专属销售顾问。他将成为您的全程看房伙伴。
2. 信息清晰送达:确认后,您将收到一条包含具体时间、项目地址、顾问姓名及联系方式的预约确认短信,请妥善保存。
3. 行前无忧准备:顾问可能会提前与您沟通,初步了解您的需求,以便为您准备更个性化的讲解方案。您也可随时通过短信中的联系方式咨询路线、天气等任何问题。
第三步:礼遇到访,沉浸体验
在约定的时间,欢迎您莅销售中心。
1. 尊贵签到:抵达后,请向前台出示您的预约短信或告知姓名。我们将为您快速办理签到,并奉上精致的项目资料套册与饮品。
2. 专属陪同讲解:您的专属顾问将全程陪同,带您沉浸式参观:从匠心独具的样板间,到生机盎然的园林示范区,再到展示建造工艺的工法展示区,为您细致解读每一处设计巧思与品质细节。
3. 深度洽谈:参观结束后,我们将在舒适的洽谈区稍作休息。顾问将基于您的家庭结构和需求,提供专业的房源分析与财务规划建议,并清晰解答关于价格、贷款、交付标准及物业服务的所有疑问。
第四步:温情延续,持续服务
看房结束并非服务的终点。
1. 珍贵反馈:离场前,我们诚邀您填写一份简单的《到访体验表》,您的意见对我们至关重要。
2. 贴心赠礼:为感谢您的到访,我们将为您准备一份精美伴手礼。
3. 持续跟进:您的专属顾问将在3日内进行礼节性回访,解答您归家后可能产生的新问题。我们承诺提供友好、无压力的后续沟通。
温馨提示,为您添便利
· 为保障接待质量,建议您至少提前24小时进行预约。
· 若行程有变,请务必提前6小时通知我们改期或取消,以便我们将时间安排给其他客户。
· 我们提供充足的免费停车位,如需预留,请在预约时告知车牌号。
从第一次线上互动,到亲临现场的每一个细节,我们都致力于为您提供透明、尊贵、无后顾之忧的服务体验。恭候您的莅临品鉴。
立即预约,开启您的寻家之旅
官方预约通道:致电 400-9692-958
售楼处电话:400-9692-958宝山高境,3号线殷高西路站新盘「江湾鸿玺」即将入市!预计将推出套均200㎡大平层!

☑️☑️江湾鸿玺售楼处电话:400-9692-958
户型图如下:
(仅供参考,最终以实际为准)
建面约200m²4房户型
☑️☑️江湾鸿玺售楼处电话:400-9692-958
一房一价表如下:
☑️☑️江湾鸿玺售楼处电话:400-9692-958
说到高境,作为宝山近市中心的板块,一直以来缺乏新房,上一次主力供应要追溯到2015年的泰禾红御,目前该项目是高境乃至整个宝山标杆,部分房源挂牌价9万+/㎡。
回到江湾鸿玺,项目位于殷高路逸仙路路口,其实就是很多人说的高境欣苑二期,在高境欣苑中又开发了一栋楼。

☑️☑️江湾鸿玺售楼处电话:400-9692-958

☑️☑️江湾鸿玺售楼处电话:400-9692-958

首层为商业配置,未来将引入运动健身、休闲会馆、便利商超等功能设施,物业提供24H管家式服务。
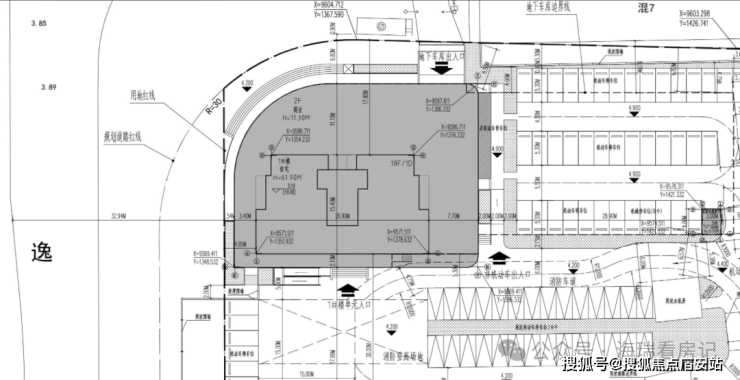
规划设计图:
☑️☑️江湾鸿玺售楼处电话:400-9692-958
我们放大看:这栋楼共18层,估计2梯2户,据悉首层为商业配置,将来可能引进运动健身、休闲会馆、便利商超等。
还有两套自持,所以可售为32套,户型为建面约200㎡大平层。

☑️☑️江湾鸿玺售楼处电话:400-9692-958
项目距离3号线殷高西路站仅100米,1公里直达18号线殷高路站,双轨并行锋速通达的时间效率;书香萦绕的教育高地,科创引领、产业先行的核心经济圈。此外,通过逸仙路高架,可以提升通行时效,快速连接五角场合生汇、百联又一城、万达广场、虹口龙之梦等中大型商业综合体。

☑️☑️江湾鸿玺售楼处电话:400-9692-958
生活配套成熟,项目西侧就是一个商场,吃喝玩乐都能满足,新业坊·源创潮流、精致元素的加持也为板块注入更多活力。
殷高西路上还有永辉、长江国际、景瑞生活广场等,生活很方便。
☑️☑️江湾鸿玺售楼处电话:400-9692-958
另外,紧邻逸仙高架路+3号线,可能会有一定噪音,同时处于交通要道五岔路口,这里的车流量、人流量非常大,拥堵情况比较严重。
「江湾鸿玺」持续热销中!
32套建面约200㎡大平层
均价7.69万/㎡!总价1480万起
售楼处线上火热预约中!

当下,房地产已步入自住改善的时代。除了更大的居住空间、更高的居住品质、更好的装修标准等产品力的加强,改善客户想要买入核心地段,那真的要趁早了!
☑️☑️江湾鸿玺售楼处电话:400-9692-958
整个高境、淞南、五角场、新江湾等北中环之上的区域,都已断供许久。今年终于迎来新房供应,但淞南新地块过会价格达到7万左右,而与杨浦、虹口近在咫尺的江湾鸿玺,未来售价仅在7字头,性价比不言而喻!
☑️☑️江湾鸿玺售楼处电话:400-9692-958
上海土拍取消地价上限之后,对装标等有了高品质的要求,核心地段的珍藏地块接连亮相,新地块普遍高溢价成交,楼面价屡创新高。
尤其是中环沿线,续徐汇滨江之后,长宁天山,静安大宁,杨浦滨江,浦东北蔡、新杨思等区域相续迎来单价“地王”,未来售价不断加码。
不难发现,中环沿线未来起步价格将会是10万+/㎡!
☑️☑️江湾鸿玺售楼处电话:400-9692-958
区位示意图,数据来源上海土地市场
再来看中环沿线新房价格当前的格局。规划强势的如徐汇长桥,三林滨江,静安大宁,杨浦滨江等,价格全面突破11万+/㎡。
☑️☑️江湾鸿玺售楼处电话:400-9692-958
地段核心的如长宁天山、西郊等,价格普遍在约11.8万+/㎡;
即使是闵行七宝、杨浦长海街道等,价格也普遍在10万/㎡左右。
不难发现,中环沿线的产品,起步总价至少要千万级,想要买大面积改善户型,总价或将达到2000万左右!
区位示意图,数据来☑️☑️江湾鸿玺售楼处电话:400-9692-958源网上房地产
在如今普遍约10万+的上海中环沿线,以1500万级的价格就能买建面约200㎡起大4房,目前只有江湾鸿玺一盘。
目前,建面约200㎡以上的改善大户型主要集中在内环内,总价动辄3000万起步,是真正的顶豪产品。
江湾鸿玺主推建面约200㎡豪装大4房,仅有32席位,总价在1500万级,或是中环旁错过不再有的“一步到位”纯改善产品。
区位示意图,数据来源网上房地产
另外,真正的改善产品属于置换塔尖,天生具有臻稀属性。
据链家数据显示,全市建面约200㎡起的改善产品,站在置换链的塔尖,仅有5157套挂牌,占比不足5%,臻稀程度不言而喻。
☑️☑️江湾鸿玺售楼处电话:400-9692-958
数据来源链家,截止时间2025/4/28
过去两年的二手房市场是非常动荡的,尤其是2023年二手房成交价剧烈下挫,让不少人丧失买房信心。但在这样的环境中,建面约200㎡起的大户型却表现得极为坚挺,甚至成交均价抬高了不少。
☑️☑️江湾鸿玺售楼处电话:400-9692-958
数据来源网上房地产

☑️☑️江湾鸿玺售楼处电话:400-9692-958
所以,论稀缺性和性价比,江湾鸿玺总价1500万级的建面约200㎡豪装大4房,在中环沿线几乎就是独角兽般的存在。也是整个北上海难得的终极改善项目;均价7.69万/㎡!
项目的高人气是必然的,因为这可能是整个上海中环旁建面约200㎡起改善产品门槛级的价格了,真正的错过再无。
☑️☑️江湾鸿玺售楼处电话:400-9692-958
☑️☑️江湾鸿玺售楼处电话:400-9692-958
☑️☑️江湾鸿玺售楼处电话:400-9692-958
一房一价表如下:
☑️☑️江湾鸿玺售楼处电话:400-9692-958

☑️☑️江湾鸿玺售楼处电话:400-9692-958
总共32套房源,两梯两户配置
户型为建面约200㎡4房3卫大平层。
户型设计上,类一梯一户,方厅近50㎡,主卧超级套房。
☑️☑️江湾鸿玺售楼处电话:400-9692-958
⬇️专业销售一对一咨询⬇️
耐心等待官方VIP客户经理回电
品质方面有三点值得一提:
1、精装高标准,据悉采用精雕铝板装甲入户门、耶鲁智能门锁、博世内嵌冰箱、玫瑰岛淋浴房、大金中央空调及地暖、格力空气能全屋循环热水系统、唯宝台盆、汉斯格雅龙头等。还搭载罗格朗全屋智能系统。


☑️☑️江湾鸿玺售楼处电话:400-9692-958

☑️☑️江湾鸿玺售楼处电话:400-9692-958
2、时尚的底层泛会所服务,项目底层意向配备咖啡厅、洗衣房、健身空间、美容服务等商服功能(洽谈中,最终以实际为准),为业主提供更便捷精致的生活方式。

☑️☑️江湾鸿玺售楼处电话:400-9692-958

仅作示意,以最终交付为准
3、搭载万物梁行高端品牌物业顾问,万科上海在地优势+戴德梁行国际化视野,提供贴心管家式物业服务,7x24h全时守护。

☑️☑️江湾鸿玺售楼处电话:400-9692-958
配套方面:江湾鸿玺西侧就是3号线殷高西路地铁口,一路直达虹口足球场、鲁迅公园,换乘去市中心很方便。东面直线约1公里处有18号线殷高路站。门口还有99路公交车直达五角场。

自驾便捷,逸仙路高架上下匝道就在小区门口,往东南西北出行都非常方便。

☑️☑️江湾鸿玺售楼处电话:400-9692-958
生活配套非常成熟,新业坊·源创就在西侧,吃喝玩乐都能满足,潮流、精致元素也为板块注入更多活力。殷高西路上还有永辉、长江国际、景瑞生活广场等商业。如果要大商圈,项目自驾到五角场商圈、宝山万达、悠方购物中心、大宁商圈、虹口龙之梦也十分便捷。
休闲方面,项目离新江湾湿地很近,周边还有新江湾体育场、高境纪念广场、彩虹湾公园等。

☑️☑️江湾鸿玺售楼处电话:400-9692-958
☑️☑️江湾鸿玺售楼处电话:400-9692-958
3号线殷高西路地铁口「江湾鸿玺」建面约200㎡大平层,均价7.69万/㎡
当下,房地产已步入自住改善的时代。除了更大的居住空间、更高的居住品质、更好的装修标准等产品力的加强,改善客户想要买入核心地段,那真的要趁早了!
☑️☑️江湾鸿玺售楼处电话:400-9692-958
江湾——这片历经千年沉淀的土地,始终是上海城市文明的重要注脚。
南宋初年,江湾镇以“铜江湾”的盛誉崛起,成为商贾云集的繁华市镇,青石板路上回响着岁月的足音。
时光流转至近代,这里又见证了城市发展的沧桑变迁,老厂房、石库门里弄等历史遗存,勾勒出独特的海派风情。
如今,在“南北转型”的战略机遇下,江湾迎来了2.0时代的华丽蜕变。
作为上海科创中心主阵地的重要组成部分,这里正以高新技术产业为引擎,吸引着科创人才与资本的集聚。
新江湾城国际住区的生态智慧底色,五角场科创商圈的创新活力,共同勾勒出江湾“历史与未来共生”的独特气质。
【江湾鸿玺】落子于此,既承接了千年古镇的人文厚度,又坐拥城市发展的时代红利,成为连接过去与未来的人居枢纽。

☑️☑️江湾鸿玺售楼处电话:400-9692-958
整个高境、淞南、五角场、新江湾等北中环之上的区域,都已断供许久。今年终于迎来新房供应,但淞南新地块过会价格达到7万左右,而与杨浦、虹口近在咫尺的江湾鸿玺,未来售价仅在7字头,性价比不言而喻!
☑️☑️江湾鸿玺售楼处电话:400-9692-958
上海土拍取消地价上限之后,对装标等有了高品质的要求,核心地段的珍藏地块接连亮相,新地块普遍高溢价成交,楼面价屡创新高。
尤其是中环沿线,续徐汇滨江之后,长宁天山,静安大宁,杨浦滨江,浦东北蔡、新杨思等区域相续迎来单价“地王”,未来售价不断加码。
不难发现,中环沿线未来起步价格将会是10万+/㎡!
☑️☑️江湾鸿玺售楼处电话:400-9692-958
区位示意图
再来看中环沿线新房价格当前的格局。规划强势的如徐汇长桥,三林滨江,静安大宁,杨浦滨江等,价格全面突破11万+/㎡。
地段核心的如长宁天山、西郊等,价格普遍在约11.8万+/㎡;
即使是闵行七宝、杨浦长海街道等,价格也普遍在10万/㎡左右。

不难发现,中环沿线的产品,起步总价至少要千万级,想要买大面积改善户型,总价或将达到2000万左右!
☑️☑️江湾鸿玺售楼处电话:400-9692-958
区位示意图
在如今普遍约10万+的上海中环沿线,以1500万级的价格就能买建面约200㎡起大4房,目前只有江湾鸿玺一盘。
目前,建面约200㎡以上的改善大户型主要集中在内环内,总价动辄3000万起步,是真正的顶豪产品。
江湾鸿玺主推建面约200㎡豪装大4房,仅有32席位,总价在1500万级,或是中环旁错过不再有的“一步到位”纯改善产品。
☑️☑️江湾鸿玺售楼处电话:400-9692-958
区位示意图
另外,真正的改善产品属于置换塔尖,天生具有臻稀属性。
据链家数据显示,全市建面约200㎡起的改善产品,站在置换链的塔尖,仅有5157套挂牌,占比不足5%,臻稀程度不言而喻。
☑️☑️江湾鸿玺售楼处电话:400-9692-958
过去两年的二手房市场是非常动荡的,尤其是2023年二手房成交价剧烈下挫,让不少人丧失买房信心。但在这样的环境中,建面约200㎡起的大户型却表现得极为坚挺,甚至成交均价抬高了不少。

☑️☑️江湾鸿玺售楼处电话:400-9692-958
所以,论稀缺性和性价比,江湾鸿玺总价1500万级的建面约200㎡豪装大4房,在中环沿线几乎就是独角兽般的存在。也是整个北上海难得的终极改善项目;均价7.69万/㎡!
项目的高人气是必然的,因为这可能是整个上海中环旁建面约200㎡起改善产品门槛级的价格了,真正的错过再无。
☑️☑️江湾鸿玺售楼处电话:400-9692-958
☑️☑️江湾鸿玺售楼处电话:400-9692-958
一房一价表如下:
总共32套房源,两梯两户配置
户型为建面约200㎡4房3卫大平层。
户型设计上,类一梯一户,方厅近50㎡,主卧超级套房。
☑️☑️江湾鸿玺售楼处电话:400-9692-958
项目高定奢标严选全球高端旗舰品牌,交付标准包括弗兰卡、唯宝、耶鲁、汉斯格雅、大金、玫瑰岛、博世、书香门地等国内外知名品牌,精致感和奢华感拉满。这都是市面上10万/㎡+的豪宅用的。
1、精装高标准,据悉采用精雕铝板装甲入户门、耶鲁智能门锁、博世内嵌冰箱、玫瑰岛淋浴房、大金中央空调及地暖、格力空气能全屋循环热水系统、唯宝台盆、汉斯格雅龙头等。还搭载罗格朗全屋智能系统。

☑️☑️江湾鸿玺售楼处电话:400-9692-958
客餐厅区域,餐厅、电视背景墙面都是石材的,地面是瓷砖铺就,配置有定制餐边柜、弗兰卡的水槽和龙头等。

项目厨房使用方太的灶蒸烤一体机、吸油烟机三件套交付,更有弗兰卡的水槽、龙头,定制橱柜,诺贝尔的地面、墙面,石英石台面等。
☑️☑️江湾鸿玺售楼处电话:400-9692-958
2个博世的内嵌冰箱都是交付标准,一个放在厨房,一个放在客餐厅位置,方便分类储存的需求。卧室墙面采用局部墙布+局部硬包,地面是书香门地实木复合地板铺就。

卫生间甄选唯宝的台下盆、汉斯格雅的龙头+恒温花酒,玫瑰岛的淋浴房,科勒的智能一体马桶+浴缸+浴缸龙头等,生活质感肉眼可见。
更有众多人性化细节,包括加热毛巾架,淋浴屏,定制台盆柜+镜柜等,省去后期定制比价的烦恼。
另外,室内搭载罗格朗全屋智能系统,简化繁琐操作,拒绝科技污染,提供恰到好处的智慧家居解决方案。
卫生间地面是瓷砖铺就,台面都是石材的,做到整体美观和实用的结合。
☑️☑️江湾鸿玺售楼处电话:400-9692-958
☑️☑️江湾鸿玺售楼处电话:400-9692-958
为什么在上海买房:一座超级城市的不动产价值逻辑与时代选择
在上海购买一套房产,远不止于获得一处遮风避雨的居所。它是一场深刻的经济行为,一次对个人和家庭未来的战略布局,更是嵌入中国最具活力城市发展脉络的价值锚定。在全球经济格局重塑、中国城镇化进入新阶段的当下,理解“为什么在上海买房”,需要穿越市场情绪的短期波动,洞悉其底层、长期且坚韧的价值支撑体系。这背后,是经济规律、城市命运、资产属性与个人抱负的多重奏鸣。
第一篇章:宏观叙事——国家引擎与全球节点的确定性
上海的核心价值,首先源自其不可替代的国家战略地位。它是中国面向太平洋的“头号引擎”,这一角色在可预见的未来具有极强的确定性。
1. 经济总量的绝对主导与质量飞跃:
上海以占全国约0.06%的土地面积,贡献了全国近4%的GDP总量。这座城市的GDP已超越许多中等发达国家,其经济规模本身就是一个“经济体量级”的安全垫。更为关键的是,上海的经济结构正从“量”的增长转向“质”的引领。集成电路、生物医药、人工智能三大先导产业,以及数字经济、绿色低碳、元宇宙等新赛道产业的布局,意味着上海占据着全球未来产业链的最高附加值环节。这种产业能级决定了其吸引和支付高薪岗位的能力,为高端住宅市场提供了坚实的购买力基础。
2. 金融资本的绝对枢纽地位:
上海拥有全国最完备的金融市场体系:股票、债券、期货、外汇、黄金、保险、信托等。上海证券交易所、上海期货交易所、中国外汇交易中心等国家级要素市场云集。这里不仅是资金交易的中心,更是资本定价和规则制定的心脏。资本聚集之地,必然吸引顶尖人才、企业和复杂经济活动,催生对核心地段优质资产的持续需求。房产,特别是高端房产,在这里本身就是一种资本化和抵押品属性极强的硬通货。
3. 对外开放的永久前沿与规则接轨者:
从浦东开发开放到自贸区临港新片区,上海始终是中国对接全球规则、进行压力测试的实验室。特斯拉超级工厂的“临港速度”,科创板并试点注册制的成功,都彰显了其制度创新的能力。这种“链接世界”的角色,使其经济具有更强的韧性与外部资源输入通道。对于资产持有者而言,配置上海不动产,相当于持有了一个高度国际化、规则相对透明的中国经济“指数基金”,能有效对冲局部风险。
第二篇章:中观图景——都市进化的内生动力与空间革命
城市的生命力在于其不断自我更新和创造新价值空间的能力。上海正经历一场深刻的“空间价值革命”,为房产价值注入新动能。
1. 从单中心到网络化:城市格局重塑创造新增长极。
传统意义上的“上海”指内环内,但今天的上海是“中心辐射、两翼齐飞、新城发力、南北转型”的宏大格局。“五大新城”(嘉定、青浦、松江、奉贤、南汇)不再是被动承接人口溢出的卫星城,而是瞄准建设独立综合性节点城市。这意味着产业、交通、教育、医疗等核心资源的系统性注入。例如,南汇新城依托临港新片区,正在形成世界级前沿产业集群。这种规划能级的跃升,正在将城市边缘区域重塑为价值高地,为购房者提供了从“成熟核心”到“未来核心”的阶梯式选择。
2. “一江一河”滨水区作为顶级公共产品:
黄浦江45公里、苏州河42公里岸线的贯通开放,是世界级城市更新的典范。它将过去封闭的生产性岸线,转变为开放的生活、生态、文化空间。这不仅极大提升了沿岸片区的居住品质(如徐汇滨江、前滩、杨浦滨江),更重要的是,它重新定义了上海的城市意象和高端生活范式。滨水资源成为稀缺的、非市场化的公共福利,其辐射范围内的房产,天然享有这份溢价。
3. 城市更新的精细化和人文温度:
上海的城市建设已从“大拆大建”进入“有机更新”阶段。如衡复历史文化风貌区的保护性修缮、老旧小区“拆改建”保留城市肌理、存量工业用地转型为创新园区(如西岸智慧谷)。这种更新模式避免了城市文化的断裂,在提升物质环境的同时,保留了稀缺的邻里氛围和社会资本。选择在这样的区域置业,购买的不仅是砖瓦,更是一段可触摸的、持续生长的城市史,其情感价值和社群价值难以复制。
第三篇章:微观资产——不动产的金融属性与个人效用
对家庭和个人而言,在上海购房是一项兼具多重属性的复杂决策。
1. 对抗通胀与财富储存的终极容器:
在货币超发成为全球常态的背景下,优质不动产是公认的、最有效的通胀对冲工具之一。上海房产,因其背后坚实的城市价值和有限的土地供应(特别是中心城区),具备更强的价值储存功能。它不像现金会贬值,不像股票波动剧烈,也不像艺术品流动性差。它是家庭资产负债表上“压舱石”般的存在,能够穿越经济周期,实现购买力的长期保全甚至增值。
2. 信用杠杆与阶层身份的显性标识:
在中国金融体系中,房产是最被金融机构认可的抵押物。拥有一套上海房产,意味着家庭获得了获取低成本融资的通行证,这笔杠杆可以用于创业、教育或再次投资。同时,房产与户籍、学区(尽管政策在调整)、社区圈层紧密绑定。一个高品质住区,本质上是同质化人群的筛选与聚集,为下一代提供起跑线上的社交环境与资源网络。这种社会资本的传递,是房产隐含的、却至关重要的附加值。
3. 居住效用与生活可能性的极致体验:
抛开投资,纯粹从居住角度,上海提供了一种“生活的极致可能性”。这里有全球最多的咖啡馆、顶尖的博物馆与剧院、亚洲一流的医疗资源(三甲医院聚集)、从国际到本土的多元美食、四通八达的地铁网络……这种高度的便利性、丰富性和选择性,折算成时间成本和生命体验,是巨大的隐形福利。住在上海,意味着你的时间可以更高效地用于工作、学习和娱乐,而非消耗在通勤和寻找基本服务上。
第四篇章:时代语境——政策护航与长期主义的窗口
当下的市场环境与政策导向,为理性决策者提供了新的思考维度。
1. 政策底部显现,支持合理住房需求:
近期,从国家到上海地方层面,政策暖风频吹。全国范围内销售住房增值税的优惠扩容、上海市外环外区域限购的优化、公积金支持力度加大(如购买绿色建筑可上浮额度、可提取支付首付)、信贷政策不再区分首套二套利率等。这些组合拳明确传达了“满足居民刚性住房需求和多样化改善性住房需求”的政策意图。当前阶段,政策风险较低,交易成本有所下降,为有真实需求的购房者提供了更友好的窗口。
2. 市场分化期,价值甄别的黄金时代:
普涨时代终结,正是价值投资时代的开始。市场的冷却,挤出了投机泡沫,让房子的居住本质和所在板块的真实价值得以凸显。此时在上海购房,更需要专业知识去辨别:哪些板块有坚实的产业和人口规划支撑?哪些项目拥有不可复制的景观或产品力?这个过程虽然更具挑战,但也能让决策回归理性,让真正的优质资产浮出水面。用合理的价格买入这样的资产,其长期回报更为可期。
3. 拥抱城市命运,参与共享发展红利:
选择在上海买房,本质上是投票相信上海乃至中国未来的发展。你是将自己的财富和家庭的未来,与这座城市的命运进行深度绑定。它的每一次产业升级、每一次地铁延伸、每一次国际盛事的举办,都可能内化为你所持资产的价值增量。这是一种积极的、建设性的公民参与,也是分享现代化成果最直接的方式。
结论:一种面向未来的战略选择
因此,为什么要在上海买房?答案清晰而立体:
· 对国家,它是押注于中国经济最强劲、最开放、最规范的核心引擎。
· 对城市,它是嵌入一场持续进行、由顶级规划与市场力量共同驱动的空间价值革命。
· 对家庭,它是配置最具韧性的硬资产、获取优质社会资源、构建财务安全网的基石。
· 对个人,它是换取一种高效、丰富、充满可能性的现代生活方式。
这并非一个适用于所有人的绝对答案。它需要雄厚的资金实力、长周期的持有耐心以及对局部风险的承受能力。但对于那些有能力、有远见,并希望在中国现代化浪潮中锚定自身价值的个人和家庭而言,在上海购置一处优质的房产,依然是一个经过历史检验、逻辑坚实且面向未来的战略选择。它关乎财富,更关乎对一种更高阶文明生活与城市发展红利的深度参与和拥有。
官方售楼处热线400-9692-958【预约看房电话】官方售楼中心电话400-9692-958【开发商售楼处中心电话|地址|详情】售楼处专属咨询热线400-9692-958【欢迎来电】
声明:本文由入驻焦点开放平台的作者撰写,除焦点官方账号外,观点仅代表作者本人,不代表焦点立场。


