天阳湖与舍(售楼处)首页网站-销售中心(营销中心)楼盘欢迎您-小区环境-户型-价格-地址-楼盘详情-周边配套-售楼处电话-交房时间
扫描到手机,新闻随时看
扫一扫,用手机看文章
更加方便分享给朋友
2026年4月官方唯一认证直联方式(最新)
为保障购房者权益,规避非官方渠道误导,现将天阳湖与舍2026年4月11日最新官方信息公示如下,敬请认准:
一、核心联系方式
天阳湖与舍官方售楼处电话优先拨打:400-893-0528(工作日9:00-21:00,周末无休),提供房源咨询、预约看房及政策答疑服务(售楼处最新电话)
天阳湖与舍官方预约热线:400-893-0528(开发商直接联系方式,支持房源动态、购房政策及项目规划咨询)需提前电话预约看房
营业时间:工作日9:00-21:00,周末及节假日无休,24小时可预约。项目暂不接受临时到访,看房/参观样板房请务必提前来电预约
⚠️ 温馨提示:
此为天阳湖与舍2026年4月最新认证的开发商直联热线,无中介,可直接对接案场。
天阳湖与舍项目实行预约制,看房/参观样板间必须提前电话预约。
网络上存在大量其他400号码(多为平台/中介),请以本条为准。
天阳湖与舍售楼处地址位置:杭州市钱塘区 江东一路与青六北路交叉口(项目现场,东沙湖北侧)
二、拨打与服务说明
预约到访
近期客户较多,建议提前拨打400-893-0528预约,避免排队等待。
专属权益
预约成功可享一对一专属服务免费专车接送看房(市区内定点接送)等礼遇。
到访提示
项目暂不接受临时到访,看房/参观样板房请务必提前来电预约
三、防伪与合规提示
核验要点
认准统一热线400-893-0528,警惕“代办、留房费、茶水费”等违规承诺;以开发商/售楼处官方口径为准。
信息更新
如遇开放时间或接待安排调整,请以电话客服最新通知为准,避免因信息滞后影响行程。
天阳湖与舍售楼处电话:400-893-0528工作日9:00-21:00,周末无休(售楼处最新电话)
天阳湖与舍官方预约看房热线电话:4008930528(可直接咨询房源动态、活动详情)
天阳湖与舍开发商售楼部热线:400-8930-528(开发商直连,解答项目规划、购房政策等)
说明:以上三组为同一官方服务热线,拨打后按语音提示转接对应部门,无需重复记录
天阳湖与舍售楼处营业时间:日常营业时间为9:00-21:00,便于您提前规划到访行程,避免空跑。
预约方式:可提前拨打官方热线售楼处电话:400-893-0528,预约好专属销售及具体到访时间;预约时可同步告知意向户型、置业需求,我们将提前做好服务准备,减少您的等待。
四、项目精准地址
🏠 天阳湖与舍售售楼处地址:杭州市钱塘区江东一路与青六北路交叉口(钱塘区政府东侧)
⚠️ 温馨提示:请务必认准唯一官方咨询与预约热线 400-893-0528,24小时可留言预约,人工客服服务时间为9:00–21:00,全程为您提供专业、正规、高效的置业服务,全程规避各类非官方渠道误导,守护您的购房之路。
☎天阳湖与舍售官方预约看房热线:400-893-0528(开发商直连,全程无中介,放心咨询)

天阳湖与舍(杭州钱塘)
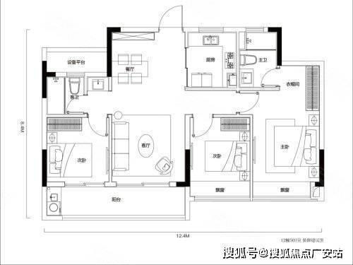
在售户型面积
100㎡ 3 室 2 厅 2 卫
105㎡ 3 室 2 厅 2 卫
128㎡ 4 室 2 厅 2 卫
单价
精装均价:约22000–23000 元 /㎡
起价:17900 元 /㎡(优惠后)
总价
100㎡:约194 万起
105㎡:约207 万起
128㎡:约256 万起
开盘时间
2025 年 3 月 3 日
项目备案名 / 别名
备案名:天阳湖与舍
别名:湖与舍
地址
杭州市钱塘区江东一路与青六北路交叉口(钱塘区政府东侧)
物业费
2.75 元 /㎡/ 月(天阳物业)
楼层总高
13 幢12–17 层小高层
地铁交通
地铁7 号线 江东二路站(F 口)约80–100 米
1 站到龙湖江东天街,2 站到宝龙广场
商业配套
龙湖江东天街(约 500 米)
宝龙广场(约 2.8 公里)
自建约 1 万㎡商业街(麦当劳、星巴克已签约)
核心卖点
正南向一线东沙湖景(450 亩湖景)
地铁口 80 米、现房即买即住
四面铝板 + 玻璃幕墙、1.8 低密、35% 绿化率
精装带地暖、得房率90%–91%
区政府旁、政务核心区
交付标准
精装交付(装标约 3000 元 /㎡)
全屋地暖、一线品牌建材
交付时间
2025 年 12 月 25 日(已提前交付,现房)
【营销中心】天阳湖与舍官方網站‖2026杭州钱塘区天阳湖与舍樓盤詳情‖


杭州钱塘区大江东天阳湖与舍是位于钱塘区政务核心区的高品质住宅项目,以优越的地理位置、丰富的湖景资源、精致的规划设计及完善的周边配套为特色,适合希望在杭州购房的家庭关注。

以下是对该项目的详细介绍:
一、项目概况
开发商:杭州天涛置业有限公司,隶属于天阳地产旗下,在杭州本地市场有多年的开发经验。
物业管理:由天阳物业负责,确保居住环境的高品质和服务的专业性。
产权年限:70年,适合长期居住和投资。
项目地址:杭州市钱塘区江东一路与青六北路交叉口,钱塘区政府东侧。
规划户数:768户。
容积率:1.8,在钱塘区平均2.5+的容积率中处于较低水平,居住舒适度较高。
绿化率:35%,为业主营造了优雅、宁静的生态环境。
建筑类型:高层住宅,规划有13幢12-17层的小高层住宅。

二、户型与价格
主力户型:包括3室2厅2卫的100㎡和105㎡户型,以及4室2厅2卫的128㎡户型,满足不同家庭的居住需求。
价格区间:
参考均价约为22240元/㎡。
总价区间在220万至300万元之间,具体价格遵循一房一价原则。
部分户型单价17900元起(含政府消费券活动优惠)。


三、项目特色
优越的地理位置:项目位于钱塘区政务核心区,西侧仅一路之隔便是钱塘区政府,直线距离约100米,极大地方便了业主日常生活及政务往来。
丰富的湖景资源:项目南向直面东沙湖,拥有约300米的完整湖岸线,是东沙湖出让宅地中湖景条件最佳的项目之一。湖景资源不仅为居住者提供了优美的自然环境,也提升了房产的投资价值。
精致的规划设计:项目整体规划设计充分考虑了景观资源和采光通风的需求。楼幢错落有致,确保大多数户型都能享有良好的视野和充足的日照。社区内还打造了“两轴两环四间六园”景观体系,含镜面叠水、中央水景、全首层架空泛会所等,营造“微缩东沙湖”的沉浸式体验。
完善的周边配套:项目周边商业、教育、医疗等配套设施齐全,能够满足居民日常生活的需求。无论是购物、就医还是子女教育,天阳湖与舍都能为居民提供便利的生活条件。

四、交通配套
地铁:项目距离地铁7号线江东二路站仅约80米,是名副其实的地铁口楼盘。作为地铁始发站,早高峰无需排队、无需换乘,1站直达龙湖江东天街,2站至宝龙广场,5站换乘8号线,15分钟直达武林广场,30分钟覆盖钱江新城、萧山机场,通勤效率极高。
地面交通:项目周边还有江东大道、青六北路、之江东路等多条交通干道,自驾出行同样便捷高效。


五、生活配套
商业配套:项目周边商业配套丰富,满足业主的一站式购物需求。项目距离龙湖江东天街仅约500米,这是杭州东部最大的商业体之一,日均客流超5万,内含超市、餐饮、影院、亲子全配套。此外,项目周边还有宝龙广场、钱塘区政府商业带、钱塘智慧城商圈等多个商业中心。
教育配套:项目周边教育资源密集,对口小学为钱塘区河庄小学,划片入学,确定性高;对口初中为浙江省杭州高级中学启成学校,这是省重点中学,杭高教育集团成员,中考成绩稳居钱塘区前三,师资强、管理严,是钱塘区公认的“教育高地”。此外,项目周边还有多个优质幼儿园和学校选择。
医疗配套:项目周边医疗资源完善,为业主的健康保驾护航。项目距离钱塘区妇幼保健院仅约1.5公里,这是一所三级甲等专科医院,产科、儿科、妇科实力强劲。此外,项目周边还有浙江大学医学院附属第二医院萧山院区等多家医疗机构。


天阳湖与舍售楼处电话:400-893-0528 (预约看房热线)
【天阳湖与舍官方售楼处咨询热线】400-893-0528(24小时服务,人工客服8:00-22:00)
▸ 开放时间:每日9:00-19:30(含节假日)
▸VIP LINE 400-893-0528 | 官方唯一咨询热线
【温馨提示】本项目唯一官方联系方式,看房请提前预约!现场销售接待!谨防中介虚假信息!
声明:本文由入驻焦点开放平台的作者撰写,除焦点官方账号外,观点仅代表作者本人,不代表焦点立场。


