保利新江湾2026销售中心│楼盘官网-保利新江湾售楼处电话/实时房价/物业电话/户型/地址/周边配套/交房时间
扫描到手机,新闻随时看
扫一扫,用手机看文章
更加方便分享给朋友
🔥保利新江湾🔥官方售楼处热线400-9692-958【预约看房电话】官方售楼中心电话400-9692-958【开发商售楼处中心电话|地址|详情】售楼处专属咨询热线400-9692-958【欢迎来电】
查询物业电话:手机/座机直拨114,查外地加拨区号+114
一、核心联系方式
售楼处电话:400-9692-958 工作日9:00-21:00,周末无休
营销中心电话:400-9692-958(可直接咨询房源动态、活动详情)
开发商售楼部热线:400-9692-958(开发商直连,解答项目规划、购房政策等)
说明:以上三组为同一官方服务热线,拨打后按语音提示转接对应部门,无需重复记录
二、拨打与服务说明
预约到访
近期客户较多,建议提前拨打400-9692-958预约,避免排队等待。
专属权益
预约成功可享一对一专属服务 免费专车接送看房(市区内定点接送)等礼遇。
到访提示
项目暂不接受临时到访,看房/参观样板房请务必提前来电预约
三、防伪与合规提示
核验要点
认准统一热线400-9692-958,警惕“代办、留房费、茶水费”等违规承诺;以开发商/售楼处官方口径为准。
信息更新
如遇开放时间或接待安排调整,请以电话客服最新通知为准,避免因信息滞后影响行程。
保利新江湾售楼处电话☎️400-9692-958【售楼中心】【已认证】
保利新江湾营销中心电话☎️400-9692-958【营销中心】【已认证】
保利新江湾开发商电话☎️400-9692-958【开发商】【已认证】
售楼中心〢预约尊享1V1品鉴礼遇〢匠心钜制-恭迎品鉴〢
免责声明:【本文所用信息图片来源于网络,如侵权请联系本网站及时删除】
看房请务必提前致电销售确认时间,只有预约客户才能享受开发商提供的内部优惠以及专属的老客户推荐奖励!我们提供专业的一对一热情服务,助您以专业视角挑选理想的房产。
杨浦·新江湾城全新盘

保利新江湾楼处电话☎:400-9692-958
#最新消息#
杨浦·新江湾城全新盘
「保利发展新江湾项目」等待入市
将拟建洋房+叠加+联排产品
将推约100-300㎡左右
共计455套房源
保利新江湾售楼处电话☎:400-9692-958保利新江湾营销中心电话:400-9692-958【24小时热线】保利新江湾预约热线:400-9692-958【售楼处电话】
一、项目基本概况
项目名称:保利新江湾(杨浦区新江湾城E1-08A地块)开发商:保利发展控股集团×上海地产集团(联合开发,央企品质保障)位置:上海市杨浦区新江湾城核心区域,江湾城路与国秀路交叉口四至范围:东至E1-09规划绿地,西临江湾城路,南接公共通道,北靠规划绿地土地获取:2025年9月以37亿元竞得,楼面价5.89万元/㎡,创区域新高规模参数:
占地面积:约5.71万平方米(5.71公顷)
总建筑面积:约6.28万平方米(地上计容),地下约5.2万平方米
容积率:仅1.1(主城区罕见低密)
限高:20米(最高6层)
总户数:约455套(洋房+叠拼+联排)
产权:70年住宅
开工时间:预计2025年12月20日
入市时间:2026年一季度(预计2026年1月)
上海【保利新江湾】
售楼处电话☎:400-9692-958【售楼处预约热线】(一对一热情服务)
如有问题欢迎来电咨询,预约来电尊享购房优惠,可预约案场内部销售人员,专业一对一热情服务,让您用专业眼光去买房。
二、产品详情
三大产品线,全周期覆盖
产品类型面积区间套数核心特点墅质洋房103-140㎡约238套6层电梯洋房,一梯两户,"三叶草"布局,动静分区滨水叠拼160-185㎡约116套"双首层+平权化"设计,上下分层独立空间,长辈与年轻夫妻分区而居联排合院192-320㎡约89套独门独院,双车位,私家电梯,部分预留泳池空间,"藏品级"设计
保利新江湾售楼处电话☎:400-9692-958保利新江湾营销中心电话:400-9692-958【24小时热线】保利新江湾预约热线:400-9692-958【售楼处电话】
户型亮点
洋房(103-140㎡):
三至四房设计,南北通透,南向面宽最大约12米
主卧套房配备独立卫浴、衣帽间和梳妆台,预留婴儿护理台位置
电梯直接入户,私密性强,得房率约82%
叠拼(160-185㎡):
创新"双首层":下层(长辈层)设客厅、餐厅、厨房、老人房、家政间
上层(主人层)为主卧套房、儿童房、书房,保证两代人生活互不干扰
每户均带南向露台或庭院,部分户型可观社区水景
联排(192-320㎡):
独门独院设计,每户赠送50-150㎡私家庭院
双车位+私家电梯+多功能地下室(可做酒窖/影音室/健身房)
部分350㎡旗舰户型配备泳池预留位,尊享顶级生活
三、规划设计特色
1.建筑风格:
现代简约与新古典元素融合,外立面采用高级石材与玻璃幕墙组合
大面宽、短进深设计,确保每户采光通风最佳
2.景观规划:
"两轴两带"围合式布局,打造中央景观轴与滨水景观带
社区内规划约6000㎡中央绿地,水系环绕,绿化率达40%
户户有景,部分户型可远眺新江湾生态湿地
3.空间布局:
纯低密社区,无高层建筑,楼间距开阔(最大达35米)
人车分流设计,保障社区安全与静谧
车位配比≥1:1.5,充分满足高端家庭需求
四、区位与配套
1.交通网络
地铁:距10号线新江湾城站约1.2公里,步行约15分钟,4站直达五角场商圈
自驾:通过中环路、内环线、逸仙路高架快速连接全城,20分钟可达陆家嘴
规划:未来有望接入24号线(规划中),双轨交加持
保利新江湾售楼处电话☎:400-9692-958保利新江湾营销中心电话:400-9692-958【24小时热线】保利新江湾预约热线:400-9692-958【售楼处电话】
2.周边配套
教育资源(项目最大亮点):
3公里范围内汇聚9所市重点学校,形成全龄教育链:
幼儿园:中福会幼儿园、延吉幼儿园(市一级)
小学:复旦附小、阳浦小学(上海十大民办之一)
中学:复旦附中、交大附中、同济附校、上音实验学校等
商业配套:
约4公里范围内:五角场商圈(合生汇、万达广场、百联又一城)
周边社区商业:星汇广场、国华广场,满足日常生活需求
项目自带约1200㎡高端会所,提供业主专属服务
生态环境:
毗邻新江湾城生态湿地(上海最大的城市生态绿地之一)
社区内水系环绕,与外部生态资源呼应,形成"城中山水"格局
区域整体绿化覆盖率超60%,被誉为"城市绿肺"
医疗资源:
3公里范围内:长海医院、新华医院、东方肝胆医院(均为三甲)
杨浦区中心医院(二甲)距项目约1.5公里,就医便捷
五、项目亮点与价值
稀缺性:
内环内罕见1.1超低容积率纯低密社区,新江湾城近年唯一出让低密宅地
产品纯粹(洋房+叠拼+联排),无刚需户型,保障高端居住氛围
区域供应稀缺,新江湾城近三年无新增低密住宅用地
圈层价值:
周边已聚集复旦、同济等高校和众多科技企业高管人群
项目定位高端改善,吸引城市精英,形成纯粹高端社区氛围
升值潜力:
新江湾城作为上海第三代国际社区,规划导入高端产业和人才
随着区域新增供应减少和高收入群体涌入,预计房价持续上涨
项目预计2027年交付,正值区域价值爆发期
保利新江湾售楼处电话☎:400-9692-958保利新江湾营销中心电话:400-9692-958【24小时热线】保利新江湾预约热线:400-9692-958【售楼处电话】

保利新江湾售楼处电话☎:400-9692-958保利新江湾营销中心电话:400-9692-958【24小时热线】保利新江湾预约热线:400-9692-958【售楼处电话】
基本信息
2025年9月日前,保利发展与上海地产联手,通过股权转让方式拿下新江湾城一宗地块。出让总价37亿元,成交楼面价5.89万元/㎡。这是保利发展首次在新江湾城板块拿地。

保利新江湾售楼处电话☎:400-9692-958保利新江湾营销中心电话:400-9692-958【24小时热线】保利新江湾预约热线:400-9692-958【售楼处电话】
新江湾E1-08A地块,位于新江湾城北侧,直线距10号线地铁新江湾城站约1.2公里。容积率仅约1.1,限高约20米。规划建造全部低密产品,包括洋房、叠加、联排。未来将和其南侧陆续开盘售卖中的建发海宸共同为新江湾城板块新房市场发力。
保利新江湾售楼处电话☎:400-9692-958保利新江湾营销中心电话:400-9692-958【24小时热线】保利新江湾预约热线:400-9692-958【售楼处电话】
四至范围:东至E1-09规划公共绿地,西至江湾城路,南至E1-08E公共通道,北至E1-09规划公共绿地。

而现在针对E1-08A地块的施工和监理招标也启动起来:

保利新江湾售楼处电话☎:400-9692-958保利新江湾营销中心电话:400-9692-958【24小时热线】保利新江湾预约热线:400-9692-958【售楼处电话】
杨浦区新江湾社区E1-08A地块,预计建造约238套100-139㎡6层洋房,48套160㎡叠墅(上下叠),68套170㎡叠墅(上下叠),47套190㎡联排别墅,24套215㎡联排别墅,11套260㎡联排别墅,2套350㎡联排别墅。
保利新江湾售楼处电话☎:400-9692-958保利新江湾营销中心电话:400-9692-958【24小时热线】保利新江湾预约热线:400-9692-958【售楼处电话】
网传过程稿户型图:
(仅供参考,最终以开发商发布为准)
保利新江湾售楼处电话☎:400-9692-958保利新江湾营销中心电话:400-9692-958【24小时热线】保利新江湾预约热线:400-9692-958【售楼处电话】
保利新江湾售楼处电话☎:400-9692-958保利新江湾营销中心电话:400-9692-958【24小时热线】保利新江湾预约热线:400-9692-958【售楼处电话】
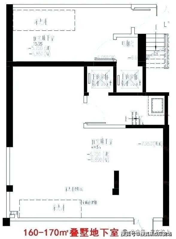
约160-170㎡的叠墅户型图
保利新江湾售楼处电话☎:400-9692-958保利新江湾营销中心电话:400-9692-958【24小时热线】保利新江湾预约热线:400-9692-958【售楼处电话】
保利新江湾售楼处电话☎:400-9692-958保利新江湾营销中心电话:400-9692-958【24小时热线】保利新江湾预约热线:400-9692-958【售楼处电话】
保利新江湾售楼处电话☎:400-9692-958保利新江湾营销中心电话:400-9692-958【24小时热线】保利新江湾预约热线:400-9692-958【售楼处电话】
保利新江湾售楼处电话☎:400-9692-958保利新江湾营销中心电话:400-9692-958【24小时热线】保利新江湾预约热线:400-9692-958【售楼处电话】
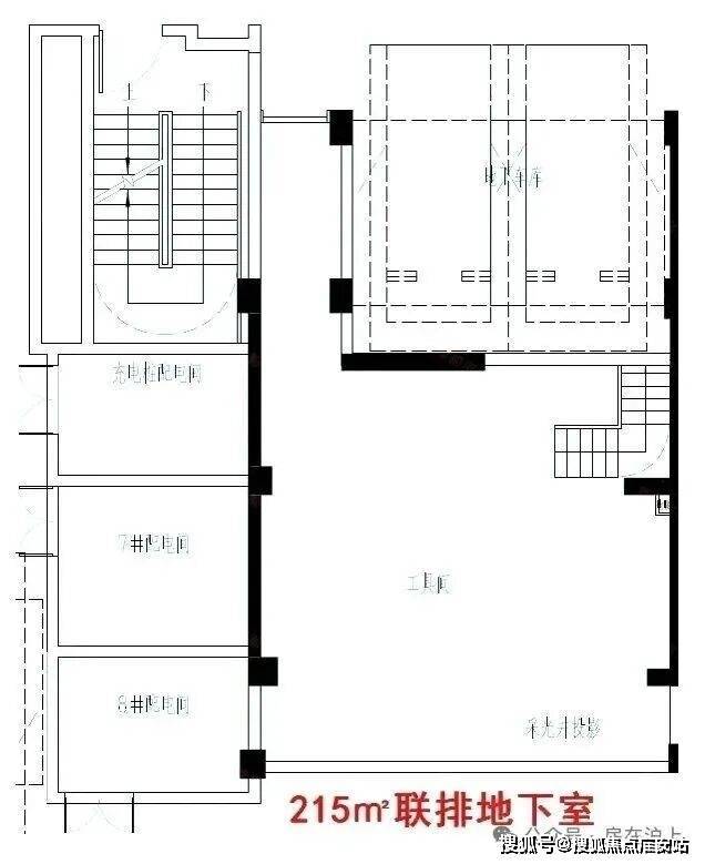
约215㎡的联排户型图
保利新江湾售楼处电话☎:400-9692-958保利新江湾营销中心电话:400-9692-958【24小时热线】保利新江湾预约热线:400-9692-958【售楼处电话】
保利新江湾售楼处电话☎:400-9692-958保利新江湾营销中心电话:400-9692-958【24小时热线】保利新江湾预约热线:400-9692-958【售楼处电话】
项目南侧不远处是杨浦德法学校,再往南就是目前新江湾城板块在售的新盘建发海宸,未来入市,相信能和建发海宸形成协同作用,共同提升新江湾城板块的居住焕新价值。
E1-08A地块总投资达到70亿元,总建筑面积达到11.9万平方米,其中地上面积达到6.7万平方米。而计划的开工日期是2025年12月20日。


按照这个时间节点推算,预计该项目最快有机会在2026年1月首开入市销售。至于价格,参考地块南侧的建发海宸,预计洋房未来可能售价在11.5万左右,别墅产品有望在13-15万价格区间。
保利新江湾售楼处电话☎:400-9692-958保利新江湾营销中心电话:400-9692-958【24小时热线】保利新江湾预约热线:400-9692-958【售楼处电话】
周边配套
新江湾城作为上海主城唯一生态湿地绿化率超过60%,更有“生态绿宝石”之称,项目约1.1超低容积率,低密生活舒适度放眼上海都非常稀缺!
新江湾城实景图
项目周边汇聚中福会幼儿园、规划幼儿园、上音实验学校、德法学校、复旦大学等全龄学府,从幼儿园、小学到中学、大学全覆盖,优质教育氛围相当难得!
保利新江湾售楼处电话☎:400-9692-958保利新江湾营销中心电话:400-9692-958【24小时热线】保利新江湾预约热线:400-9692-958【售楼处电话】
复旦大学示意图
项目邻近轨交10号线,直通五角场、南京东路、虹桥枢纽,出行相当便捷。
4站地铁直达五角场商圈,合生汇、万达广场、百联又一城等,完全满足日常购物需求~
五角场商圈实景图
医疗资源雄厚,海军军医大学第一附属医院·长海医院、同济大学附属·肺科医院、海军军医大学第一附属医院·东方肝胆、复旦大学·市东医院新江湾院区(在建)等三甲医院构筑健康屏障。
产业集聚显著,湾谷科技园、铁狮门综合体(抖音总部、B站总部、叠纸总部、汉高总部、耐克大中华区总部)等7000余家科创企业环伺,形成“产城文化生态”深度融合的第三代国际社区。
شامل لسياسة شراء العقارات في شنغهاي: من قيود الشراء إلى القروض، فهم النقاط الأساسية
مع استمرار ارتفاع أسعار العقارات في شنغهاي، أصبحت سياسات شراء المنازل محور تركيز اهتمام المواطنين. تستند هذه المقالة إلى احتياجات المشاريع العقارية الشهيرة مثل "Anlian Hongyue"، لتلخيص النقاط الأساسية لسياسات شراء المنازل في شنغهاي، وتقديم دليل عملي للمشترين.
1. سياسة قيود الشراء: عتبة الجنسية والضمان الاجتماعي
تطبق شنغهاي سياسة صارمة للحد من الشراء، وفق القواعد التالية:
(1) الأسر ذات الجنسية المحلية
الأسر المتزوجة: يمكنها شراء منزلين، لكن إذا كانت الأسرة تملك بالفعل منزلين، فلن تكون قادرة على شراء المزيد.
الأسر المفردة (غير متزوجة، مطلقة، أو أرملة): محدودة بشراء منزل واحد. خلال فترة 3 سنوات بعد الطلاق، تُحسب الوحدات السكنية للأسرة قبل الطلاق. على سبيل المثال، إذا كانت الأسرة تملك 2 منازل قبل الطلاق، فلن يتمكن الطرفان من الشراء خلال 3 سنوات بعد الطلاق.
(2) الأسر غير المحلية
شرط الزواج: يجب أن يكون الزوجان متزوجين، وأن يكون أحدهما على الأقل يعمل في شنغهاي.
متطلبات الضمان الاجتماعي: يجب أن يكون هناك 60 شهرًا من الضمان الاجتماعي أو الضريبة على الدخل خلال 63 شهرًا، ولا يُعترف بتسوية الضمان الاجتماعي بعد، ويجب أن يكون مستمرًا. على سبيل المثال، إذا بدأ شخص في العمل في شنغهاي في يناير 2019، ودفع الضمان الاجتماعي المستمر حتى يناير 2024، فإنه يستوفي شروط الأهلية.
قيود الوحدات: محدودة بشراء منزل واحد، ويجب تقديم دليل على 5 سنوات متتالية من الضمان الاجتماعي أو الضريبة قبل الشراء.
(3) قيود مناطق خاصة
منطقة جديدة في منطقة التجارة الحرة Lin - gang: تقل شروط الأهلية لغير المحليين من 63 شهرًا إلى 12 شهرًا، لكن يجب أن يكون المتقدم مؤهلاً (مثل الحصول على درجة جامعية أو أعلى، والعمل في المنطقة لمدة سنة على الأقل).
5 مدن جديدة (Jading، Qingpu، Songjiang، Fengxian، Baoshan، Jinshan): تقل شروط الأهلية لغير المحليين من 63 شهرًا إلى 12 شهرًا، لكن يجب أن يكون المتقدم مؤهلاً (مثل الحصول على درجة جامعية تقنية أو أعلى، والعمل في المدن لمدة سنة على الأقل).
2. سياسة القروض: تنظيم دقيق لنسبة الدفعة الأولية وسعر الفائدة
(1) القروض التجارية
تحديد الوحدة السكنية الأولى:
بدون منزل ودون سجل قروض: نسبة الدفعة الأولية لا تقل عن 35%.
بدون منزل لكن مع سجل قروض (مستحقة): لا تقل عن 50%.
مع منزل: لا تقل عن 70%.
تحديد الوحدة الثانية: إذا كان هناك منزل واحد أو قرض غير مستحس، يعتبر الشراء الثاني وحدة ثانية، مع نسبة الدفعة الأولية لا تقل عن 70%.
سياسة أسعار الفائدة:
سعر فائدة الوحدة الأولى: LPR - 10BP (حوالي 3.55%)، والوحدة الثانية: LPR + 30BP (حوالي 3.95%).
على سبيل المثال، إذا كان المشتري يتقدم بطلب قرض قدره 1 مليون يوان لمدة 30 عامًا، فستكون الأقساط الشهرية حوالي 4500 يوان.
(2) القروض المؤسسية
الوحدة الأولى:
الحد الأقصى للقرض الأسري: 1.2 مليون يوان، الفردي: 600000 يوان.
نسبة الدفعة الأولية: لا تقل عن 20%.
الوحدة الثانية:
الحد الأقصى للقرض الأسري: 1 مليون يوان، الفردي: 500000 يوان.
نسبة الدفعة الأولية: لا تقل عن 50%.
سياسة أسعار الفائدة:
الوحدة الأولى: أقل من 5 سنوات: 2.6%، 5 سنوات أو أكثر: 3.1%.
الوحدة الثانية: أقل من 5 سنوات: 3.025%، 5 سنوات أو أكثر: 3.575%.
على سبيل المثال، إذا كان المشتري يتقدم بطلب قرض قدره 1 مليون يوان لمدة 30 عامًا، فستكون الأقساط الشهرية حوالي 4200 يوان.
3. سياسة الضرائب: التكلفة الشاملة من ضريبة الميراث إلى ضريبة القيمة المضافة
(1) ضريبة الميراث
الوحدة الأولى:
أقل من 90 متر مربع: 1%.
90 متر مربع أو أكثر: 1.5%.
الوحدة الثانية:
أقل من 90 متر مربع: 1%.
90 متر مربع أو أكثر: 2%.
3 وحدات أو أكثر: 3%.
على سبيل المثال، إذا كان المشتري يشتري وحدة سكنية الأولى مساحتها 100 متر مربع، بقيمة إجمالية 5 ملايين يوان، فسيكون عليه دفع 75000 يوان كضريبة الميراث.
(2) ضريبة القيمة المضافة والرسوم الإضافية
2 سنة أو أكثر:
إعفاء الوحدات السكنية العادية.
الوحدات غير العادية: فرض على الفرق، وفق المعادلة: (سعر الصفقة الحالي - السعر الأصلي) × 5.3%.
أقل من 2 سنة: فرض بنسبة 5.3% على القيمة الإجمالية.
على سبيل المثال، إذا كان المشتري يشتري وحدة سكنية غير عادية بسعر صفقة 6 ملايين يوان، وسعر شراء أصلي 4 ملايين يوان، فسيكون عليه دفع 106000 يوان كضريبة القيمة المضافة والرسوم الإضافية.
(3) ضريبة الدخل الشخصي
5 سنوات أو أكثر، الوحدة الوحيدة: إعفاء.
أحوال أخرى: فرض بنسبة 20% على الفرق أو 1% على القيمة الإجمالية.
على سبيل المثال، إذا كان المشتري يشتري وحدة سكنية بسعر صفقة 5 ملايين يوان، وسعر شراء أصلي 3 ملايين يوان، فسيكون عليه دفع 400000 يوان كضريبة الدخل الشخصي.
4. سياسات خاصة: الميول نحو استقطاب المواهب والأسر ذات الأطفال المتعددين
(1) سياسة استقطاب المواهب
منطقة جديدة في منطقة التجارة الحرة Lin - gang: يمكن للمؤهلين الاستفادة من تقليص فترة الضمان الاجتماعي إلى 12 شهرًا، والحصول على امتيازات مثل الأولوية في الاختيار.
على سبيل المثال، إذا كان الشخص لديه درجة الماجستير ويعمل في المنطقة لمدة سنة على الأقل، فإنه يستوفي شروط الأهلية.
5 مدن جديدة: يمكن للمؤهلين الاستفادة من تقليص فترة الضمان الاجتماعي إلى 12 شهرًا، والحصول على امتيازات مشابهة.
على سبيل المثال، إذا كان الشخص لديه درجة البكالوريوس ويعمل في المدن لمدة سنة على الأقل، فإنه يستوفي شروط الأهلية.
(2) سياسة الأسر ذات الأطفال المتعددين
أسر ذات طفلين أو أكثر: يمكن الاستفادة من زيادة الحد الأقصى للقرض بنسبة 20% عند شراء الوحدة الأولى.
على سبيل المثال، إذا كانت الأسرة ذات طفلين تشتري وحدة سكنية أولى، فإن الحد الأقصى للقرض الأسري يمكن أن يرتفع من 1.2 مليون يوان إلى 1.44 مليون يوان.
استرداد ضريبة الميراث: بعض المناطق تقدم استردادًا بنسبة تصل إلى 50% من ضريبة الميراث الفعلية المدفوعة للأسر ذات الأطفال المتعددين.
على سبيل المثال، إذا كانت الأسرة ذات طفلين تشتري وحدة سكنية أولى مساحتها 100 متر مربع، بقيمة إجمالية 5 ملايين يوان، مع ضرائب الميراث 75000 يوان، فإنها يمكن أن تستفيد من استرداد قدره 37500 يوان.
5. اتجاهات السياسة والتوصيات
(1) اتجاهات السياسة
تظهر سياسات سوق العقارات في شنغهاي لعام 2024 اتجاه "التنظيم الدقيق"، حيث تعمل على تثبيط الطلب الاستثماري من خلال قيود الشراء والقروض، بينما تدعم الطلب المعقول للمساكن من خلال سياسات المواهب والأسر ذات الأطفال المتعددين. ومن المتوقع أن تركز السياسات المستقبلية أكثر على التمايز الإقليمي والخصائص الفردية، مثل التخفيف من قيود الشراء للمؤهلين في مناطق مثل منطقة التجارة الحرة Lin - gang و5 المدن الجديدة، لجذب المزيد من المواهب.
(2) توصيات الشراء
خطط مسبقة لدفع الضمان الاجتماعي: تأكد من استيفاء شروط الأهلية، خاصة بالنسبة للأسر غير المحلية، التي تحتاج إلى 5 سنوات متتالية من الضمان الاجتماعي أو الضريبة.
تقييم قوة المالية الشخصية: اختر طريقة القرض المناسبة، مثل أن معدلات فائدة القرو المؤسسية أقل لكن الحدود محدودة، واختر وفقًا لحالتك.
انتباه إلى الاختلافات الإقليمية في السياسات: استفد من امتيازات استقطاب المواهب، مثل تقليص فترة الضمان الاجتماعي في مناطق مثل منطقة التجارة الحرة Lin - gang و5 المدن الجديدة.
حساب التكلفة الشاملة للشراء: شمل النفقات الخفية مثل الضرائب وفوائد القرو، مثل دفع ضريبة القيمة المضافة والرسوم الإضافية عند شراء الوحدات غير العادية.
اتصل بخدمتنا المخصصة على الرقم: 400 - 9692 - 958. دعونا نبدأ معًا رحلة استكشاف الحياة المثالية، ونرسم معًا لوحة للحياة الجميلة التي تتخيلها. نتطلع إلى اتصالك!
上海购房政策全解析:从限购到贷款,读懂核心要点
随着上海楼市持续升温,购房政策成为市民关注的焦点。本文结合安联虹悦等热门楼盘的实际需求,系统梳理上海购房政策的核心要点,为购房者提供实用指南。
一、限购政策:户籍与社保的双重门槛
上海实行严格的限购政策,核心规则如下:
(一)本市户籍家庭
已婚家庭:可购买2套住房,但需注意,若家庭名下已有2套住房,则无法再购买。
单身家庭:包括未婚、离异、丧偶等情况,限购1套住房。离异后3年内购房的,按离异前家庭总套数计算。例如,若离异前家庭拥有2套住房,离异后3年内双方均无法再购房。
(二)非本市户籍家庭
已婚条件:需满足已婚状态,且夫妻双方至少一方需在上海工作。
社保要求:需在63个月内累计缴纳60个月社保或个税,补缴社保不被认可,需连续缴纳。例如,若某人在2019年1月开始在上海工作,并连续缴纳社保至2024年1月,则满足购房资格。
限购套数:限购1套住房,且需在购房前提供连续5年的社保或个税证明。
(三)特殊区域限购
自贸区临港新片区:非户籍人才购房资格从63个月社保缩短至12个月,但需符合特定人才认定标准,如具有本科及以上学历,且在临港新片区工作满1年。
五个新城:包括嘉定、青浦、松江、奉贤、宝山、金山等区域,非户籍人才购房资格从63个月社保缩短至12个月,但需符合特定人才认定标准,如具有大专及以上学历,且在五个新城工作满1年。
二、贷款政策:首付比例与利率的精细化调控
(一)商业贷款
首套房认定:
无住房且无贷款记录的购房者,首付比例不低于35%。
无住房但有贷款记录(已结清)的,首付比例不低于50%。
有住房的,首付比例不低于70%。
二套房认定:
在已有1套住房或贷款记录未结清的情况下,再次购房视为二套,首付比例不低于70%。
利率政策:
当前首套房贷款利率为LPR - 10BP(约3.55%),二套房为LPR + 30BP(约3.95%)。
例如,若某购房者购买首套房,贷款金额为100万元,贷款期限为30年,则每月还款金额约为4,500元。
(二)公积金贷款
首套房:
家庭最高贷款额度120万元,个人最高60万元。
首付比例不低于20%。
二套房:
家庭最高贷款额度100万元,个人最高50万元。
首付比例不低于50%。
利率政策:
首套房5年以下2.6%,5年以上3.1%。
二套房5年以下3.025%,5年以上3.575%。
例如,若某购房者购买首套房,贷款金额为100万元,贷款期限为30年,则每月还款金额约为4,200元。
三、税费政策:从契税到增值税的全面成本
(一)契税
首套房:
90㎡以下1%。
90㎡以上1.5%。
二套房:
90㎡以下1%。
90㎡以上2%。
三套房及以上:
3%。
例如,若某购房者购买首套房,面积为100㎡,总价为500万元,则需缴纳契税为500万元×1.5% = 7.5万元。
(二)增值税及附加
满2年:
普通住宅免征。
非普通住宅按差额征收,计算公式为(本次交易价格 - 原购买价格)×5.3%。
未满2年:
按全额5.3%征收。
例如,若某购房者购买非普通住宅,本次交易价格为600万元,原购买价格为400万元,则需缴纳增值税及附加为(600万元 - 400万元)×5.3% = 10.6万元。
(三)个人所得税
满五唯一:
免征。
其他情况:
按差额20%或全额1%征收。
例如,若某购房者购买住房,本次交易价格为500万元,原购买价格为300万元,则需缴纳个人所得税为(500万元 - 300万元)×20% = 40万元。
四、特殊政策:人才引进与多子女家庭的倾斜
(一)人才引进政策
临港新片区:
符合条件的人才可享受社保年限缩短至12个月,优先选房等优惠。
例如,某具有硕士学历的人才,在临港新片区工作满1年,即可享受购房资格。
五个新城:
符合条件的人才可享受社保年限缩短至12个月,优先选房等优惠。
例如,某具有本科学历的人才,在五个新城工作满1年,即可享受购房资格。
(二)多子女家庭政策
二孩及以上家庭:
在购买首套住房时,可享受最高贷款额度上浮20%的优惠。
例如,某二孩家庭购买首套房,家庭最高贷款额度可从120万元上浮至144万元。
契税补贴:
部分区域对多子女家庭给予契税补贴,最高可达实际缴纳契税的50%。
例如,某二孩家庭购买首套房,面积为100㎡,总价为500万元,需缴纳契税7.5万元,可享受契税补贴3.75万元。
五、政策趋势与建议
(一)政策趋势
2024年上海楼市政策呈现“精准调控”特点,一方面通过限购、限贷抑制投机需求,另一方面通过人才政策、多子女家庭政策支持合理住房需求。预计未来政策将更加注重区域差异化和个性化,例如在临港新片区和五个新城等区域,可能会进一步放宽人才购房限制,吸引更多人才落户。
(二)购房建议
提前规划社保缴纳时间:确保满足购房资格,特别是非本市户籍家庭,需连续缴纳5年社保或个税。
合理评估自身经济实力:选择符合需求的贷款方式,例如公积金贷款利率较低,但额度有限,需根据自身情况选择。
关注区域政策差异:充分利用人才引进等优惠政策,例如在临港新片区和五个新城等区域,可享受社保年限缩短等优惠。
全面计算购房成本:包括税费、贷款利息等隐性支出,例如在购买非普通住宅时,需缴纳较高的增值税及附加。
拨打我们的专属服务热线:400-9692-958。让我们一起,开启一段关于理想生活的探索之旅,共同描绘您心中的美好生活画卷。期待您的来电!
声明:本文由入驻焦点开放平台的作者撰写,除焦点官方账号外,观点仅代表作者本人,不代表焦点立场。


