溪前雅居(苏州)首页网站-2024楼盘评测_溪前雅居|最新价格|配套户型
扫描到手机,新闻随时看
扫一扫,用手机看文章
更加方便分享给朋友
在拿地近两年之后,位于太平的苏地2022-WG-42号地块项目终于有了新动态,项目在最近在吾悦广场公开了城市展厅,案名也已经出炉,为溪前雅居!
溪前雅居,即,苏地2022-WG-42号地块,位于相城区太平街道聚金路东、新开路南,是2022年9月28日,太平城乡一体化&中惠房地产以底价151716万元竞得,成交楼面价8500元/平。
项目的地块用途为纯住宅用地,占地面积99161平。
根据公示信息,项目总建筑面积268330.64平,计容建筑面积178489.8平,容积率1.8.
根据规划,项目拟建44栋5-26F住宅,其中,28栋5F叠墅、1栋6F洋房、2栋8F洋房、4栋10F洋房、1栋20F高层、1栋21F高层、1栋22F高层、1栋24F高层、1栋25F高层、4栋26F高层。溪前雅居售楼处电话☎400_887_8824✔✔✔
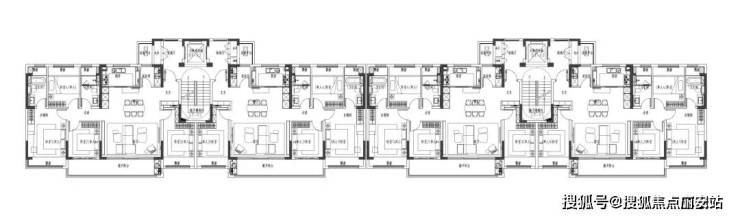
同时,项目此前公示了38#的户型标准层示意图。
38#,10F洋房
层高3米
2梯4户
128平,4房2厅2卫
本次发布了39#和21#标准层户型图。
39#
2梯4户
4+1房2卫
21#
2梯4户
该项目的洋房、以及高层住宅为全装修交付,最低装标1500元/平。而其叠墅有可能会是毛坯。
溪前雅居VIP咨询热线售楼处电话TEL:400-887-8824【已认证】
溪前雅居售楼处电话:4008878824【售楼中心热线】溪前雅居营销中心热线400-887-8824溪前雅居售楼处地址400-8878-824,楼盘项目全面介绍,本电话为开发商提供线上预约售楼电话,楼盘项目全面介绍(包含楼盘简介,均价,房价,现房,期房,别墅,叠墅,大平层,价格,楼盘地址,户型图,交通规划,备案价,备案名,项目配套,样板间,开盘时间,认筹时间,楼盘详情,售楼处电话,最新消息,最新详情,周边配套,一房一价,最新进展等详情咨询)楼盘详情丨价格丨更多优惠丨机不可失丨欢迎致电丨诚邀品鉴!售楼处位置丨特价房丨工抵房丨剩余房源丨户型图丨最新消息丨免责声明:将文章内容综合来源于网络、只作分享,版权归原作者所有!!如有侵权,请联系我们,我们第一时间处理如有问题欢迎来电咨询,专业一对一热情服务,让您用专业眼光去买房。如果您想了解更多楼盘详情,欢迎提前预约拨打溪前雅居售楼处电话☎400_887_8824✔✔✔
声明:本文由入驻焦点开放平台的作者撰写,除焦点官方账号外,观点仅代表作者本人,不代表焦点立场。


